Купить дом на улице Школьная в Калининградской области
Россия, Калининградская область, Гурьевский муниципальный округ, посёлок Яблоневка, Школьная улица
93 м²
Площадь дома
6.7 сот
Площадь участка
Блочный
Материал постройки
1
Этажей
Описание
Дом с продуманной планировкой подходит для семейного проживания и станет идеальным местом для создания уюта и безопасности.
🔑 Основные характеристики:
- Год постройки: 2023
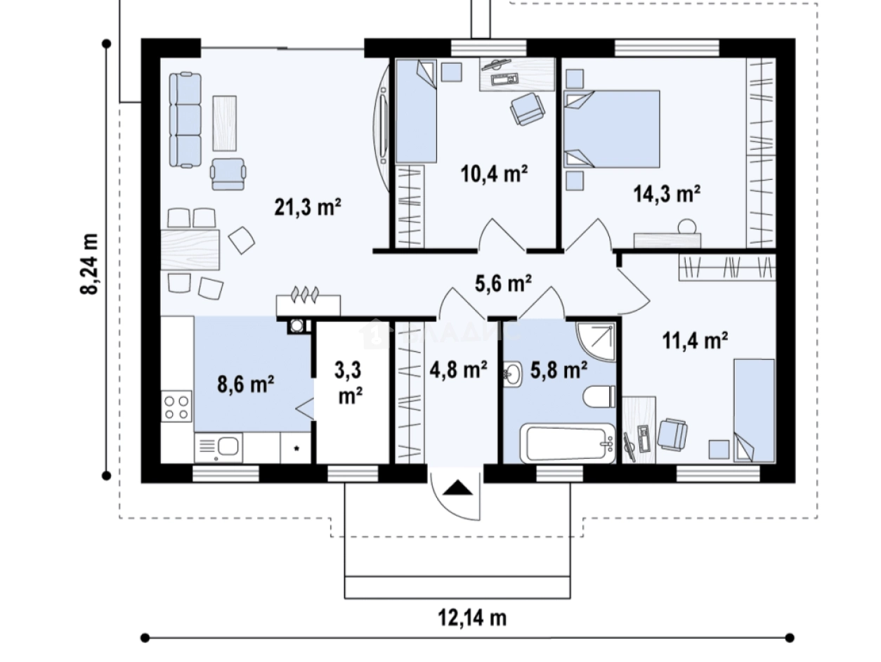
- Общая площадь: 93 кв.м.
- Жилая площадь: 36,1 кв.м.
- Площадь кухни-гостиной: 29,9 кв.м, имеет панорамные окна и выход на террасу, просторная кухня станет сердцем вашего дома.
- Комнатность: 3 (изолированные, площадь комнат 14,3 кв.м, 11,4 кв.м и 10,4 кв.м).
- Совмещенный санузел: 5,8 кв.м.
- Техническое помещение: 3,3 кв.м.
- Высота потолков: 3 м.
- Состояние дома: качественный серый ключ.
🏡 Дом построен из газосиликатного блока на монолитной плите, внешние стены - утеплены пенополистиролом, оштукатурены декоративной штукатуркой и окрашены, внутренние стены оштукатурены, потолочное перекрытие - деревянное, утеплено минеральной ватой, кровля - металлочерепица, оборудована системой водоотлива, установлены качественные теплосберегающие стеклопакеты. По дому произведена полная разводка электропроводки, оборудованы вводы/выводы водоснабжения и канализации. В доме оборудована система - теплый пол, установлен двухконтурный газовый котел, установлена входная дверь с терморазрывом.
📍 Коммуникации:
- электричество - подключено 15 кВт
- водоснабжение - скважина
- канализация - локальное очистное сооружение
- газ - подключен!
🏞️ Земельный участок: 6,7 сотоки.
Статус участка: для ведения личного подсобного хозяйства - полная свобода для реализации ваших идей.
Участок прямоугольной формы, отсыпан, ровный, сухой, оборудован дренажной системой, огорожен. Центральная дорожка и отмостка вокруг дома - вымощены тротуарной плиткой.
Подъезд к участку: асфальтированная дорога.
📍 Прекрасное расположение
Дом находится в экологически чистом районе, в спокойном и благоустроенном посёлке.
Внутри посёлка есть все необходимые для комфортной жизни объекты: школа - 200 м, аптека, магазины - в шаговой доступности и многое другое.
Посёлок находится в близи Берлинского шоссе, что позволяет за 40 минут добраться до морского побережья, а за 20-30 минут в любой конец г. Калининграда, в 15 минутах езды находятся Голубые Озера, Калининградский залив.
Это идеальная локация для людей, которые ценят спокойствие и комфорт, а для тех, кто работает удалённо - идеальное место для спокойной работы и отдыха 💻
Удобная транспортная доступность позволяет быстро добраться до города Калининграда, ходит общественный транспорт: рейсовые автобусы -146 и 147, а так же маршрутное такси - 146к.
📍 Цена указана за наличный расчет. Возможна ипотека.
Ориентиры: п. Голубево, п. Ласкино, п. Прибрежный, п. Цветково.
Не упустите свой шанс стать обладателем этого уютного дома! Свяжитесь с нами прямо сейчас, чтобы узнать больше или записаться на просмотр. 📩📞
Мы гарантируем безопасную сделку и юридическую поддержку нашим Клиентам. Поможем одобрить ипотеку с сниженной ставкой.🏠
О доме
Год постройки
2023
Этажей в доме
1
Общая площадь
93 м²
Жилая площадь
36.1 м²
Площадь кухни
29.9 м²
Площадь комнат
14,3+11,4+10,4 м²
Материал постройки
Блочный
Материал перекрытий
Деревянные
Материал кровли
Металлочерепица
Высота потолков
3 м
Об участке
Площадь участка
6.7 сот.
Статус участка
Личное подсобное хозяйство
Электричество
Есть
Газ
Есть
Водоснабжение
Есть
Канализация
Есть
Без благоустройства участка
Есть
Подъезд к участку
Асфальт
Расположение
Россия, Калининградская область, Гурьевский муниципальный округ, посёлок Яблоневка, Школьная улица
Ипотечный калькулятор
Заполните 1 анкету — получите предложения от десятков банков на специальных условиях
Программа ипотеки
Стоимость жилья, ₽
Первый взнос, ₽
Срок кредита
от 5.75%
Ставка
от 40 892 ₽
Платеж в месяц
Расчёт носит информационный характер и не является публичной офертой
Предложите свою цену
6 500 000 ₽
69 892 ₽/м²



















