Купить дом на улице Пражская в Калининградской области
Россия, Калининградская область, Зеленоградский муниципальный округ, посёлок Холмогоровка, Пражская улица, 9
168.3 м²
Площадь дома
9 сот
Площадь участка
Газобетонный блок
Материал постройки
1
Этажей
Описание
Ориентиры: мик. район Чкаловск, Советский пр-кт.
Срочно продается новый, современный одноэтажный дом премиум-класса в популярном районе. Идеальное решение для комфортной жизни!
1 собственник, без обременений, быстрый выход на сделку.
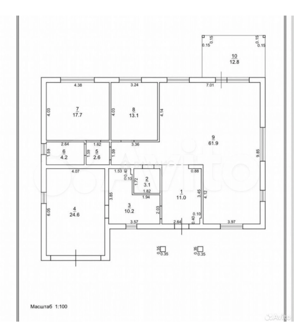
Площадь дома: 168,3 кв.м.
Комнаты: 17,7+13,1 кв.м.
Огромная кухня-гостиная: 61,9 кв.м.
Два санузла: 4,2; 3,1 кв.м.
Холл: 11 кв.м.
Котельная мастерская: 10,2 кв.м.
Гараж: 24,6
Высота потолков: 3,4 м.
Коммуникации:
- электричество;
- скважина;
- септик;
- газ проходит по участку, в ближайшее время будет производится подключение.
При строительстве дома использовались качественные материалы. Проведена разводка под: камеры видеонаблюдения; сигнализацию; в комнатах кабель и интернет - можно использовать под «Умный дом».
Рядом расположены: Парк Усадьбы Фухсберг, детский садик; остановки общественного транспорта в сторону курортных городов (Зеленоградск, Светлогорск, Янтарный, Пионерск, Донское); в школу детей возит автобус.
До города 5 минут, до моря 25. Имеются магазины, детские спортивные секции и центр развития детей. В шаговой доступности расположены новые теннисные корды, конный центр Rauschen.
Возможен обмен на Вашу недвижимость с доплатой!
Агентство проводит розыгрыш 300 тыс. рублей на путешествие! Для этого совершите любую сделку с агентством недвижимости, получите купон от Вашего агента, победитель определится в декабре 2025 г. случайным образом! Направление путешествия Вы можете выбрать самостоятельно.
Звоните, чтобы узнать детали и договориться о просмотре!
О доме
Год постройки
2024
Этажей в доме
1
Общая площадь
168.3 м²
Жилая площадь
30.8 м²
Площадь кухни
61.9 м²
Площадь комнат
17,7+13,1 м²
Материал постройки
Газобетонный блок
Материал перекрытий
Деревянные
Материал кровли
Металлочерепица
Высота потолков
3.23 м
Об участке
Площадь участка
9 сот.
Статус участка
Индивидуальное жилищное строительство
Электричество
Есть
Газ
Есть
Водоснабжение
Есть
Канализация
Есть
Гараж
Есть
Подъезд к участку
Асфальт
Расположение
Россия, Калининградская область, Зеленоградский муниципальный округ, посёлок Холмогоровка, Пражская улица, 9
Ипотечный калькулятор
Заполните 1 анкету — получите предложения от десятков банков на специальных условиях
Программа ипотеки
Стоимость жилья, ₽
Первый взнос, ₽
Срок кредита
от 5.75%
Ставка
от 69 202 ₽
Платеж в месяц
Расчёт носит информационный характер и не является публичной офертой
Предложите свою цену
11 000 000 ₽
65 359 ₽/м²

























































