Купить дом на улице Речная в Калининградской области
Россия, Калининградская область, Гвардейский муниципальный округ, посёлок Лунино, Речная улица
80 м²
Площадь дома
12 сот
Площадь участка
Блочный
Материал постройки
1
Этажей
Описание
Ориентир: Гвардейский район, г. Гвардейск, Знаменск, Талпаки, Забарье.
ПРЕИМУЩЕСТВА ДАННОГО ДОМА И ЭТОГО МЕСТА;
1. Прекрасная природа, чистый воздух, экология.
2. Близость к лесу, водоему, возможность пеших прогулок, рыбалка, поход за грибами и ягодами.
3. Отсутствие городского шума, спокойствие, тишина.
4. Доступная цена, ПОДХОДИТ ПОД (СЕМЕЙНУЮ) И ДРУГИЕ ЛЬГОТНЫЕ ИПОТЕКИ.
5. Наличие коммуникаций.
6. Быстрый выезд на главную автомобильную дорогу Е-28. Отличные автомобильные дороги и хорошая доступность в любую точку региона.
7. Уютный классический стиль дома.
6. Функциональная планировка дома без потери места.
7. Площадь земельного участка -12 соток с хорошей геометрией(!)
Характеристики дома:
Общая площадь дома 80 кв.м
Планировка:
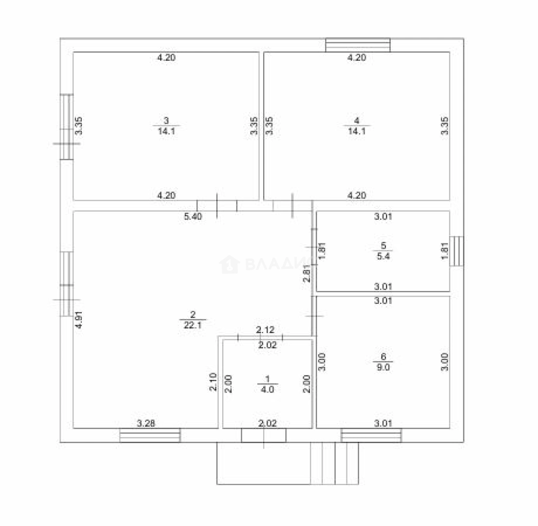
Входная группа (крыльцо, козырек-навес), прихожая, две раздельные спальные комнаты (14,1 + 14,1) кв.м практически квадратной формы; очень вместительный санузел с большим внешним окном -9 кв.м; техническое помещение с внешним окном -5,5 кв.м; уютная кухня-гостиная -22,1 кв.м. с большим окном и панорамным выходом на придомовую территорию.
Чердачное помещение -38 кв.м с доступом из дома.
Дом построен из газосиликатных блоков. Фасад утеплен пенополистиролом, покрыт декоративной штукатуркой, окрашен силиконовой краской. Окна и двери - стеклопакеты. Входные двери -3 замка.
Внутренние стены покрыты и выровнены цементно-известковой штукатуркой, прошпаклеваны. Полы – стартовая стяжка (отопление не разведено). Выполнена внутренняя разводка электричества, установлены выводы под все коммуникации.
Высота потолков 3,1 м.
Фундамент: ленточный + плита;
Межэтажные перекрытия: деревянные; утепление перекрытий минеральной ватой толщиной 150мм (подшивка ОСБ);
Крыша: четырехскатная;
Кровля: металлическая черепица;
Состояние дома: серый ключ;
Коммуникации:
Электричество: 15 кВт (380В);
Вода: скважина;
Канализация: ЛОС.
Характеристика участка:
Площадь: 12 соток; сухой, высокий (на пригорке), правильной прямоугольной формы 30 Х 40 м.
Категория: ИЖС
Собственность: частная
Огороженная территория.
Полное юридическое сопровождение сделки, подготовка документов.
О доме
Год постройки
2025
Этажей в доме
1
Общая площадь
80 м²
Жилая площадь
28.2 м²
Площадь кухни
22.1 м²
Площадь комнат
14,1+14,1 м²
Материал постройки
Блочный
Материал перекрытий
Деревянные
Материал кровли
Металлочерепица
Совмещенных санузлов
1
Об участке
Площадь участка
12 сот.
Статус участка
Индивидуальное жилищное строительство
Электричество
Есть
Водоснабжение
Есть
Канализация
Есть
Без благоустройства участка
Есть
Подъезд к участку
Асфальт
Расположение
Россия, Калининградская область, Гвардейский муниципальный округ, посёлок Лунино, Речная улица
Ипотечный калькулятор
Заполните 1 анкету — получите предложения от десятков банков на специальных условиях
Программа ипотеки
Стоимость жилья, ₽
Первый взнос, ₽
Срок кредита
от 5.75%
Ставка
от 30 827 ₽
Платеж в месяц
Расчёт носит информационный характер и не является публичной офертой
Предложите свою цену
4 900 000 ₽
61 250 ₽/м²























