Купить дом на улице Западная в Калининградской области
Россия, Калининградская область, Гурьевский муниципальный округ, посёлок Заозерье, Западная улица, 12
217 м²
Площадь дома
12 сот
Площадь участка
Пеноблок
Материал постройки
2
Этажей
Описание
Ориентиры: п.Низовье,п.Родники,мотель Балтика,Московский проспект.
Характеристики дома:
Площадь дома –217 м2.
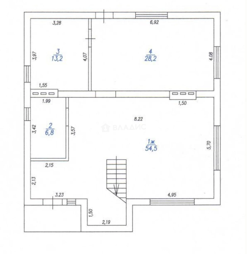
Планировка –дом 2 этажный. 1 этаж- прихожая,кухня-гостиная с выходом на веранду ,санузел . 2 этаж -4 комнаты,две из которых с балконом, санузел.
Высота потолка -3,2 м.
Материал стен- пеноблок.
Фундамент- монолитный 1200х400мм,на монолитной подушке 300х800мм и монолитная плита 200мм,
Перекрытия между первым и вторым этажом монолитное, монолитная лестница.
Кровля- керамическая черепица Roben.
Год постройки-2022 г.
Состояние- требует ремонта.
Коммуникации:
Газ подключен и уже введен в дом!!!!Установлен газовый котел!!!!!.
Свет 15кВт,уже подключен, 3 фазы.Вводный кабель заведен в дом по земле.Предусмотрен вывод электричества под автоматику ворот и уличного освещения. Водоснабжение скважина , канализация- септик.Подключен интернет.
Дом оформлен, документы готовы к сделке.
Характеристики участка:
Размер участка – 12с.
Назначение –для индивидуального строительства.
Участок в собственности.Ровный,сухой,не подтапливается.
Хорошие подъездные пути, качественная щебенка.
Отдел загородной недвижимости – исполняем мечты о собственном доме.
О доме
Год постройки
2022
Этажей в доме
2
Общая площадь
217 м²
Жилая площадь
79 м²
Площадь кухни
54.5 м²
Площадь комнат
21.5+21.7+25,2+10,6 м²
Материал постройки
Пеноблок
Материал перекрытий
Монолитные
Материал кровли
Керамическая черепица
Высота потолков
3.2 м
Об участке
Площадь участка
12 сот.
Статус участка
Индивидуальное жилищное строительство
Электричество
Есть
Газ
Есть
Водоснабжение
Есть
Канализация
Есть
Без благоустройства участка
Есть
Подъезд к участку
Щебенка
Расположение
Россия, Калининградская область, Гурьевский муниципальный округ, посёлок Заозерье, Западная улица, 12
Ипотечный калькулятор
Заполните 1 анкету — получите предложения от десятков банков на специальных условиях
Программа ипотеки
Стоимость жилья, ₽
Первый взнос, ₽
Срок кредита
от 5.75%
Ставка
от 72 285 ₽
Платеж в месяц
Расчёт носит информационный характер и не является публичной офертой
Предложите свою цену
11 490 000 ₽
52 949 ₽/м²






































