Купить дом на улице Парковая в Калининградской области
Россия, Калининградская область, Гурьевский муниципальный округ, посёлок Заозерье, Парковая улица, 2А
112 м²
Площадь дома
7 сот
Площадь участка
Блочный
Материал постройки
1
Этажей
Описание
Ориентир - п. Авангардное, п. Поддубное, п. Черемхово.
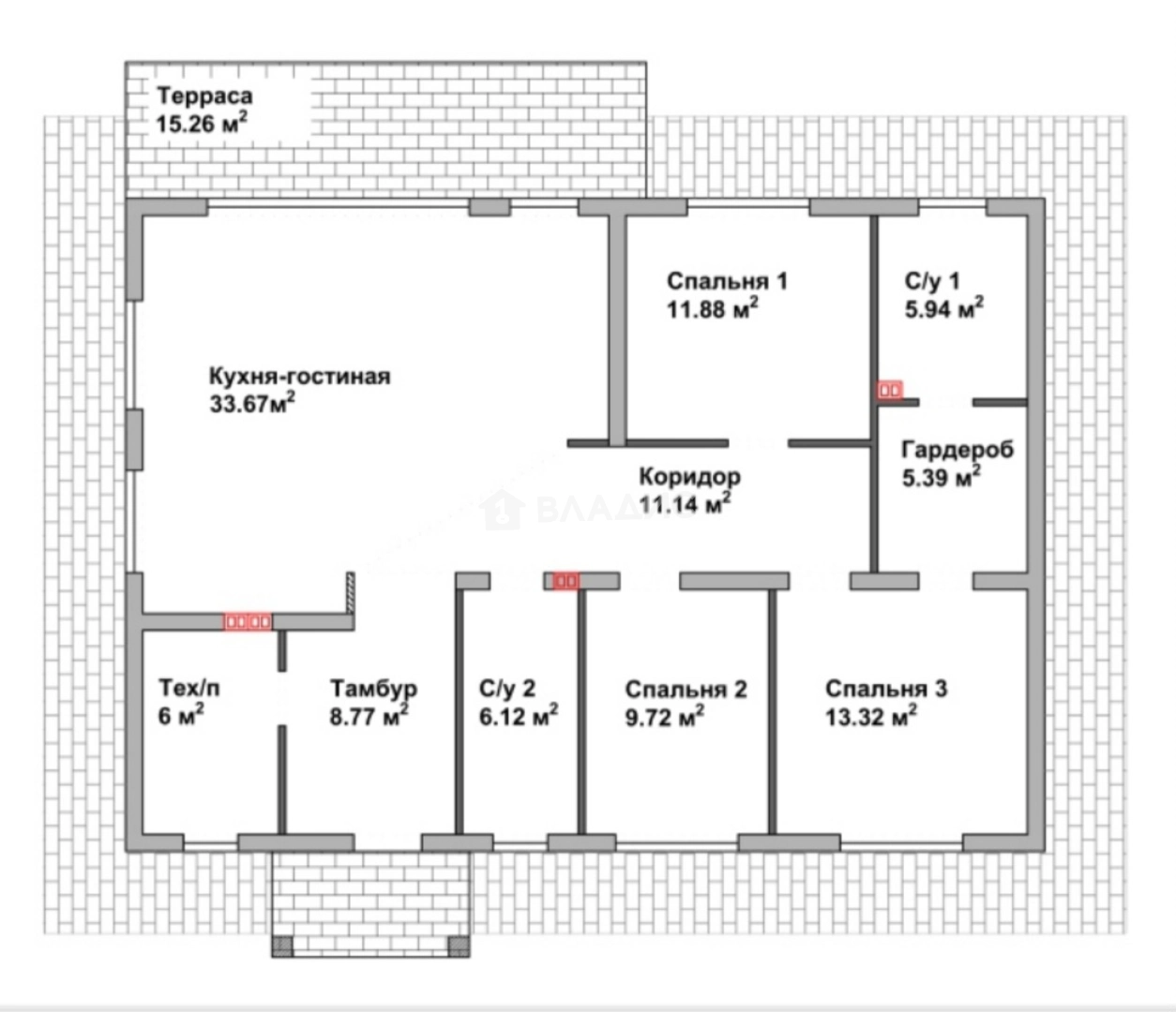
Удобная продуманная планировка:
- общая площадь - 112 кв.м., тамбур - 8,77 кв.м., коридор - 11,14 кв.м., кухня-гостиная - 34 кв.м. с застеклённым в пол выходом на открытую террасу - 15,26 кв.м., 3 спальни - 13,32+11,88+9,72 кв.м., 2 санузла - 6,12+5,94 кв.м., гардеробная - 5,39 кв.м., техническое помещение - 6 кв.м.
Дом построен из газосиликатного блока:
- фасад утеплен пенополистиролом, оштукатурен и окрашен;
- фундамент - монолитный (плита);
- внутренняя отделка - предчистовая;
- установлены качественные стеклопакеты - шестикамерный профиль, двухкамерный стеклопакет;
- крыша - цементно-песчаная черепица.
Наружные и внутренние коммуникации:
- отопление - автономное, установлен двухконтурный газовый котел, теплый пол во всех помещениях;
- произведен монтаж внутренних коммуникаций воды и канализации;
- водоснабжение - скважина;
- канализация - биостанция;
- подключено электричество разрешенной мощностью - 15 кВт;
- высокоскоростной интернет - оптоволокно.
Придомовая территория:
- земельный участок - 7 соток, категория - индивидуальное жилищное строительство;
- территория огорожена 3D-сеткой с трех сторон;
- вместительная парковка на несколько машин;
- видеонаблюдение с трансляцией на смартфон;
- улицы в поселке вымощены тротуарной плиткой.
Инфраструктура:
- большой парк для спорта и отдыха от застройщика на 3.5 га.;
- продуктовые магазины и супермаркеты в радиусе 1 км.;
- до детского сада, школы, взрослой и детской поликлиник - 12 минут на машине;
- до “Парка света” и ресторанов в Гурьевске - 15 минут на машине;
- до Московского проспекта - 10 минут на машине.
Звоните! Записывайтесь на просмотр в удобное для вас время!
О доме
Год постройки
2025
Этажей в доме
1
Общая площадь
112 м²
Жилая площадь
35 м²
Площадь кухни
34 м²
Площадь комнат
13+12+10 м²
Материал постройки
Блочный
Материал перекрытий
Ж/б плиты
Материал кровли
Металлочерепица
Совмещенных санузлов
2
Об участке
Площадь участка
7 сот.
Статус участка
Индивидуальное жилищное строительство
Электричество
Есть
Газ
Есть
Водоснабжение
Есть
Канализация
Есть
Охрана
Есть
Подъезд к участку
Асфальт
Расположение
Россия, Калининградская область, Гурьевский муниципальный округ, посёлок Заозерье, Парковая улица, 2А
Ипотечный калькулятор
Заполните 1 анкету — получите предложения от десятков банков на специальных условиях
Программа ипотеки
Стоимость жилья, ₽
Первый взнос, ₽
Срок кредита
от 5.75%
Ставка
от 78 010 ₽
Платеж в месяц
Расчёт носит информационный характер и не является публичной офертой
Предложите свою цену
12 400 000 ₽
110 714 ₽/м²
















