Купить таунхаус на улице Вишнёвый переулок в Калининградской области
Россия, Калининградская область, Гурьевский муниципальный округ, посёлок Шоссейное, Вишнёвый переулок, 5А
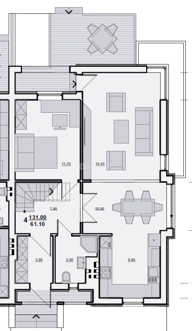
131 м²
Площадь дома
3 сот
Площадь участка
Блочный
Материал постройки
2
Этажей
Описание
Автономное отопление.
Газ подключён.
Полы с подогревом.
Качественный серый ключ.
Прекрасное решение для дружной семьи.
Звоните сразу, организую вам показ и встречу с застройщиком в удобное время.
О доме
Год постройки
2017
Этажей в доме
2
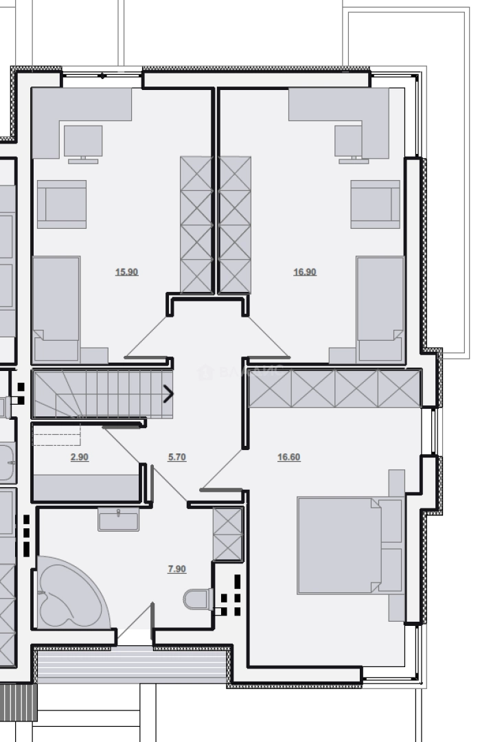
Общая площадь
131 м²
Жилая площадь
80.3 м²
Площадь кухни
18.6 м²
Площадь комнат
11.7+19.2+15.9+16.9+ 16.6 м²
Материал постройки
Блочный
Материал перекрытий
Ж/б плиты
Материал кровли
Мягкая черепица
Совмещенных санузлов
2
Об участке
Площадь участка
3 сот.
Статус участка
Индивидуальное жилищное строительство
Электричество
Есть
Газ
Есть
Водоснабжение
Есть
Канализация
Есть
Без благоустройства участка
Есть
Подъезд к участку
Асфальт
Расположение
Россия, Калининградская область, Гурьевский муниципальный округ, посёлок Шоссейное, Вишнёвый переулок, 5А
Ипотечный калькулятор
Заполните 1 анкету — получите предложения от десятков банков на специальных условиях
Программа ипотеки
Стоимость жилья, ₽
Первый взнос, ₽
Срок кредита
от 5.75%
Ставка
от 61 653 ₽
Платеж в месяц
Расчёт носит информационный характер и не является публичной офертой
Предложите свою цену
9 800 000 ₽
74 809 ₽/м²





















