Продается Готовый Бизнес, 70 м²
Россия, Калуга, улица Баррикад, 8
70 м²
Общая площадь
Отдельный
Вход в помещение
Свободный
Доступ в помещение
1 из 9
Этаж
Описание
Предлагается к покупке готовый бизнес, современная стоматологическая клиника!
Продажа с действующей лицензией!!!
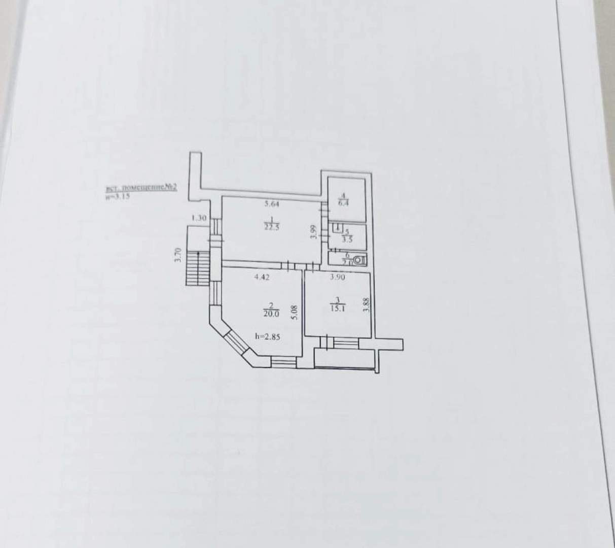
Общая площадь 70 кв.м
Просторный холл 22,5 кв.м
Два кабинета 20 кв.м и 15,1 кв.м
Два подсобных помещения и сан.узел
Лоджия , установлены кондиционеры.
Стоматологические кабинеты оснащены сложным, профессиональным оборудованием и многочисленными инструментами.
Пациентам предоставляется полный комплекс стоматологических услуг, высокоточная диагностика, ювелирная точность, лечение зубов на новом уровне.
Фотографии и описание соответствуют реальности. Предложение актуально!
Если вы понимаете, что вам подходит этот бизнес, и вы хотите посмотреть объект, то прямо сейчас свяжитесь со мной!
Объект без обременений, один собственник, быстрый выход на сделку.
Район с развитой инфраструктурой . В шаговой доступности остановки общественного транспорта , школы, детские сады, сетевые магазины, торговые центры, парки, скверы.
Мы гарантируем чистоту юридической сделки!
Об объекте
Общая площадь
70 м²
Этаж
1
Электрическая мощность
15 кВт
Ремонт
Евро
Вход в помещение
Отдельный
Доступ в помещение
Свободный
Удобства
Интернет
Кондиционер
Вентиляция
Кухня
Мебель
Охрана
Пожарная сигнализация
О здании
Тип коммерции
Многоквартирный дом
Год постройки
2004
Материал постройки
Кирпично-монолитный
Отопление
Центральное
Этажей в доме
9
Парковка
Наземная
Расположение
Россия, Калуга, улица Баррикад, 8
Ипотечный калькулятор
Заполните 1 анкету — получите предложения от десятков банков на специальных условиях
Программа ипотеки
Стоимость жилья, ₽
Первый взнос, ₽
Срок кредита
от 5.75%
Ставка
от 94 366 ₽
Платеж в месяц
Расчёт носит информационный характер и не является публичной офертой
Гусейнова Алевтина
Агент по недвижимости
Предложите свою цену
15 000 000 ₽
214 286 ₽/м²












