Купить дом на улице Геннадия Уланова в Калуге
Россия, Калуга, улица Геннадия Уланова, 24
194 м²
Площадь дома
11.36 сот
Площадь участка
Блочный
Материал постройки
1
Этажей
Описание
Местоположение: Калужская область, г. Калуга ул. Геннадия Уланова.
СДЕЛАНА ГЕОДЕЗИЯ/ГЕОЛГИЯ ГРУНТА ПЕРЕД СТРОИТЕЛЬСТВОМ ДОМА (ТЕГИПРОВЕРКА ПОЧВЫ). ДОМ ПОСТРОЕН ПО ИНДИВИДУАЛЬНОМУ ПРОЕКТУ. ДОКУМЕНТАЦИЯ НА РУКАХ.
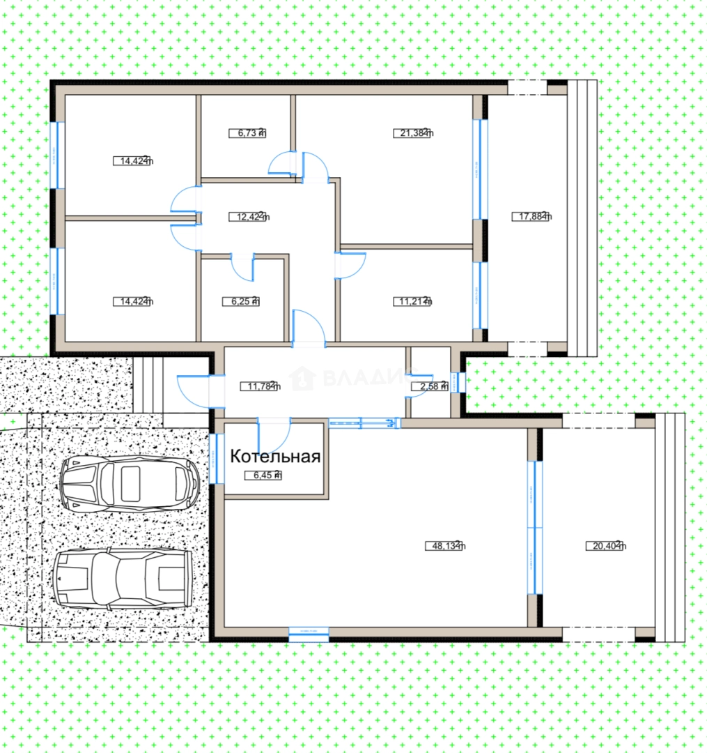
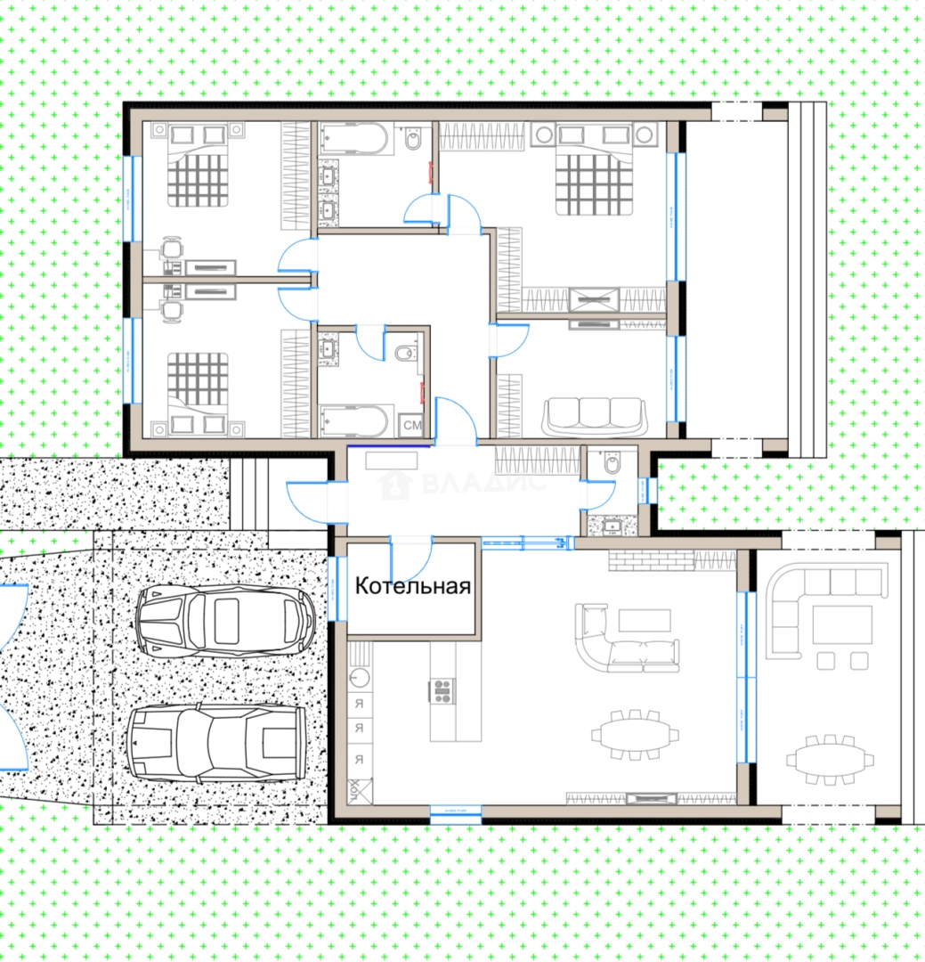
Планировка дома:
Прихожая, котельная, холл, кухня-гостиная с выходом на террасу, четыре спальные комнаты, одна из которых также с выходом на террасу, три сан. узла, гардеробная. Тех план приложен см. в фото.
Коммуникации:
Магистральный газ. Документы на стадии оформления.
Электричество 10 кВт.
Канализация и вода - центральные.
Интернет - оптоволокно (по границе участка).
Параметры домовладения:
Площадь дома - 194 м2
Фундамент - монолитный ленточный (перевернутая чаша) с глубиной заложения 1,4м, армированный.
Утеплитель: минвата Изомин Фасад-15 (1000*500*100мм)
Материал стен - газоблок Bonolit 300 мм с утеплением.
Внешняя отделка - фальцевая панель Кликфальц Grand Line, имитация бруса.
Окна - будут установлены двухкамерные стеклопакеты в темной ламинации с поворотнооткидным механизмом.
Земельный участок:
11,36 соток, выровнят.
Забетонирована отмостка вокруг дома и площадка под два автомобиляс навесом, площадью 42 кв.м.
По периметру участка будет установлен забор из металлического штакетника.
Обращаем ваше внимание: дом продается без чистовой отделки, стоимость указана за теплый контур с внешней отделкой на фото. Возможна отделка под ключ.
Транспортная доступность: автобусная остановка. Удобная транспортная развязка (возможность заезда с разных направлений: Анненок, Силикатного, Подзавалья) Присутствует удобный круглогодичный подъезд, асфальтированная подъездная дорога от шоссе до поселка.
Просмотр дома: Осуществляется в удобное для Вас время по предварительной записи.
ДОМ ПОДХОДИТ ПОД ОБЫЧНУЮ ИПОТЕКУ БЕЗ ГОСПОДДЕРЖКИ.
О доме
Год постройки
2025
Этажей в доме
1
Общая площадь
194 м²
Жилая площадь
61.43 м²
Площадь кухни
48.13 м²
Площадь комнат
14,42+14,42+21,38+11,21 м²
Материал постройки
Блочный
Материал перекрытий
Деревянные
Материал кровли
Железо
Высота потолков
3.2 м
Об участке
Площадь участка
11.36 сот.
Статус участка
Индивидуальное жилищное строительство
Электричество
Есть
Газ
Есть
Водоснабжение
Есть
Канализация
Есть
Без благоустройства участка
Есть
Подъезд к участку
Щебенка
Расположение
Россия, Калуга, улица Геннадия Уланова, 24
Ипотечный калькулятор
Заполните 1 анкету — получите предложения от десятков банков на специальных условиях
Программа ипотеки
Стоимость жилья, ₽
Первый взнос, ₽
Срок кредита
от 5.75%
Ставка
от 62 911 ₽
Платеж в месяц
Расчёт носит информационный характер и не является публичной офертой
Предложите свою цену
10 000 000 ₽
51 546 ₽/м²

































