Продается 4-комн. квартира, 76.89 м²
Россия, Калуга, улица Болдина, 22/1
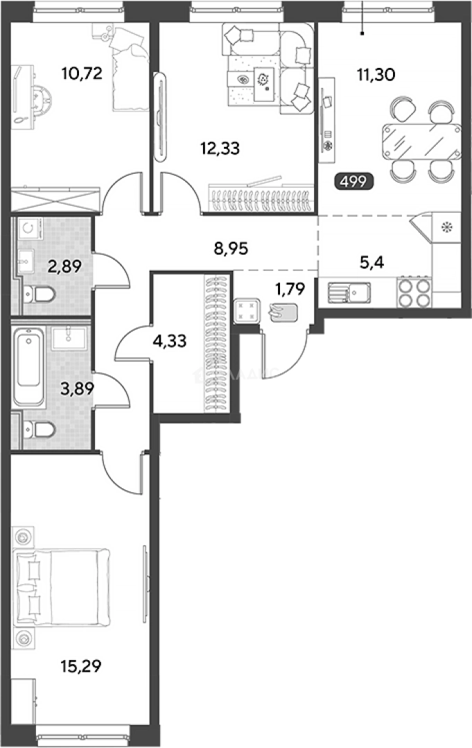
76.89 м²
Общая площадь
38.34 м²
Жилая площадь
16.7 м²
Площадь кухни
16 из 25
Этаж
Описание
В жилом комплексе предложен широкий выбор современных функциональных планировок: от компактных студий до трехкомнатных квартир евроформата с просторной кухней-гостиной. Во всех квартирах увеличенные окна и высокие потолки от 2,65 метра. Часть лотов сдается с чистовой отделкой. Из окон квартир открывается вид на реку Ока и благоустроенный двор.
В квартале спроектированы дворы без машин с всесезонным озеленением. Здесь оборудованы современные игровые площадки для детей разных возрастов, выполненные из натуральных и безопасных материалов. Также предусмотрены зоны для спокойного отдыха со скамейками и крытыми зонами. А для любителей активного образа жизни есть воркаут-площадки с тренажерами. В квартале есть собственный бульвар для пеших прогулок с зонами отдыха. Для общения и отдыха жителей комплекса организован многофункциональный соседский центр.
Жилой квартал расположен в Ленинском округе Калуги, на левом берегу Оки, недалеко от центра города. Вокруг развитый район: в пешей доступности магазины, торговые центры, кафе, поликлиники. До школы № 4 всего три минуты пешком, до детского сада № 30 — 10 минут. В трёх минутах пешком находится спортивная школа «Юность». На машине за 5 минут можно доехать до теннисного центра «Теннис XL». У жилого комплекса отличная транспортная доступность. Всего в 2 минутах находится остановка городского транспорта — можно доехать в любую точку города на автобусе, маршрутке или троллейбусе. На машине до ж/д вокзала — 15 минут, до международного аэропорта Калуги имени К. Э. Циолковского — 10 минут. До ботанического сада КГУ им. К. Э. Циолковского можно доехать за 6 минут на машине, а до музея истории космонавтики — за 15 минут.
О квартире
Общая площадь
76.89 м²
Жилая площадь
38.34 м²
Площадь кухни
16.7 м²
Площадь комнат
12.33+10.72+15.29 м²
Высота потолков
2.65 м
Подъезд
3
Этаж
16
Окна выходят
На улицу
О доме
Год постройки
2027
Этажность
25
Количество подъездов
4
Материал постройки
Кирпично-монолитный
Материал перекрытий
Монолитные
Отопление
Центральное
Пассажирских лифтов
1
Грузовых лифтов
1
Парковка
Наземная
Расположение
Россия, Калуга, улица Болдина, 22/1
Ипотечный калькулятор
Заполните 1 анкету — получите предложения от десятков банков на специальных условиях
Программа ипотеки
Стоимость жилья, ₽
Первый взнос, ₽
Срок кредита
от 5.75%
Ставка
от 57 881 ₽
Платеж в месяц
Расчёт носит информационный характер и не является публичной офертой
Похожие объекты
Консультант по новостройкам
9 200 504 ₽
119 659 ₽/м²
















