Купить дом в Калужской области
Россия, городской округ Калуга, деревня Белая
73.1 м²
Площадь дома
6.7 сот
Площадь участка
Каркас
Материал постройки
1
Этажей
Описание
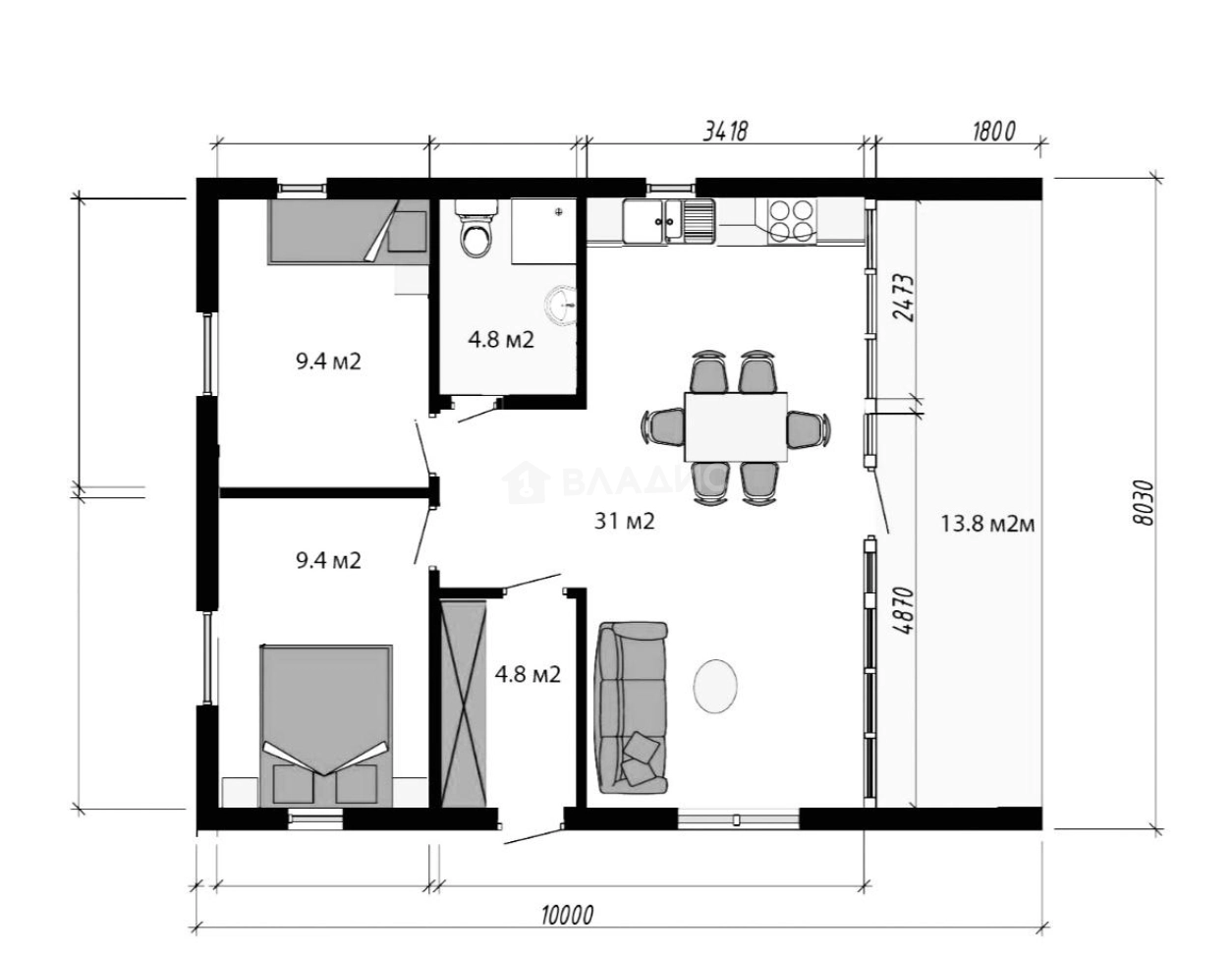
На видовом ровном участке 6,7 соток правильной формы! Земли ИЖС
Особенности:
- Просторные 2 спальни для комфортного проживания.
- Уютная кухня-гостиная площадью 25 метров с панорамными окнами, где вы сможете наслаждаться красивыми пейзажами!
- Очаровательная веранда 20 метров для утренних кофе и вечерних посиделок.
- Вся мебель и декор остаются - заезжай и живи!
- Коммуникации: Газ, центральный водопровод на участке, септик.
В 5 минутах ходьбы остановка школьного автобуса в 49 и 30 школы, там же остановка общественного транспорта позволяет быть максимально мобильным. Отличная альтернатива 2-х комнатной квартире, за ту же сумму.
Это место станет идеальным уголком для семьи или уединённого отдыха.
Не упустите шанс! Звоните уже сегодня, чтобы узнать больше информации и записаться на просмотр! Кадастровый номер участка 40:25:000144:325
Кадастровый номер дома: 40:25:000144:429
О доме
Год постройки
2024
Этажей в доме
1
Общая площадь
73.1 м²
Жилая площадь
35 м²
Площадь кухни
25 м²
Площадь комнат
12 м²
Материал постройки
Каркас
Материал перекрытий
Деревянные
Материал кровли
Металлочерепица
Высота потолков
3.5 м
Об участке
Площадь участка
6.7 сот.
Статус участка
Индивидуальное жилищное строительство
Электричество
Есть
Газ
Есть
Водоснабжение
Есть
Канализация
Есть
Без благоустройства участка
Есть
Подъезд к участку
Асфальт
Расположение
Россия, городской округ Калуга, деревня Белая
Ипотечный калькулятор
Заполните 1 анкету — получите предложения от десятков банков на специальных условиях
Программа ипотеки
Стоимость жилья, ₽
Первый взнос, ₽
Срок кредита
от 5.75%
Ставка
от 37 747 ₽
Платеж в месяц
Расчёт носит информационный характер и не является публичной офертой
Юшечкин Денис
Агент по недвижимости
Предложите свою цену
6 000 000 ₽
82 079 ₽/м²



















