Купить дом на улице Лесная в Калужской области
Россия, Калужская область, Перемышльский район, сельское поселение Большие Козлы, деревня Малые Козлы, Лесная улица
140 м²
Площадь дома
8 сот
Площадь участка
Блочный
Материал постройки
2
Этажей
Описание
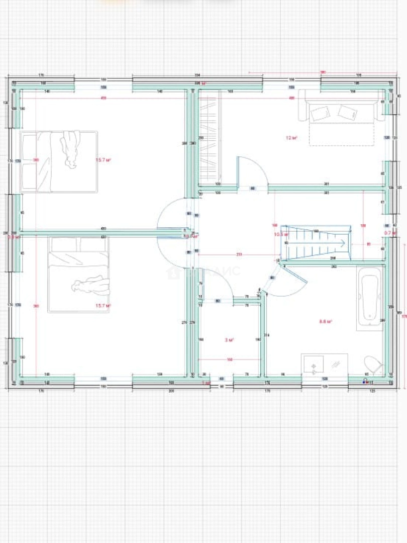
Уникальное предложение для ценителей спокойной жизни на природе — двухэтажный блочный дом в деревне Малые Козлы Перемышльского района Калужской области. Дом построен в 2024 году, общая площадь составляет 140 кв. м, из которых 50 кв. м — жилая площадь. Высота потолков — 3,2 м, что создаёт ощущение простора и свободы.
Участок площадью 8 соток имеет статус личного подсобного хозяйства, обеспечен щебёночным подъездом. Коммуникации включают электричество, канализацию и газ. Водоснабжение осуществляется из скважины. Дом подходит для круглогодичного проживания, однако требует проведения отделочных работ.
Два совмещённых санузла обеспечивают удобство для всех членов семьи. Отсутствие отопления даёт возможность новым владельцам выбрать оптимальный вариант для своего дома.
Этот дом — отличная возможность для тех, кто хочет насладиться свежим воздухом и природой, не отказываясь от удобств современной жизни. Всего 12 километров до города обеспечивают хорошую транспортную доступность.
Не упустите шанс стать владельцем этого уютного дома! Позвоните нам прямо сейчас, чтобы узнать больше и записаться на просмотр.
Мы гарантируем безопасную сделку и юридическую поддержку нашим Клиентам. Поможем одобрить ипотеку с сниженной ставкой.
О доме
Год постройки
2024
Этажей в доме
2
Общая площадь
140 м²
Жилая площадь
50 м²
Площадь кухни
30 м²
Площадь комнат
50 м²
Материал постройки
Блочный
Материал перекрытий
Ж/б плиты
Материал кровли
Металлочерепица
Высота потолков
3.2 м
Об участке
Площадь участка
8 сот.
Статус участка
Личное подсобное хозяйство
Электричество
Есть
Газ
Есть
Канализация
Есть
Без благоустройства участка
Есть
Подъезд к участку
Щебенка
Расположение
Россия, Калужская область, Перемышльский район, сельское поселение Большие Козлы, деревня Малые Козлы, Лесная улица
Ипотечный калькулятор
Заполните 1 анкету — получите предложения от десятков банков на специальных условиях
Программа ипотеки
Стоимость жилья, ₽
Первый взнос, ₽
Срок кредита
от 5.75%
Ставка
от 27 681 ₽
Платеж в месяц
Расчёт носит информационный характер и не является публичной офертой
Зотов Алексей
Агент по недвижимости
Предложите свою цену
4 400 000 ₽
31 429 ₽/м²



























