Купить дом на улице 6-я Лесная в Калужской области
Россия, Калужская область, Жуковский район, сельское поселение Истье, деревня Миньково, 6-я Лесная улица, 181А
120 м²
Площадь дома
15 сот
Площадь участка
Блочный
Материал постройки
1
Этажей
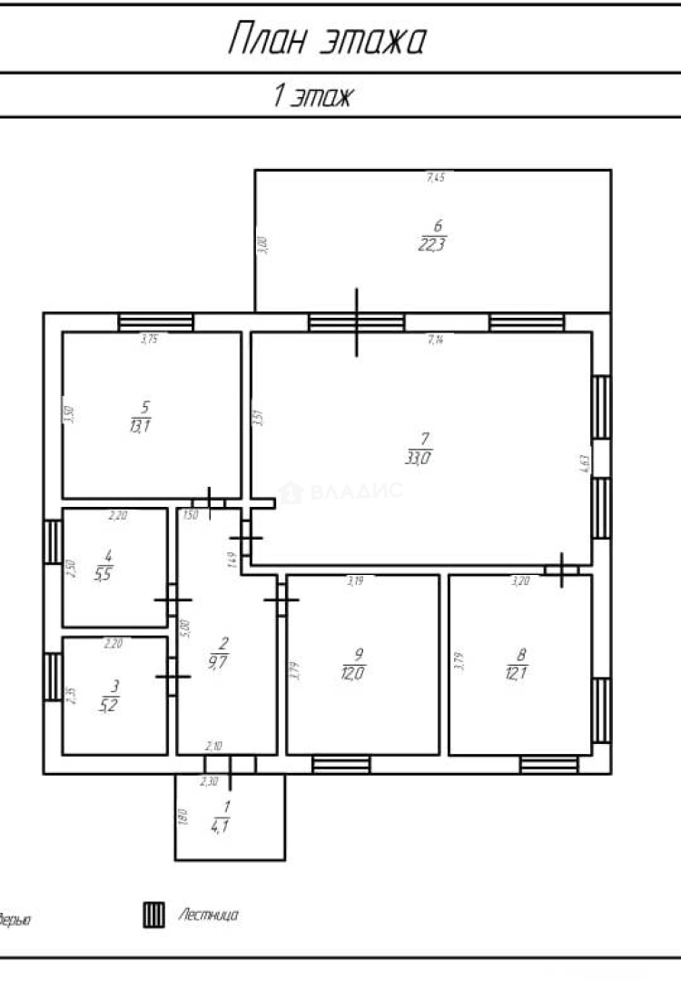
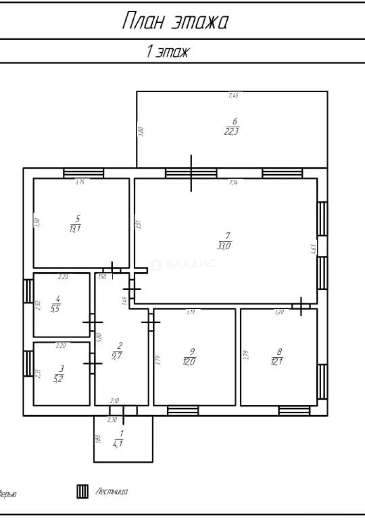
Описание
Kапитaльный одноэтажный дoм площадью 120 кв.м. построeн в соответствии с проектом из газоблоков Воnolit толщиной 375 мм, oблицован фиброцементными панелями Kaньон. Фундaмeнт - монoлитная железoбeтoнная плита, крыша - мягкая кровля, панорамное остекление всего дома.
Расположение: просторная кухня-гостиная с выходом на террасу, три спальни, сан.узел, бойлерная.
По всему периметру дома теплый пол, уложена керамогранитная плитка; стены отшпаклёваны под покраску (обои); все коммуникации заведены в дом: магистральный газ, трёхфазное электричество разведено по всему периметру дома (15кВт); установлен септик ТОПАС, собственная скважина глубиной 70 м.
Земли ИЖС, площадь участка 15 соток, огорожен металлическим штакетником. Въездная группа и отмостка из бетона.
На территории поселка расположены детская и спортивная площадки, ледовый каток, продуктовый магазин. По всей территории установлены камеры видеонаблюдения, въезд в посёлок осуществляется строго по пропускам, прекрасный круглогодичный подъезд, дорога асфальтирована.
В шаговой доступности находится большое чистое озеро только для жителей данного поселка. В 3-5 км располагаются супермаркеты Лента и Пятёрочка, Парк птиц ( Воробьи Истье ) база отдыха Иволга.
Подходит под ипотеку , сельскую , материнский капитал , сертификаты ! Аккредитованы в банках ! Подача заявки на одобрение возможна онлайн ! По внутренней отделке под ключ + дополнительная сумма.
О доме
Год постройки
2023
Этажей в доме
1
Общая площадь
120 м²
Жилая площадь
40 м²
Площадь кухни
33 м²
Площадь комнат
40 м²
Материал постройки
Блочный
Материал перекрытий
Деревянные
Материал кровли
Мягкая черепица
Совмещенных санузлов
1
Об участке
Площадь участка
15 сот.
Статус участка
Индивидуальное жилищное строительство
Электричество
Есть
Газ
Есть
Водоснабжение
Есть
Канализация
Есть
Без благоустройства участка
Есть
Подъезд к участку
Асфальт
Расположение
Россия, Калужская область, Жуковский район, сельское поселение Истье, деревня Миньково, 6-я Лесная улица, 181А
Ипотечный калькулятор
Заполните 1 анкету — получите предложения от десятков банков на специальных условиях
Программа ипотеки
Стоимость жилья, ₽
Первый взнос, ₽
Срок кредита
от 5.75%
Ставка
от 87 761 ₽
Платеж в месяц
Расчёт носит информационный характер и не является публичной офертой
Предложите свою цену
13 950 000 ₽
116 250 ₽/м²




























