Купить дом на улице Промышленная в Каргате
Россия, Новосибирская область, Каргат, Промышленная улица, 51
100 м²
Площадь дома
6 сот
Площадь участка
Кирпичный
Материал постройки
1
Этажей
Описание
О доме
Год постройки
2023
Этажей в доме
1
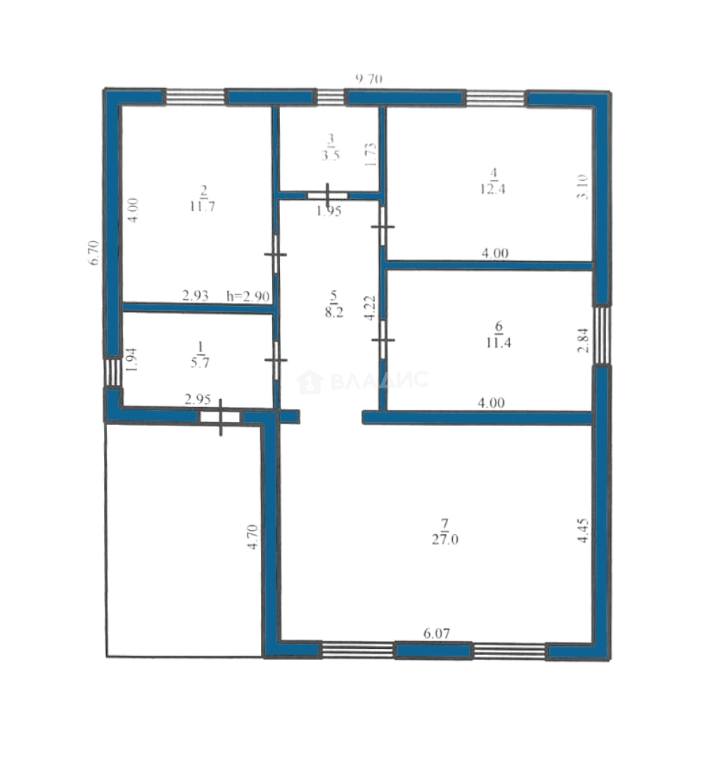
Общая площадь
100 м²
Жилая площадь
36 м²
Площадь кухни
27 м²
Площадь комнат
12+12+12 м²
Материал постройки
Кирпичный
Материал перекрытий
Ж/б плиты
Материал кровли
Профнастил
Высота потолков
2.7 м
Об участке
Площадь участка
6 сот.
Статус участка
Личное подсобное хозяйство
Электричество
Есть
Водоснабжение
Есть
Без благоустройства участка
Есть
Подъезд к участку
Щебенка
Расположение
Россия, Новосибирская область, Каргат, Промышленная улица, 51
Ипотечный калькулятор
Заполните 1 анкету — получите предложения от десятков банков на специальных условиях
Программа ипотеки
Стоимость жилья, ₽
Первый взнос, ₽
Срок кредита
от 5.75%
Ставка
от 22 019 ₽
Платеж в месяц
Расчёт носит информационный характер и не является публичной офертой
Предложите свою цену
3 500 000 ₽
35 000 ₽/м²















