Купить дом на улице Дуслар в районе Советский в Казани
Россия, Республика Татарстан (Татарстан), Казань, улица Дуслар, 74
145 м²
Площадь дома
7.3 сот
Площадь участка
Кирпичный
Материал постройки
1
Этажей
Описание
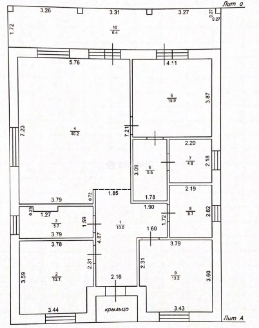
Дом построен в 2024 году из кирпича и имеет мягкую черепицу на крыше. Общая площадь составляет 145 кв. м, из которых 42 кв. м — жилая площадь, а 40,2 кв. м занимает кухня. В доме четыре комнаты площадью 13,1; 15,9 и 13,2 кв.м. Дом подходит для круглогодичного проживания и оснащён всеми необходимыми коммуникациями: водоснабжение, электричество, газ и канализация. Отопление осуществляется с помощью индивидуального котла. Подъезд к участку асфальтированный.
Участок имеет площадь 7,3 соток и статус индивидуального жилищного строительства. На участке отсутствуют благоустроительные работы. Этот дом идеально подойдёт тем, кто ищет уютное место для жизни в спокойном районе Казани. Не упустите свой шанс стать владельцем этого прекрасного дома!
Мы гарантируем безопасную сделку и юридическую поддержку нашим клиентам. Поможем одобрить ипотеку с сниженной ставкой.
О доме
Год постройки
2024
Этажей в доме
1
Общая площадь
145 м²
Жилая площадь
42.2 м²
Площадь кухни
40.2 м²
Площадь комнат
13,1+15,9+13,2 м²
Материал постройки
Кирпичный
Материал перекрытий
Ж/б плиты
Материал кровли
Мягкая черепица
Раздельных санузлов
2
Об участке
Площадь участка
7.3 сот.
Статус участка
Индивидуальное жилищное строительство
Электричество
Есть
Газ
Есть
Водоснабжение
Есть
Канализация
Есть
Без благоустройства участка
Есть
Подъезд к участку
Асфальт
Расположение
Россия, Республика Татарстан (Татарстан), Казань, улица Дуслар, 74
Ипотечный калькулятор
Заполните 1 анкету — получите предложения от десятков банков на специальных условиях
Программа ипотеки
Стоимость жилья, ₽
Первый взнос, ₽
Срок кредита
от 5.75%
Ставка
от 112 611 ₽
Платеж в месяц
Расчёт носит информационный характер и не является публичной офертой
Предложите свою цену
17 900 000 ₽
123 448 ₽/м²






