Купить дом на улице Угловая в районе Заводский в Кемерове
Россия, Кемерово, Угловая улица, 115
65 м²
Площадь дома
6 сот
Площадь участка
Брус
Материал постройки
1
Этажей
Описание
Дом построен из бруса лиственницы, обшит гипсокартонном, крыша металлочерепица. Установлены пластиковые окна.
Отдельно выведен котел. Расход угля 5 тонн, но остается около 1-1,5 тонн остается. В доме 3 жилых помещения: зал и 2 спальни, кухня, санузел и небольшая прихожая+ небольшая комната с котлом.
Санузел выложен кафельной плиткой, натяжной пололок со светодиодным светом .
Во всех комнатах особый интерьер на потолке, что подчеркивает утонченность каждой отдельной комнаты.
Углярка расположена на улице ,абсолютно новая.
Огород ухожен. На территории огорода установлена 6 метровая телица. Много плодовоягодных кустарников.
С другой стороны дома имеется уличный туалет, зона отдыха, также там можно установить беседку.
Соседи дружелюбные, тихие. Тихое место, но в городе. Дом расположен вдали от дороги, благодаря чему нет шума и пыли .
Позвоните нам прямо сейчас, чтобы узнать больше и записаться на просмотр. Мы гарантируем безопасную сделку и юридическую поддержку нашим Клиентам. Поможем одобрить ипотеку с сниженной ставкой.
О доме
Год постройки
1955
Этажей в доме
1
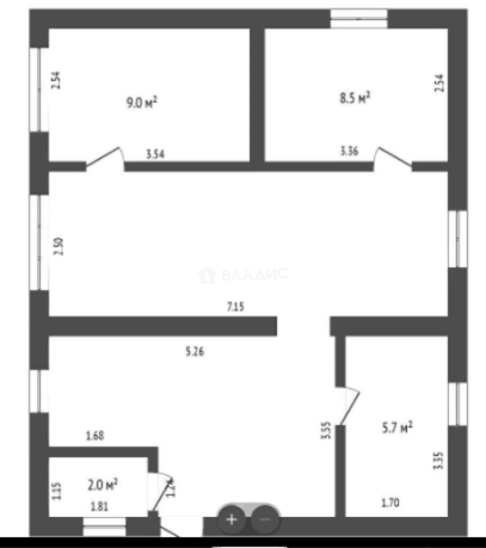
Общая площадь
65 м²
Жилая площадь
53 м²
Площадь кухни
7 м²
Площадь комнат
17+17+19 м²
Материал постройки
Брус
Материал перекрытий
Деревянные
Материал кровли
Металлочерепица
Совмещенных санузлов
1
Об участке
Площадь участка
6 сот.
Статус участка
Индивидуальное жилищное строительство
Электричество
Есть
Канализация
Есть
Без благоустройства участка
Есть
Подъезд к участку
Асфальт
Расположение
Россия, Кемерово, Угловая улица, 115
Ипотечный калькулятор
Заполните 1 анкету — получите предложения от десятков банков на специальных условиях
Программа ипотеки
Стоимость жилья, ₽
Первый взнос, ₽
Срок кредита
от 5.75%
Ставка
от 26 423 ₽
Платеж в месяц
Расчёт носит информационный характер и не является публичной офертой
Могилевская Софья
Агент по недвижимости
Предложите свою цену
4 200 000 ₽
64 615 ₽/м²
























