Продается 4-комн. квартира, 71.86 м²
Россия, Кемерово, улица Дружбы, 9
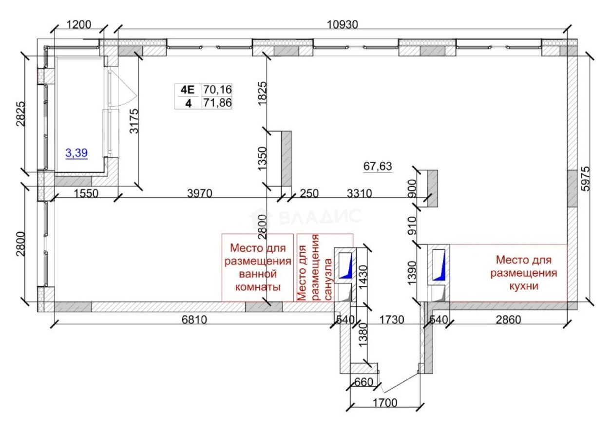
71.86 м²
Общая площадь
10 из 16
Этаж
Описание
Широкоформатные окна, высокоскоростные лифты, просторные входные группы и разнообразие планирвок не оставят равнодушными ни одного покупателя.
Кроме того, в ЖК 7 ВЫСОТ предусмотрены спортивные и игровые площадки, а также зеленые зоны и собственный парк.
*Компания ДЕРЖАВА НЕДВИЖИМОСТЬ дает покупателям особые привилегии при бронировании и покупке, уточните информацию у специалиста:
1. Полная база всех квартир от надежных застройщиков Кемерово
2. Сопровождение покупки на всех этапах
3. Консультацию по продаже вашей квартиры и оценку её стоимости
4. Актуальная информация по всем спецпредложениям и акциям
5. Одобрение ипотеки по сниженным процентным ставкам
Если не хотите полагаться на удачу - звоните нам! И мы поможем не только найти лучшие варианты квартир по Вашим пожеланиям, но и договоримся с застройщиком и банками о лучших для Вас условиях приобретения.
О квартире
Общая площадь
71.86 м²
Этаж
10
Окна выходят
На улицу
О доме
Год постройки
2026
Этажность
16
Количество подъездов
1
Материал постройки
Кирпично-монолитный
Материал перекрытий
Ж/б плиты
Отопление
Центральное
Парковка
Наземная
Расположение
Россия, Кемерово, улица Дружбы, 9
Ипотечный калькулятор
Заполните 1 анкету — получите предложения от десятков банков на специальных условиях
Программа ипотеки
Стоимость жилья, ₽
Первый взнос, ₽
Срок кредита
от 5.75%
Ставка
от 62 568 ₽
Платеж в месяц
Расчёт носит информационный характер и не является публичной офертой
Похожие объекты









4-комн. квартира, 74,1 м², 9/16 эт.









4-комн. квартира, 74,1 м², 14/16 эт.
Консультант по новостройкам
9 945 424 ₽
138 400 ₽/м²




















