Продается 3-комн. квартира, 61 м²
Россия, Кемерово, улица Сарыгина, 23
61 м²
Общая площадь
45.5 м²
Жилая площадь
7 м²
Площадь кухни
4 из 5
Этаж
Описание
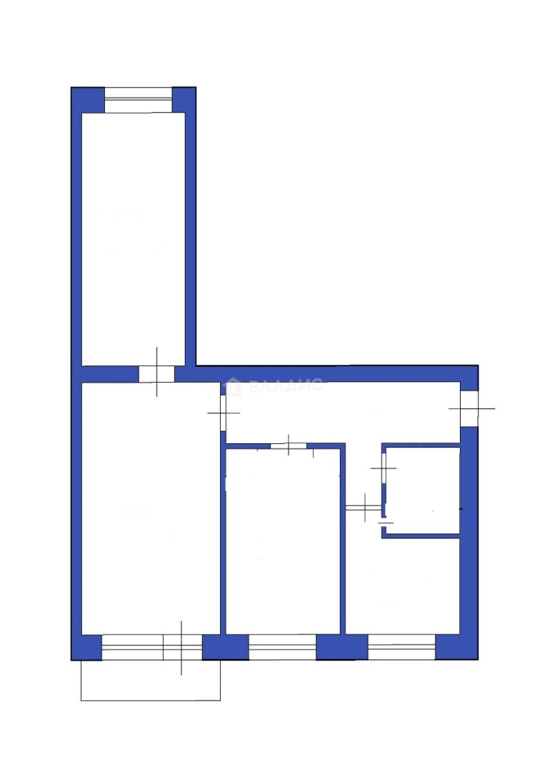
Эта просторная квартира общей площадью 61 кв. м расположена на четвёртом этаже пятиэтажного кирпичного дома . Жилая площадь составляет 45,5 кв. м, а площадь кухни — 7 кв. м. Высота потолков 2,7 м создаёт ощущение простора и свободы. Комнаты изолированы, что обеспечивает комфорт и уединение. Окна выходят на улицу, а наличие балкона добавляет дополнительное пространство для отдыха.
Квартира подойдёт тем, кто ищет доступное жильё в спокойном районе. Старый ремонт позволит новым владельцам воплотить свои дизайнерские идеи.
Не упустите шанс стать обладателем этой уютной квартиры! Звоните нам прямо сейчас, чтобы узнать больше и записаться на просмотр.
Мы гарантируем безопасную сделку и юридическую поддержку нашим клиентам. Поможем одобрить ипотеку с сниженной ставкой.
О квартире
Общая площадь
61 м²
Жилая площадь
45.5 м²
Площадь кухни
7 м²
Площадь комнат
18+14+13,5 м²
Высота потолков
2.7 м
Подъезд
3
Этаж
4
Расположение квартиры
не угловая
Окна выходят
На улицу
Раздельных санузлов
1
О доме
Год постройки
1968
Этажность
5
Количество подъездов
4
Материал постройки
Кирпичный
Материал перекрытий
Ж/б плиты
Отопление
Центральное
Парковка
Наземная
Расположение
Россия, Кемерово, улица Сарыгина, 23
Ипотечный калькулятор
Заполните 1 анкету — получите предложения от десятков банков на специальных условиях
Программа ипотеки
Стоимость жилья, ₽
Первый взнос, ₽
Срок кредита
от 5.75%
Ставка
от 32 399 ₽
Платеж в месяц
Расчёт носит информационный характер и не является публичной офертой
Кривенцова Людмила
Агент по недвижимости
Предложите свою цену
5 150 000 ₽
84 426 ₽/м²








































