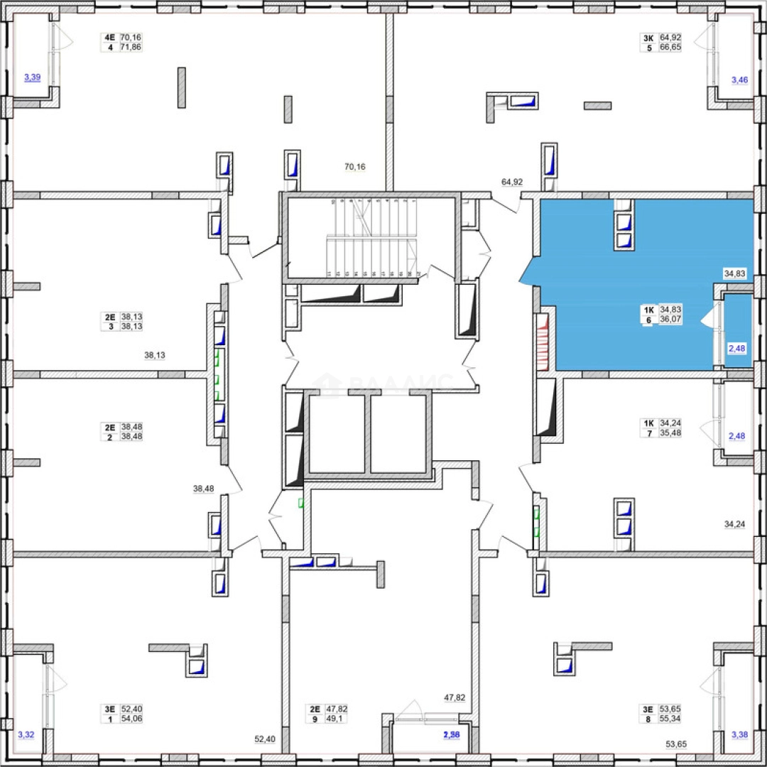
Продается 1-комн. квартира, 36.07 м²
Россия, Кемерово, улица Дружбы, 9
36.07 м²
Общая площадь
8 из 16
Этаж
Описание
Широкоформатные окна, высокоскоростные лифты, просторные входные группы и разнообразие планирвок не оставят равнодушными ни одного покупателя.
Кроме того, в ЖК 7 ВЫСОТ предусмотрены спортивные и игровые площадки, а также зеленые зоны и собственный парк.
*Компания ДЕРЖАВА НЕДВИЖИМОСТЬ дает покупателям особые привилегии при бронировании и покупке, уточните информацию у специалиста:
1. Полная база всех квартир от надежных застройщиков Кемерово
2. Сопровождение покупки на всех этапах
3. Консультацию по продаже вашей квартиры и оценку её стоимости
4. Актуальная информация по всем спецпредложениям и акциям
5. Одобрение ипотеки по сниженным процентным ставкам
Если не хотите полагаться на удачу - звоните нам! И мы поможем не только найти лучшие варианты квартир по Вашим пожеланиям, но и договоримся с застройщиком и банками о лучших для Вас условиях приобретения.
О квартире
Общая площадь
36.07 м²
Этаж
8
Окна выходят
На улицу
О доме
Год постройки
2026
Этажность
16
Количество подъездов
1
Материал постройки
Кирпично-монолитный
Материал перекрытий
Ж/б плиты
Отопление
Центральное
Парковка
Наземная
Расположение
Россия, Кемерово, улица Дружбы, 9
Ипотечный калькулятор
Заполните 1 анкету — получите предложения от десятков банков на специальных условиях
Программа ипотеки
Стоимость жилья, ₽
Первый взнос, ₽
Срок кредита
от 5.75%
Ставка
от 32 654 ₽
Платеж в месяц
Расчёт носит информационный характер и не является публичной офертой
Консультант по новостройкам
5 190 473 ₽
143 900 ₽/м²






























