Продается 1-комн. квартира, 32.6 м²
Россия, Ленинградская область, Гатчинский муниципальный округ, Коммунар, Железнодорожная улица, 41к1
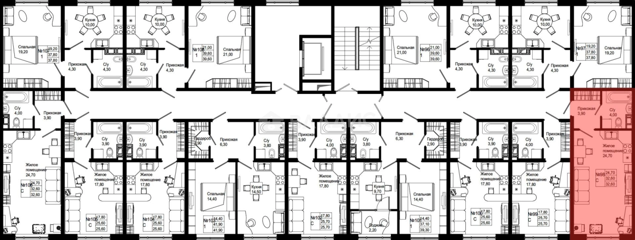
32.6 м²
Общая площадь
17.22 м²
Жилая площадь
4 из 8
Этаж
Описание
В комплексе предложено множество планировочных решений: в наличии квартиры, как классического типа, так и европланировки. Квартиры сдаются без отделки и высотой потолков 2,8 метра.
Для автовладельцев на территории комплекса предусмотрено 130 парковочных мест. Во дворах установлены разновозрастные игровые комплексы, беседка, зона для отдыха взрослых и искусственный пруд!
Жилой комплекс расположен в Гатчинском районе. В километре от новостройки находится административный центр Коммунара. Рядом протекает две реки — Ижора и Славянка.
О квартире
Общая площадь
32.6 м²
Жилая площадь
17.22 м²
Этаж
4
Окна выходят
На улицу
О доме
Год постройки
2024
Этажность
8
Материал постройки
Монолитный
Материал перекрытий
Монолитные
Отопление
Своя котельная
Расположение
Россия, Ленинградская область, Гатчинский муниципальный округ, Коммунар, Железнодорожная улица, 41к1
Ипотечный калькулятор
Заполните 1 анкету — получите предложения от десятков банков на специальных условиях
Программа ипотеки
Стоимость жилья, ₽
Первый взнос, ₽
Срок кредита
от 5.75%
Ставка
от 23 791 ₽
Платеж в месяц
Расчёт носит информационный характер и не является публичной офертой
Похожие объекты






1-комн. квартира, 29,8 м², 1/8 эт.






1-комн. квартира, 32,6 м², 6/8 эт.






1-комн. квартира, 32,3 м², 7/8 эт.






1-комн. квартира, 32,3 м², 8/8 эт.
Консультант по новостройкам
3 781 600 ₽
116 000 ₽/м²












