Продается 2-комн. квартира, 34.99 м²
Россия, Ленинградская область, Гатчинский муниципальный округ, Коммунар, ЖК Ново-Антропшино
Шушары
30 мин.
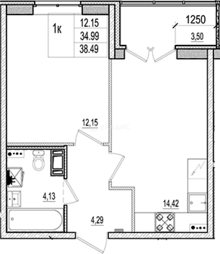
34.99 м²
Общая площадь
12.15 м²
Жилая площадь
14.42 м²
Площадь кухни
7 из 8
Этаж
Описание
В ЖК предложено множество авторских планировочных решений: в наличии квартиры, как классического типа, так и европланировки. Они сдаются с подчистовой и чистовой отделкой, остекленными лоджиями и балконами. Так же есть возможность дозаказа отделки. Часть квартир спроектированы с индивидуальным входом.
На территории комплекса спроектированы охраняемые озелененные дворы, пешеходные и прогулочные зоны, детские и спортивные площадки. ЖК имеет собственные газовые котельные, что обеспечивает бесперебойную подачу горячей воды. В состав объекта входит детский сад на 150 мест. Для автовладельцев предусмотрено 92 наземных парковочных места у каждого дома.
Жилой комплекс расположен в Гатчинском районе в живописной северной части города Коммунар, окруженный лесными массивами и рекой, а также рядом с дворцово-парковыми ансамблями Павловска и Пушкина. В пешей доступности работают магазины, детские сады и почтовое отделение. В районе работают школы, банки, медицинские учреждения и спортивные центры. Выезд на КАД расположен в 25 минутах транспортом, в 40 минутах транспортом — метро «Московская». До метро «Купчино» можно добраться за 23 минуты на электричке, а до метро «Пушкинская» — за 42 минуты. До ж/д станции «Антропшино» — 200 метров.
Видео
О квартире
Общая площадь
34.99 м²
Жилая площадь
12.15 м²
Площадь кухни
14.42 м²
Площадь комнат
12.15 м²
Высота потолков
2.75 м
Этаж
7
Окна выходят
На улицу
О доме
Год постройки
2025
Этажность
8
Материал постройки
Кирпично-монолитный
Материал перекрытий
Монолитные
Отопление
Центральное
Парковка
Наземная
Расположение
Россия, Ленинградская область, Гатчинский муниципальный округ, Коммунар, ЖК Ново-Антропшино
Шушары
30 мин.
Ипотечный калькулятор
Заполните 1 анкету — получите предложения от десятков банков на специальных условиях
Программа ипотеки
Стоимость жилья, ₽
Первый взнос, ₽
Срок кредита
от 5.75%
Ставка
от 40 847 ₽
Платеж в месяц
Расчёт носит информационный характер и не является публичной офертой
Похожие объекты






2-комн. квартира, 31,7 м², 5/8 эт.
Шушары
30 мин.










2-комн. квартира, 35,0 м², 7/8 эт.
Шушары
30 мин.










2-комн. квартира, 32,9 м², 7/8 эт.
Шушары
30 мин.










1-комн. квартира, 35,1 м², 7/8 эт.
Шушары
30 мин.
Консультант по новостройкам
6 492 780 ₽
185 562 ₽/м²









