Продается 2-комн. квартира, 52.8 м²
Россия, Ленинградская область, Гатчинский муниципальный округ, Коммунар, ЖК Перспектива
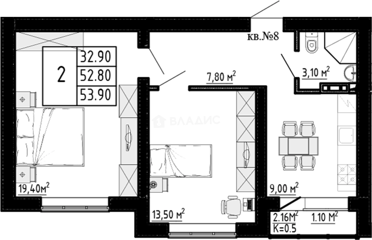
52.8 м²
Общая площадь
32.9 м²
Жилая площадь
9 м²
Площадь кухни
3 из 3
Этаж
Описание
В жилом комплексе представлено множество планировок классического типа — от студий до 3 комнатных квартир. Сдаются они с подчистовой отделкой, стандартными окнами и высотой потолков 2.8 метров. Имеется возможность дозаказать чистовую отделку.
Территория закрыта и благоустроена. Во внутреннем дворе проекта обустроены детские игровые и спортивные площадки, пешеходные дорожки. Для владельцев автомобилей предусмотрена стоянка.
Жилой комплекс расположен в Гатчинском районе в г Коммунар. В пешей доступности расположены медицинские учреждения, образовательные учреждения, кафе и рестораны, торговые точки, фитнес-центр, специализированные магазины. В 3 километрах от комплекса находится ж/д станция «Антропшино», от которой можно добраться до метро «Купчино» за 25 минут на электричке. До метро «Шушары» 45 минут транспортом.
О квартире
Общая площадь
52.8 м²
Жилая площадь
32.9 м²
Площадь кухни
9 м²
Площадь комнат
19.4+13.5 м²
Высота потолков
2.8 м
Этаж
3
Окна выходят
На улицу
О доме
Год постройки
2024
Этажность
3
Материал постройки
Газобетонный блок
Отопление
Центральное
Парковка
Наземная
Расположение
Россия, Ленинградская область, Гатчинский муниципальный округ, Коммунар, ЖК Перспектива
Ипотечный калькулятор
Заполните 1 анкету — получите предложения от десятков банков на специальных условиях
Программа ипотеки
Стоимость жилья, ₽
Первый взнос, ₽
Срок кредита
от 5.75%
Ставка
от 47 473 ₽
Платеж в месяц
Расчёт носит информационный характер и не является публичной офертой
Похожие объекты







2-комн. квартира, 54,6 м², 1/3 эт.






2-комн. квартира, 52,9 м², 2/3 эт.







2-комн. квартира, 54,3 м², 3/3 эт.







2-комн. квартира, 53 м², 3/3 эт.
Консультант по новостройкам
7 546 000 ₽
142 917 ₽/м²








