Купить дом у метро ВДНХ на улице Зелёная Площадь в Микрорайоне Болшево в Королёве
Россия, Московская область, Королёв, микрорайон Болшево, улица Зелёная Площадь
ВДНХ
24 мин.
158 м²
Площадь дома
4 сот
Площадь участка
Монолитный
Материал постройки
2
Этажей
Описание
Мечтаете о собственном доме не выезжая из города? С нами мечты сбываются!
Предлагаем Вам дом в одной из самых лучших локаций города Королев, в окружении зелени и приватности, в шаговой доступности от ж/д станции Валентиновка.
Дом в Королёве расположен на улице Зеленая Площадь, подходит для круглогодичного проживания.
Общая площадь дома: 158 кв. метров.
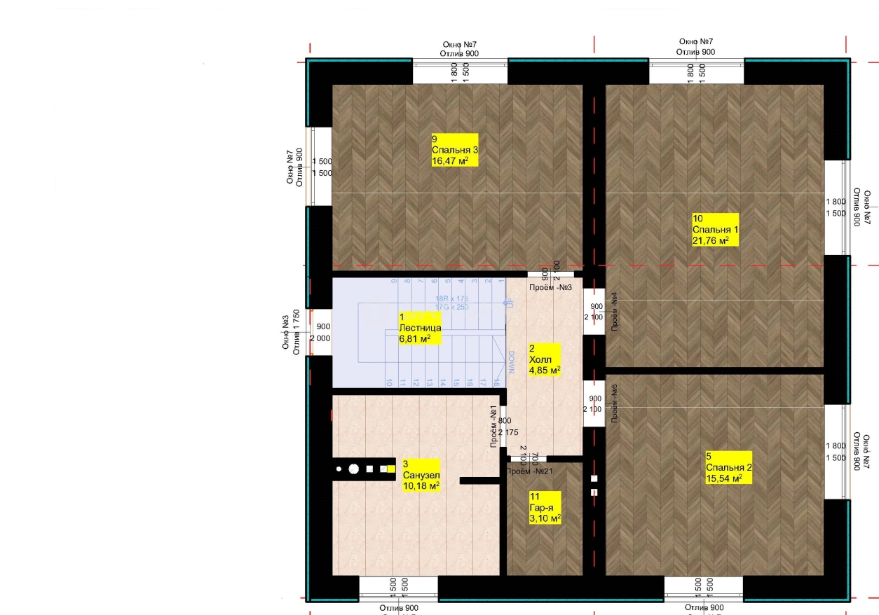
1 этаж: тамбур, холл, кабинет, гостиная, кухня-столовая, санузел, бойлерная.
2 этаж: холл, 3 комнаты, гардеробная, просторный санузел.
Фундамент : плита +16 свай в грунте
Стены: газобетон Бонолит 600×400×250,D-500,B3,5
Крыша: металлочерепица ,толщина металла 0,5 утеплённая минватой
Плиты перекрытия: ПБ 51 и ПБ 45
Окна: ПВХ с двойным стеклопакетом, фурнитура Roto NX
Лестница монолит в подарок!!!!
Коммуникации заведены в дом: электричество 25 кВт, центральные водоснабжение и канализация. Под реального покупателя подключим магистральный газ (проходит по границе).
Площадь земельного участка — 4 сотки. Участок ровный и сухой.
Вся инфраструктура в шаговой доступности: сетевые магазины, детские сады, школы, аптеки, пункты выдачи и т.д.
Удобная транспортная доступность: пешком 3 минуты до ж/д станции Валентиновка, электричка до Ярославского вокзала, до станции метро Комсомольская - 45 минут без пробок.
До станции метро ВДНХ наземным транспортом 24 минуты, Щелково и МЦК Ростокино - 21 минута, Ботанический Сад и Свиблово - 27 минут, Медведково и Бабушкинская - 22 минуты.
Этот дом идеально подойдёт тем, кто ценит комфорт и уют.
Мы гарантируем безопасную сделку и юридическую поддержку нашим Клиентам. Поможем одобрить ипотеку с сниженной ставкой.
АКЦИЯ: «Дарим неделю в Турции»!
Купи недвижимость - отдохни в Турции! При покупке любой недвижимости с ТСН вы получаете ваучер на экскурсионный тур в Турцию на двоих в ПОДАРОК!
О доме
Год постройки
2025
Этажей в доме
2
Общая площадь
158 м²
Жилая площадь
91.8 м²
Площадь кухни
14.7 м²
Площадь комнат
23+15+15,5+16,5+ 21,8 м²
Материал постройки
Монолитный
Материал перекрытий
Ж/б плиты
Материал кровли
Металлочерепица
Высота потолков
3 м
Об участке
Площадь участка
4 сот.
Статус участка
Индивидуальное жилищное строительство
Электричество
Есть
Газ
Есть
Водоснабжение
Есть
Канализация
Есть
Без благоустройства участка
Есть
Подъезд к участку
Щебенка
Расположение
Россия, Московская область, Королёв, микрорайон Болшево, улица Зелёная Площадь
Щелковская
21 мин.
Медведково
23 мин.
Бульвар Рокоссовского
24 мин.
Бабушкинская
24 мин.
Первомайская
24 мин.
Бульвар Рокоссовского
24 мин.
Белокаменная
24 мин.
Локомотив
25 мин.
ВДНХ
24 мин.
Ипотечный калькулятор
Заполните 1 анкету — получите предложения от десятков банков на специальных условиях
Программа ипотеки
Стоимость жилья, ₽
Первый взнос, ₽
Срок кредита
от 5.75%
Ставка
от 134 000 ₽
Платеж в месяц
Расчёт носит информационный характер и не является публичной офертой
Предложите свою цену
21 300 000 ₽
134 810 ₽/м²





























































