Продается 2-комн. квартира, 57.9 м²
Россия, Московская область, Королёв, проспект Космонавтов, 32
Щелковская
18 мин.
57.9 м²
Общая площадь
31.6 м²
Жилая площадь
10.3 м²
Площадь кухни
11 из 17
Этаж
Описание
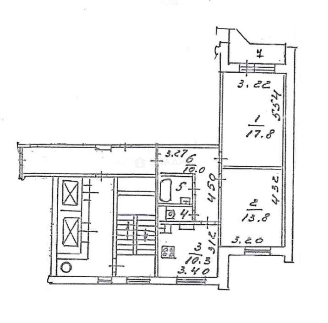
Вашему вниманию предлагается шикарная 2-комнатная квартира в городе Королев по адресу: проспект Космонавтов, дом 32, расположенная на 11 этаже 16-этажного панельного дома. Общая площадь квартиры 57,9 метра (без учета 4х метровой застекленной лоджии), изолированные комнаты: гостиная 17,8 (с выходом на лоджию), спальня 13,8 и просторная кухня 10,3 метра, большой коридор, раздельный санузел в плитке.
Дом утоплен от проспекта во двор, окна квартиры в зелень. Чистый ухоженный подъезд, установлен домофон.
Вся необходимая инфраструктура в шаговой доступности: гимназия №9, школа №20, №10, № 2 имени В. Н. Михайлова, Гимназия № 18 им. И.Я. Илюшина, Детский Сад №34 Любава, №28, №38 Радуга, №10 Колокольчик, №27 Жемчужинка, Д/с «Sun School» с развитием английского языка, Техникум технологий и дизайна Технологического университета им. А. А. Леонова, Арт-студия 169 (Школа искусств, курсы и мастер-классы), стадион и бассейн Металлист, Костинский пруд, Парк Ильича, Краеведческий музей, Усадьба Крафта, кинотеатр в парке Костино, сквер им. А.С. Макаренко, аптеки, детская и взрослая поликлиники, городская больница, банки, сетевые магазины, гипермаркет Глобус.
Пешком до ж/д станции Болшево 23 минуты, экспресс до Ярославского вокзала, до станции метро Комсомольская - 28 минут с комфортом и без пробок. До станции метро ВДНХ на машине 26 минут, до Медведково 21 минута, до Свиблово 27 минут, до МЦК Ростокино 24 минуты.
Один взрослый собственник. Полная стоимость в договоре. В квартире никто не прописан. Без долгов и обременений.
Безопасность сделки обеспечена стандартами работы Гильдии риэлторов Московской области.
О квартире
Общая площадь
57.9 м²
Жилая площадь
31.6 м²
Площадь кухни
10.3 м²
Площадь комнат
17,8+13,8 м²
Подъезд
2
Этаж
11
Расположение квартиры
не угловая
Окна выходят
На улицу, Во двор
Раздельных санузлов
1
Мебель
Да
О доме
Год постройки
1980
Этажность
17
Количество подъездов
2
Материал постройки
Панельный
Материал перекрытий
Монолитные
Отопление
Центральное
Пассажирских лифтов
1
Грузовых лифтов
1
Расположение
Россия, Московская область, Королёв, проспект Космонавтов, 32
Щелковская
18 мин.
Медведково
20 мин.
Бульвар Рокоссовского
20 мин.
Бабушкинская
21 мин.
ВДНХ
21 мин.
Первомайская
21 мин.
Белокаменная
21 мин.
Локомотив
22 мин.
Ипотечный калькулятор
Заполните 1 анкету — получите предложения от десятков банков на специальных условиях
Программа ипотеки
Стоимость жилья, ₽
Первый взнос, ₽
Срок кредита
от 5.75%
Ставка
от 66 057 ₽
Платеж в месяц
Расчёт носит информационный характер и не является публичной офертой
Похожие объекты





















2-комн. квартира, 60 м², 3/13 эт.
Медведково
19 мин.





















3-комн. квартира, 59,7 м², 1/9 эт.
Медведково
18 мин.












2-комн. квартира, 52,5 м², 9/17 эт.
Щелковская
21 мин.


























2-комн. квартира, 52 м², 4/4 эт.
ВДНХ
24 мин.
Предложите свою цену
10 500 000 ₽
181 347 ₽/м²














































































