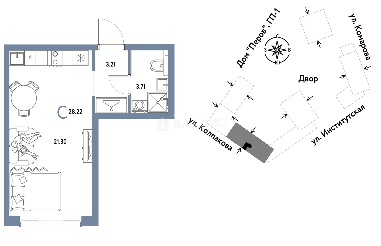
Студия · 28.2 pм² · 19/25 эт.
Россия, Московская область, Мытищи
Медведково
9 мин.
28.22 м²
Общая площадь
16.07 м²
Жилая площадь
5.23 м²
Площадь кухни
19 из 25
Этаж
Описание
В проекте предложен широкий выбор планировочных решений от студий до 5-комнатных квартир европейского формата. К покупке доступны квартиры с мастер-спальнями, отдельными гардеробными, лоджиями, французскими балконами и террасами. Высота потолков в квартирах достигает 3 метров. Квартиры сдаются с улучшенной черновой отделкой. Дополнительно можно выбрать дизайнерскую отделку из 5 стилей, а для ванных комнат доступно 4 цветовых решения. Квартиры оснащены системой «умный дом» с возможностью установки различных интеллектуальных устройств.
На территории комплекса расположены спортивные площадки, детские игровые зоны и собственный сад. Для жителей предусмотрены велосипедные дорожки, зоны для отдыха с амфитеатром, гамаком и шезлонгами. Также на территории есть вертикальный сад, общественный огород и различные тематические мини-парки, такие, как парк цветущих и луговых трав, парк камней и хвойные зоны. Первые этажи зданий занимает торговая галерея с кофейнями, магазинами, пунктами выдачи заказов, салонами красоты и досуговыми центрами. Для владельцев автомобилей предусмотрен подземный паркинг на 590 мест и гостевые парковки. На территории подземного паркинга для жителей комплекса предусмотрены индивидуальные кладовые.
Жилой комплекс находится в одном из самых активно развивающихся районов Подмосковья — Мытищах. Район богат природными зонами, такими как парки Мира, Яуза, Перловский, Тайнинский и Мытищинский лесопарк, что делает его отличным местом для прогулок и отдыха. В непосредственной близости находятся магазины, 3 школы, 5 детских садов и несколько поликлиник. Транспортная доступность обеспечивается близостью к МКАД, 15 минут пешком займет дорога до ж/д станции «Мытищи», метро «Медведково» в 20 минутах транспортом.
О квартире
Общая площадь
28.22 м²
Жилая площадь
16.07 м²
Площадь кухни
5.23 м²
Подъезд
4
Этаж
19
Окна выходят
На улицу
О доме
Год постройки
2027
Этажность
25
Количество подъездов
1
Материал постройки
Монолитный
Материал перекрытий
Монолитные
Отопление
Центральное
Парковка
Подземная
Расположение
Россия, Московская область, Мытищи
Медведково
9 мин.
Бабушкинская
11 мин.
Свиблово
14 мин.
Бибирево
14 мин.
Алтуфьево
15 мин.
Ростокино
15 мин.
Белокаменная
16 мин.
Ботанический сад
16 мин.
Ипотечный калькулятор
Заполните 1 анкету — получите предложения от десятков банков на специальных условиях
Программа ипотеки
Стоимость жилья, ₽
Первый взнос, ₽
Срок кредита
от 5.75%
Ставка
от 81 868 ₽
Платеж в месяц
Расчёт носит информационный характер и не является публичной офертой
Консультант по новостройкам
13 013 333 ₽
461 139 ₽/м²







































