Сдается Производственное Помещение, 198.5 м²
Россия, Московская область, Королёв, улица Богомолова, 3А
ВДНХ
17 мин.
198.5 м²
Общая площадь
Отдельный
Вход в помещение
Свободный
Доступ в помещение
1 из 3
Этаж
Описание
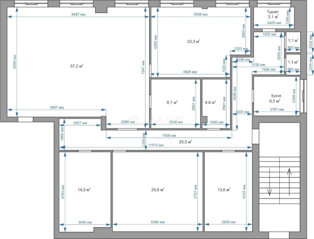
Вашему вниманию предлагается просторное и светлое коммерческое помещение в центре города Королёв, расположенное на высоком первом этаже отдельно стоящего современного многофункционального центра по адресу улица Богомолова, дом 3А.
Это идеальный вариант для тех, кто ищет пространство с высокими потолками для реализации своих бизнес-идей.
Благодаря своей универсальности, помещение подойдёт для различных видов деятельности:
- производство любого направления
- склад
- швейный цех
- шоурум
- рекламное агентство
- упаковочный/маркировочный цех
- детский образовательный центр
- языковая школа
- хореографическая либо студия йоги/пилатеса
- нотариальная контора, юридическая консультация
Общая площадь составляет 198,5 кв. м. В помещении всего две несущие колонны, у Вас есть уникальная возможность сделать любую планировку под Ваши задачи, а также организовать дополнительный вход в кабинетную зону.
Здесь все продумано до мелочей:
Центральный вход с круглосуточной охраной и тепловой пушкой
Отдельный выход из здания для погрузки и разгрузки
Парковка для сотрудников и посетителей
Все помещения оборудованы видеонаблюдением и кондиционерами
Полная звукоизоляция от соседей
Все окна и двери бронированные
Установлен видеодомофон
Панорамное остекление – все помещения максимально светлые, на все окна установлены жалюзи
Серверная и щитовая в отдельных изолированных помещениях
Оборудованные кухня и санузел
Современный программируемый водонагреватель с таймером и регулировкой по времени
Есть возможность регулировки отопления внутри помещения
Удобное расположение на первом этаже облегчит комфортный доступ как для посетителей, так и для сотрудников.
Лучшая локация города как по инфраструктуре, так и по трафику.
Отличная транспортная доступность - 15 минут пешком до ЖД станции "Подлипки - Дачные", 5 минут (2 км.) на автомобиле - прямой выезд на Ярославское шоссе. Рядом остановки автобуса до Москвы (метро ВДНХ) и по городу.
Об объекте
Общая площадь
198.5 м²
Этаж
1
Электрическая мощность
40 кВт
Совмещенных санузлов
1
Ремонт
Косметический
Вход в помещение
Отдельный, Общий
Доступ в помещение
Свободный
Удобства
Интернет
Кондиционер
Вентиляция
Кухня
Охрана
Пожарная сигнализация
Условия аренды
Коммунальные платежи
70 000 ₽, отдельно
Минимальный срок аренды
11 мес.
Счётчики
Включены
О здании
Тип коммерции
Бизнес-центр
Год постройки
2011
Материал постройки
Монолитный
Отопление
Центральное
Этажей в доме
3
Парковка
Наземная
Расположение
Россия, Московская область, Королёв, улица Богомолова, 3А
Медведково
17 мин.
Бабушкинская
21 мин.
ВДНХ
17 мин.
Щелковская
24 мин.
Ростокино
19 мин.
22 800 ₽/м² в год
Комиссия
Без комиссии
Залог
377 150 ₽
Предоплата
377 150 ₽
Налог
УСН
377 150 ₽/мес.









































