Продается Студия, 23.6 м²
Россия, Краснодар, улица имени Снесарева, 10
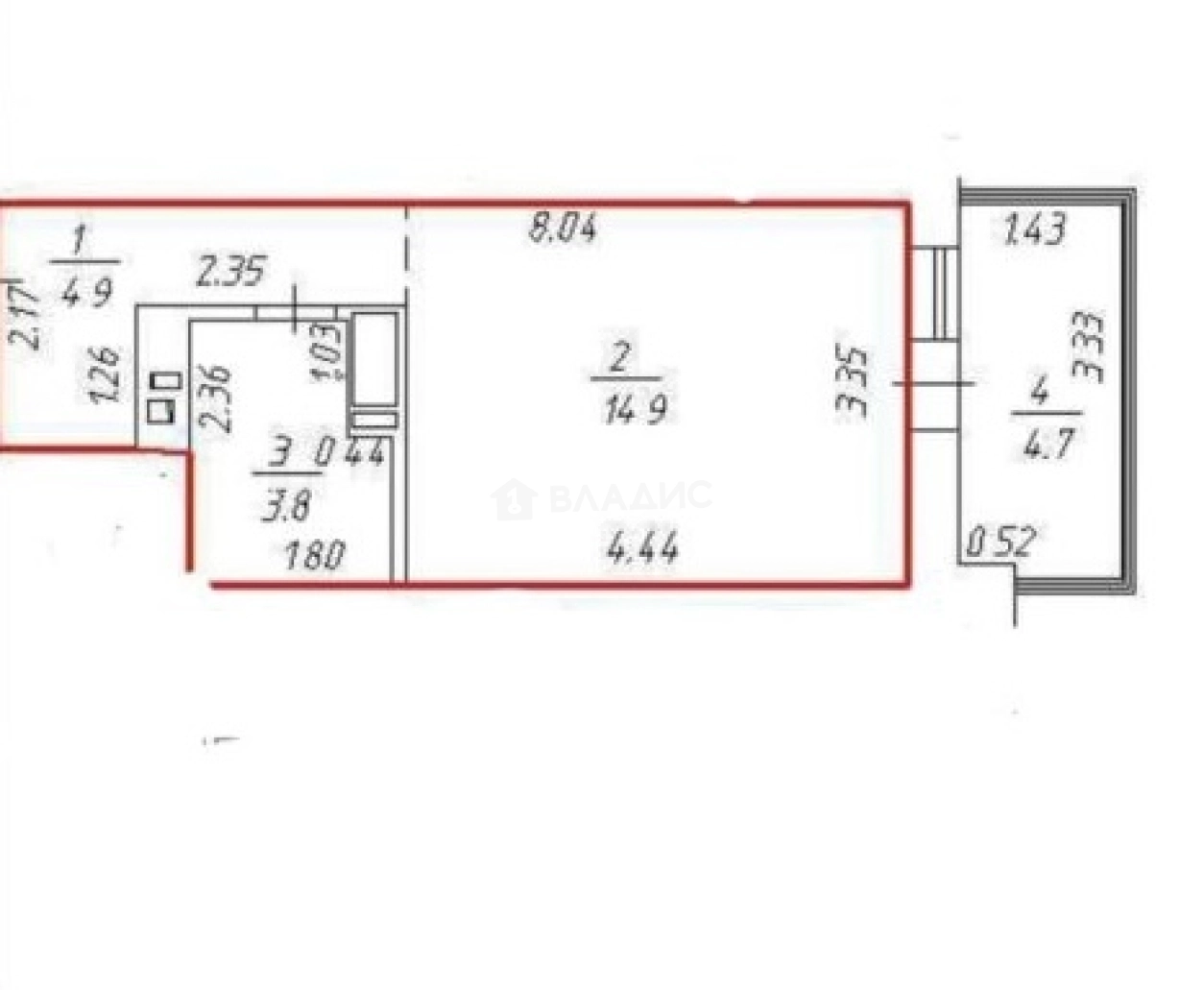
23.6 м²
Общая площадь
10 м²
Жилая площадь
4.9 м²
Площадь кухни
17 из 24
Этаж
Описание
Студия имеет удобную планировку и готова к финишному ремонту — выполнена стяжка и штукатурка, что позволит вам воплотить в жизнь любые дизайнерские идеи. Окна выходят на улицу, а угловое расположение квартиры обеспечивает хорошую освещённость.
Комплекс окружён развитой инфраструктурой: магазины, школы, детские сады и парки находятся в шаговой доступности. Удобная транспортная развязка позволит вам быстро добраться до любой точки города. Да
Эта студия станет отличным выбором для молодых специалистов, студентов или инвесторов, ищущих ликвидное жильё. Не упустите шанс стать обладателем уютной квартиры в одном из лучших районов Краснодара!
Позвоните нам прямо сейчас, чтобы узнать больше и записаться на просмотр.
Мы гарантируем безопасную сделку и юридическую поддержку нашим Клиентам. Поможем одобрить ипотеку с сниженной ставкой.
О квартире
Общая площадь
23.6 м²
Жилая площадь
10 м²
Площадь кухни
4.9 м²
Подъезд
1
Этаж
17
Расположение квартиры
не угловая
Окна выходят
На улицу
Совмещенных санузлов
1
Ремонт
Стяжка-штукатурка
О доме
Этажность
24
Количество подъездов
1
Материал постройки
Кирпично-монолитный
Материал перекрытий
Монолитные
Отопление
Центральное
Пассажирских лифтов
2
Грузовых лифтов
1
Расположение
Россия, Краснодар, улица имени Снесарева, 10
Ипотечный калькулятор
Заполните 1 анкету — получите предложения от десятков банков на специальных условиях
Программа ипотеки
Стоимость жилья, ₽
Первый взнос, ₽
Срок кредита
от 5.75%
Ставка
от 20 132 ₽
Платеж в месяц
Расчёт носит информационный характер и не является публичной офертой
Предложите свою цену
3 200 000 ₽
135 593 ₽/м²





