Продается 1-комн. квартира, 32.8 м²
Россия, Краснодар, микрорайон Юбилейный, улица 70-летия Октября, 4
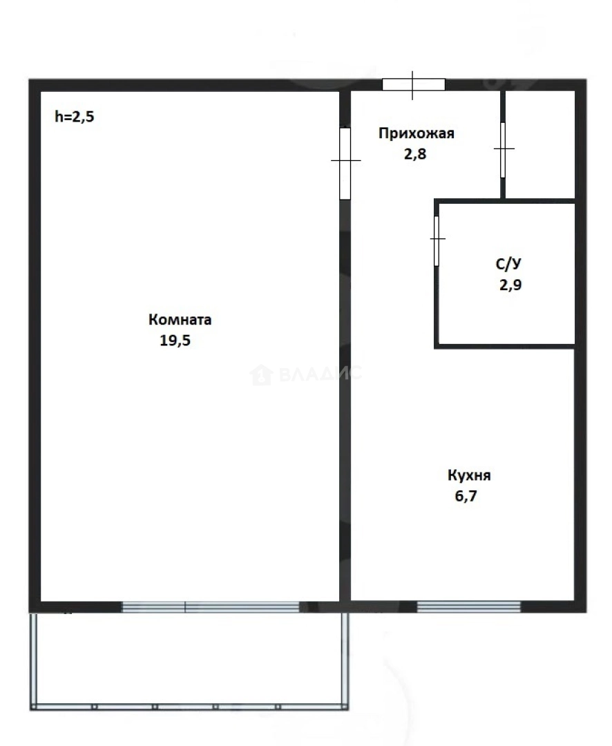
32.8 м²
Общая площадь
19.5 м²
Жилая площадь
6.7 м²
Площадь кухни
10 из 10
Этаж
Описание
Описание объекта:
Предлагаем вашему вниманию однокомнатную квартиру в микрорайоне Юбилейный по адресу улица 70-летия Октября, 4. Квартира расположена на 10 этаже десятиэтажного блочного дома 1998 года постройки. Общая площадь — 32,8 кв. м, высота потолков — 2,6 м.
Ремонт и планировка:
Квартира с евроремонтом, что позволяет вам сразу заселиться и наслаждаться комфортом. Жилая площадь составляет 19,5 кв. м, площадь кухни — 6,7 кв. м. Есть балкон, комнаты изолированы.
Расположение:
Микрорайон Юбилейный славится своей развитой инфраструктурой и хорошей транспортной доступностью. Рядом находятся магазины, школы, детские сады и другие объекты социальной инфраструктуры. Удобная транспортная развязка позволяет быстро добраться до любой точки города.
Преимущества:
- Выгодная цена.
- Удобное расположение.
- Качественный ремонт.
- Развитая инфраструктура.
Не упустите возможность стать владельцем этой замечательной квартиры! 🔑
Позвоните нам прямо сейчас, чтобы узнать больше и записаться на просмотр.
Мы гарантируем безопасную сделку и юридическую поддержку нашим Клиентам. Поможем одобрить ипотеку с сниженной ставкой.
О квартире
Общая площадь
32.8 м²
Жилая площадь
19.5 м²
Площадь кухни
6.7 м²
Площадь комнат
19,5 м²
Высота потолков
2.6 м
Этаж
10
Расположение квартиры
не угловая
Окна выходят
На улицу
Совмещенных санузлов
1
Ремонт
Евро
О доме
Год постройки
1998
Этажность
10
Количество подъездов
1
Материал постройки
Блочный
Материал перекрытий
Ж/б плиты
Отопление
Центральное
Парковка
Наземная
Расположение
Россия, Краснодар, микрорайон Юбилейный, улица 70-летия Октября, 4
Ипотечный калькулятор
Заполните 1 анкету — получите предложения от десятков банков на специальных условиях
Программа ипотеки
Стоимость жилья, ₽
Первый взнос, ₽
Срок кредита
от 5.75%
Ставка
от 31 456 ₽
Платеж в месяц
Расчёт носит информационный характер и не является публичной офертой
Предложите свою цену
5 000 000 ₽
152 439 ₽/м²











