Купить дом на улице Чкалова в Краснодарском крае
Россия, Краснодарский край, городской округ Новороссийск, посёлок Верхнебаканский, улица Чкалова, 2
58 м²
Площадь дома
11 сот
Площадь участка
Кирпично-монолитный
Материал постройки
1
Этажей
Описание
⋆ Этажность – 1.
● Общая площадь – 58 кв.м.
▸ Коммуникации – центральные
⇧ Подъезд к участку – асфальтированная дорога.
➡ Описание:
Это домовладение готово для проживания. Несколько изолированных жилых комнат, надёжные бетонные стены. Планировка помещений, создаёт комфортные условия. В доме тепло, установлен газовый котёл, позволяющий регулировать температуру. Большая прихожая. Несколько хозяйственных построек, летняя кухня, гараж. Центральные коммуникации, септик. На большой территории участка, можно сделать площадку даже для спортивных игр. Звоните, покупайте!
⇒ Местоположение:
В шаговой доступности сетевые магазины, детский сад 4, школа 14, библиотека, офис Сбер остановки общественного транспорта. Удобный выезд в сторону Краснодара, Крым, Сочи, Новороссийск.
Для вас:
✦ Онлайн сделка.
✦ Юридическая проверка документов.
✦ Поможем с одобрением ипотеки на выгодных условиях от ведущих банков.
✦ Сделка - застрахована.
Проводим сделки:
✧ С использованием материнского капитала
✧ Военного сертификата.
✧ С применением аккредитива и банковской ячейки.
✧ С вами работает персональный менеджер.
☎ ЗВОНИТЕ - показ в удобное для Вас время!
О доме
Год постройки
1969
Этажей в доме
1
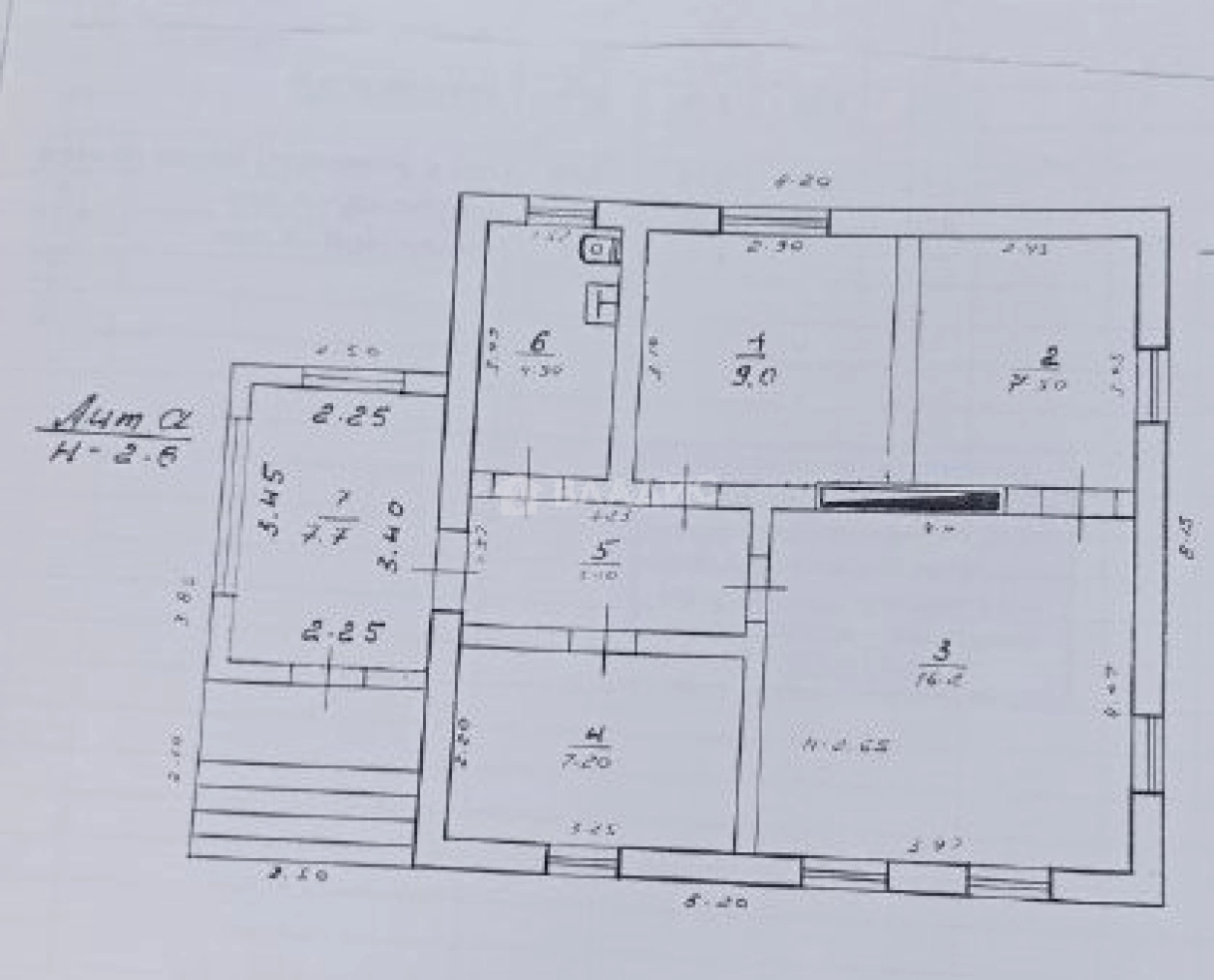
Общая площадь
58 м²
Жилая площадь
43.9 м²
Площадь кухни
4 м²
Площадь комнат
4+7,2+7,5+9+ 16,2 м²
Материал постройки
Кирпично-монолитный
Материал перекрытий
Деревянные
Материал кровли
Шифер
Раздельных санузлов
2
Об участке
Площадь участка
11 сот.
Статус участка
Индивидуальное жилищное строительство
Электричество
Есть
Газ
Есть
Водоснабжение
Есть
Гараж
Есть
Подъезд к участку
Асфальт
Расположение
Россия, Краснодарский край, городской округ Новороссийск, посёлок Верхнебаканский, улица Чкалова, 2
Ипотечный калькулятор
Заполните 1 анкету — получите предложения от десятков банков на специальных условиях
Программа ипотеки
Стоимость жилья, ₽
Первый взнос, ₽
Срок кредита
от 5.75%
Ставка
от 47 183 ₽
Платеж в месяц
Расчёт носит информационный характер и не является публичной офертой
Предложите свою цену
7 500 000 ₽
129 310 ₽/м²






















