Купить двухкомнатную квартиру у метро Потапово в Москве
221 объявление











2-комн. квартира·52 м²·1/3 эт.
Потапово
10 мин.
НЕ ПРОПУСТИТЕ! ПРОСТОРНАЯ ДВУШКА В ЖК БУТОВСКИЕ АЛЛЕИ! Продается с качественным свежим ремонтом, сделана шумоизоляция. Квартира обставлена мебелью и техникой (Холодильник, телевизор, стиральная машина, духовка) До метро Потапово менее 10 минут пешком. Отличный район, в ЖК малоэтажная застройка. Школа и детский сад в пару минутах. Чистые документ





2-комн. квартира·43,4 м²·3/17 эт.
Потапово
7 мин.
В одном из самых крупных жилых кварталов в НАО продаётся отличная квартира евро-формата! ОПИСАНИЕ: • Общая площадь 43,4 м² • Жилая площадь 23,4 м² • Черновая отделка • Ключи получены, собственность оформлена *Все фотографии в объявлении представлены просто для примера того, как выглядит отделка ПЛАНИРОВКА: • Кухня-гостиная: 17,7 м² • Изолиро





















2-комн. квартира·40 м²·7/8 эт.
Потапово
19 мин.
Продаётся 2-комнатная квартира в одном из самых перспективных районов Москвы — Коммунарке! Просторная квартира общей площадью 40 кв. м на седьмом этаже восьмиэтажного монолитно-кирпичного дома, который будет построен уже в 2025 году. В квартире две изолированные комнаты площадью 11 и 15 кв. м, кухня — 10 кв. м. Один совмещённый санузел, есть лоджи












2-комн. квартира·36,1 м²·13/22 эт.
Потапово
22 мин.
В одном из самых крупных жилых кварталов в НАО продаётся отличная квартира евро-формата! Окна выходят на сквер. ОПИСАНИЕ: • Общая площадь 36,1 м² • Черновая отделка (без отделки) • Передача ключей в II кв. 2026г. ПЛАНИРОВКА: • Кухня-гостиная 13,4 м² • Изолированная спальня 12 м² • Просторный объединённый санузел 4,2 м² • Коридор - прихожая 4,











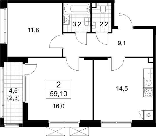
2-комн. квартира·65,6 м²·11/16 эт.
Потапово
16 мин.
Уникальное предложение в одном из самых перспективных районов Москвы — квартира в современном жилом комплексе на Скандинавском бульваре в Коммунарке. Эта просторная двухкомнатная квартира общей площадью 65,6 кв. м расположена на 11-м этаже 16-этажного монолитного дома, построенного в 2022 году. Благодаря удачной планировке с изолированными комната
















2-комн. квартира·64,2 м²·10/16 эт.
Потапово
18 мин.
Уникальное предложение, которое вы не можете упустить! В продаже замечательная квартира в развивающемся районе Коммунарка на Скандинавском бульваре. Это идеальный вариант для тех, кто ищет комфортное жилье с отличными условиями. Квартира распашонка. Окна на две стороны. На площадке 4 квартиры. Квартира располагается на 10 этаже 16-этажного монолитн














2-комн. квартира·41,9 м²·19/19 эт.
Потапово
20 мин.
Жилой комплекс «Бунинские кварталы» это комплексная застройка монолитными домами переменной этажности: от 9 до 19 этажей. Дома отличает выразительная, динамическая пластика фасадов со смещением элементов отделки, сочетание контрастных тонов и большое количество остекления. В дизайнерских входных группах предусмотрены зона ожидания, санузел, лапомой














2-комн. квартира·53,2 м²·19/19 эт.
Потапово
20 мин.
Жилой комплекс «Бунинские кварталы» это комплексная застройка монолитными домами переменной этажности: от 9 до 19 этажей. Дома отличает выразительная, динамическая пластика фасадов со смещением элементов отделки, сочетание контрастных тонов и большое количество остекления. В дизайнерских входных группах предусмотрены зона ожидания, санузел, лапомой














2-комн. квартира·41,9 м²·18/19 эт.
Потапово
20 мин.
Жилой комплекс «Бунинские кварталы» это комплексная застройка монолитными домами переменной этажности: от 9 до 19 этажей. Дома отличает выразительная, динамическая пластика фасадов со смещением элементов отделки, сочетание контрастных тонов и большое количество остекления. В дизайнерских входных группах предусмотрены зона ожидания, санузел, лапомой














2-комн. квартира·53,2 м²·18/19 эт.
Потапово
20 мин.
Жилой комплекс «Бунинские кварталы» это комплексная застройка монолитными домами переменной этажности: от 9 до 19 этажей. Дома отличает выразительная, динамическая пластика фасадов со смещением элементов отделки, сочетание контрастных тонов и большое количество остекления. В дизайнерских входных группах предусмотрены зона ожидания, санузел, лапомой














2-комн. квартира·41,9 м²·17/19 эт.
Потапово
20 мин.
Жилой комплекс «Бунинские кварталы» это комплексная застройка монолитными домами переменной этажности: от 9 до 19 этажей. Дома отличает выразительная, динамическая пластика фасадов со смещением элементов отделки, сочетание контрастных тонов и большое количество остекления. В дизайнерских входных группах предусмотрены зона ожидания, санузел, лапомой














2-комн. квартира·53,2 м²·17/19 эт.
Потапово
20 мин.
Жилой комплекс «Бунинские кварталы» это комплексная застройка монолитными домами переменной этажности: от 9 до 19 этажей. Дома отличает выразительная, динамическая пластика фасадов со смещением элементов отделки, сочетание контрастных тонов и большое количество остекления. В дизайнерских входных группах предусмотрены зона ожидания, санузел, лапомой














2-комн. квартира·41,9 м²·16/19 эт.
Потапово
20 мин.
Жилой комплекс «Бунинские кварталы» это комплексная застройка монолитными домами переменной этажности: от 9 до 19 этажей. Дома отличает выразительная, динамическая пластика фасадов со смещением элементов отделки, сочетание контрастных тонов и большое количество остекления. В дизайнерских входных группах предусмотрены зона ожидания, санузел, лапомой














2-комн. квартира·53,2 м²·16/19 эт.
Потапово
20 мин.
Жилой комплекс «Бунинские кварталы» это комплексная застройка монолитными домами переменной этажности: от 9 до 19 этажей. Дома отличает выразительная, динамическая пластика фасадов со смещением элементов отделки, сочетание контрастных тонов и большое количество остекления. В дизайнерских входных группах предусмотрены зона ожидания, санузел, лапомой














2-комн. квартира·41,9 м²·15/19 эт.
Потапово
20 мин.
Жилой комплекс «Бунинские кварталы» это комплексная застройка монолитными домами переменной этажности: от 9 до 19 этажей. Дома отличает выразительная, динамическая пластика фасадов со смещением элементов отделки, сочетание контрастных тонов и большое количество остекления. В дизайнерских входных группах предусмотрены зона ожидания, санузел, лапомой














2-комн. квартира·53,2 м²·13/19 эт.
Потапово
20 мин.
Жилой комплекс «Бунинские кварталы» это комплексная застройка монолитными домами переменной этажности: от 9 до 19 этажей. Дома отличает выразительная, динамическая пластика фасадов со смещением элементов отделки, сочетание контрастных тонов и большое количество остекления. В дизайнерских входных группах предусмотрены зона ожидания, санузел, лапомой














2-комн. квартира·41,5 м²·19/19 эт.
Потапово
20 мин.
Жилой комплекс «Бунинские кварталы» это комплексная застройка монолитными домами переменной этажности: от 9 до 19 этажей. Дома отличает выразительная, динамическая пластика фасадов со смещением элементов отделки, сочетание контрастных тонов и большое количество остекления. В дизайнерских входных группах предусмотрены зона ожидания, санузел, лапомой














2-комн. квартира·41,5 м²·18/19 эт.
Потапово
20 мин.
Жилой комплекс «Бунинские кварталы» это комплексная застройка монолитными домами переменной этажности: от 9 до 19 этажей. Дома отличает выразительная, динамическая пластика фасадов со смещением элементов отделки, сочетание контрастных тонов и большое количество остекления. В дизайнерских входных группах предусмотрены зона ожидания, санузел, лапомой














2-комн. квартира·41,5 м²·17/19 эт.
Потапово
20 мин.
Жилой комплекс «Бунинские кварталы» это комплексная застройка монолитными домами переменной этажности: от 9 до 19 этажей. Дома отличает выразительная, динамическая пластика фасадов со смещением элементов отделки, сочетание контрастных тонов и большое количество остекления. В дизайнерских входных группах предусмотрены зона ожидания, санузел, лапомой














2-комн. квартира·51,6 м²·17/19 эт.
Потапово
20 мин.
Жилой комплекс «Бунинские кварталы» это комплексная застройка монолитными домами переменной этажности: от 9 до 19 этажей. Дома отличает выразительная, динамическая пластика фасадов со смещением элементов отделки, сочетание контрастных тонов и большое количество остекления. В дизайнерских входных группах предусмотрены зона ожидания, санузел, лапомой














2-комн. квартира·51,6 м²·16/19 эт.
Потапово
20 мин.
Жилой комплекс «Бунинские кварталы» это комплексная застройка монолитными домами переменной этажности: от 9 до 19 этажей. Дома отличает выразительная, динамическая пластика фасадов со смещением элементов отделки, сочетание контрастных тонов и большое количество остекления. В дизайнерских входных группах предусмотрены зона ожидания, санузел, лапомой














2-комн. квартира·52,4 м²·10/19 эт.
Потапово
20 мин.
Жилой комплекс «Бунинские кварталы» это комплексная застройка монолитными домами переменной этажности: от 9 до 19 этажей. Дома отличает выразительная, динамическая пластика фасадов со смещением элементов отделки, сочетание контрастных тонов и большое количество остекления. В дизайнерских входных группах предусмотрены зона ожидания, санузел, лапомой














2-комн. квартира·53,7 м²·17/19 эт.
Потапово
20 мин.
Жилой комплекс «Бунинские кварталы» это комплексная застройка монолитными домами переменной этажности: от 9 до 19 этажей. Дома отличает выразительная, динамическая пластика фасадов со смещением элементов отделки, сочетание контрастных тонов и большое количество остекления. В дизайнерских входных группах предусмотрены зона ожидания, санузел, лапомой














2-комн. квартира·47,1 м²·17/19 эт.
Потапово
20 мин.
Жилой комплекс «Бунинские кварталы» это комплексная застройка монолитными домами переменной этажности: от 9 до 19 этажей. Дома отличает выразительная, динамическая пластика фасадов со смещением элементов отделки, сочетание контрастных тонов и большое количество остекления. В дизайнерских входных группах предусмотрены зона ожидания, санузел, лапомой














2-комн. квартира·47,1 м²·16/19 эт.
Потапово
20 мин.
Жилой комплекс «Бунинские кварталы» это комплексная застройка монолитными домами переменной этажности: от 9 до 19 этажей. Дома отличает выразительная, динамическая пластика фасадов со смещением элементов отделки, сочетание контрастных тонов и большое количество остекления. В дизайнерских входных группах предусмотрены зона ожидания, санузел, лапомой










2-комн. квартира·49,6 м²·6/12 эт.
Потапово
10 мин.
В основе проекта «Дзен-кварталы» лежит гармония простого и утонченного, природного и урбанистического — стиль Japandi, объединяющий скандинавскую функциональность и восточную созерцательность. «Дзен-кварталы» состоит из домов переменной этажности: от 6 до 18 этажей. Во всех входных группах выполнена дизайнерская отделка и установлены современные ли











2-комн. квартира·44,8 м²·11/12 эт.
Потапово
11 мин.
В основе проекта «Дзен-кварталы» лежит гармония простого и утонченного, природного и урбанистического — стиль Japandi, объединяющий скандинавскую функциональность и восточную созерцательность. «Дзен-кварталы» состоит из домов переменной этажности: от 6 до 18 этажей. Во всех входных группах выполнена дизайнерская отделка и установлены современные ли











2-комн. квартира·42,8 м²·10/12 эт.
Потапово
11 мин.
В основе проекта «Дзен-кварталы» лежит гармония простого и утонченного, природного и урбанистического — стиль Japandi, объединяющий скандинавскую функциональность и восточную созерцательность. «Дзен-кварталы» состоит из домов переменной этажности: от 6 до 18 этажей. Во всех входных группах выполнена дизайнерская отделка и установлены современные ли











2-комн. квартира·43 м²·8/12 эт.
Потапово
11 мин.
В основе проекта «Дзен-кварталы» лежит гармония простого и утонченного, природного и урбанистического — стиль Japandi, объединяющий скандинавскую функциональность и восточную созерцательность. «Дзен-кварталы» состоит из домов переменной этажности: от 6 до 18 этажей. Во всех входных группах выполнена дизайнерская отделка и установлены современные ли











2-комн. квартира·39,6 м²·5/12 эт.
Потапово
11 мин.
В основе проекта «Дзен-кварталы» лежит гармония простого и утонченного, природного и урбанистического — стиль Japandi, объединяющий скандинавскую функциональность и восточную созерцательность. «Дзен-кварталы» состоит из домов переменной этажности: от 6 до 18 этажей. Во всех входных группах выполнена дизайнерская отделка и установлены современные ли











2-комн. квартира·41,7 м²·3/12 эт.
Потапово
11 мин.
В основе проекта «Дзен-кварталы» лежит гармония простого и утонченного, природного и урбанистического — стиль Japandi, объединяющий скандинавскую функциональность и восточную созерцательность. «Дзен-кварталы» состоит из домов переменной этажности: от 6 до 18 этажей. Во всех входных группах выполнена дизайнерская отделка и установлены современные ли











2-комн. квартира·56,8 м²·2/12 эт.
Потапово
10 мин.
В основе проекта «Дзен-кварталы» лежит гармония простого и утонченного, природного и урбанистического — стиль Japandi, объединяющий скандинавскую функциональность и восточную созерцательность. «Дзен-кварталы» состоит из домов переменной этажности: от 6 до 18 этажей. Во всех входных группах выполнена дизайнерская отделка и установлены современные ли











2-комн. квартира·40,1 м²·9/12 эт.
Потапово
10 мин.
В основе проекта «Дзен-кварталы» лежит гармония простого и утонченного, природного и урбанистического — стиль Japandi, объединяющий скандинавскую функциональность и восточную созерцательность. «Дзен-кварталы» состоит из домов переменной этажности: от 6 до 18 этажей. Во всех входных группах выполнена дизайнерская отделка и установлены современные ли











2-комн. квартира·39,6 м²·8/12 эт.
Потапово
10 мин.
В основе проекта «Дзен-кварталы» лежит гармония простого и утонченного, природного и урбанистического — стиль Japandi, объединяющий скандинавскую функциональность и восточную созерцательность. «Дзен-кварталы» состоит из домов переменной этажности: от 6 до 18 этажей. Во всех входных группах выполнена дизайнерская отделка и установлены современные ли











2-комн. квартира·54 м²·8/12 эт.
Потапово
10 мин.
В основе проекта «Дзен-кварталы» лежит гармония простого и утонченного, природного и урбанистического — стиль Japandi, объединяющий скандинавскую функциональность и восточную созерцательность. «Дзен-кварталы» состоит из домов переменной этажности: от 6 до 18 этажей. Во всех входных группах выполнена дизайнерская отделка и установлены современные ли











2-комн. квартира·54 м²·6/12 эт.
Потапово
10 мин.
В основе проекта «Дзен-кварталы» лежит гармония простого и утонченного, природного и урбанистического — стиль Japandi, объединяющий скандинавскую функциональность и восточную созерцательность. «Дзен-кварталы» состоит из домов переменной этажности: от 6 до 18 этажей. Во всех входных группах выполнена дизайнерская отделка и установлены современные ли











2-комн. квартира·39,7 м²·3/12 эт.
Потапово
10 мин.
В основе проекта «Дзен-кварталы» лежит гармония простого и утонченного, природного и урбанистического — стиль Japandi, объединяющий скандинавскую функциональность и восточную созерцательность. «Дзен-кварталы» состоит из домов переменной этажности: от 6 до 18 этажей. Во всех входных группах выполнена дизайнерская отделка и установлены современные ли











2-комн. квартира·65,1 м²·9/12 эт.
Потапово
10 мин.
В основе проекта «Дзен-кварталы» лежит гармония простого и утонченного, природного и урбанистического — стиль Japandi, объединяющий скандинавскую функциональность и восточную созерцательность. «Дзен-кварталы» состоит из домов переменной этажности: от 6 до 18 этажей. Во всех входных группах выполнена дизайнерская отделка и установлены современные ли











2-комн. квартира·65,3 м²·7/12 эт.
Потапово
10 мин.
В основе проекта «Дзен-кварталы» лежит гармония простого и утонченного, природного и урбанистического — стиль Japandi, объединяющий скандинавскую функциональность и восточную созерцательность. «Дзен-кварталы» состоит из домов переменной этажности: от 6 до 18 этажей. Во всех входных группах выполнена дизайнерская отделка и установлены современные ли











2-комн. квартира·65,5 м²·5/12 эт.
Потапово
10 мин.
В основе проекта «Дзен-кварталы» лежит гармония простого и утонченного, природного и урбанистического — стиль Japandi, объединяющий скандинавскую функциональность и восточную созерцательность. «Дзен-кварталы» состоит из домов переменной этажности: от 6 до 18 этажей. Во всех входных группах выполнена дизайнерская отделка и установлены современные ли