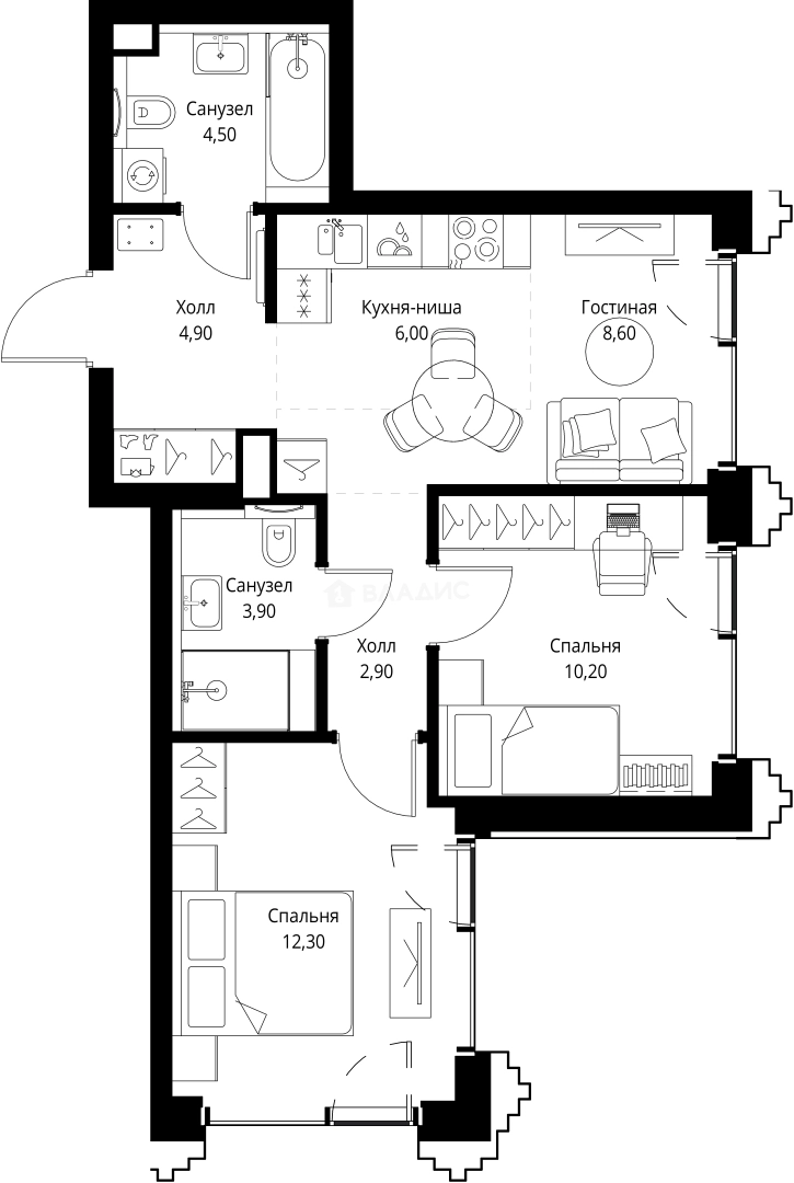
Продается 2-комн. квартира, 53.3 м²
Россия, Москва, жилой комплекс Сет
Давыдково
14 мин.
53.3 м²
Общая площадь
31.1 м²
Жилая площадь
49 из 59
Этаж
Описание
В комплексе предложен широкий выбор планировочных решений: от компактных студий площадью 22 кв. метра до просторных резиденций площадью 120 кв. метров. Планировками предусмотрены мастер-спальни с гардеробной и санузлом, просторные кухни-гостиные, гардеробные и системы хранения, выделенные рабочие зоны в спальнях и террасы с панорамным видом на город. Во всех квартирах панорамные окна и высокие потолки от 2,85 метра. Квартиры сдаются с отделкой White box.
Жилой комплекс включает в себя не только современные жилые корпуса, но и разнообразные инфраструктурные объекты: фитнес-клуб с бассейном, детскую школу искусств, центр культуры и досуга, медицинский центр, собственную школу на 1500 учеников и детский сад на 450 мест. Во дворах предусмотрены зоны как для активного, так и для расслабленного отдыха: воркаут-площадка с современными уличными тренажерами, двухуровневая детская игровая зона с безопасными резиновыми покрытиями и технологичным оборудованием, площадка для йоги, уличная терраса и собственный водоем. Для владельцев автомобилей предусмотрен подземный паркинг на 495 мест с зарядками для электрокаров, постами подкачки шин и автомойкой.
Комплекс расположен в Можайском районе, на Верейской улице, между природной зоной долины реки Сетунь, Кутузовским и Мичуринским проспектами. Рядом находится Школа управления Сколково, Мещерский парк, экотропа «Сетунь». В 20 минутах ходьбы расположено метро «Давыдково», а природный парк «Долина реки Сетунь» находится всего в 3 минутах.
О квартире
Общая площадь
53.3 м²
Жилая площадь
31.1 м²
Подъезд
1
Этаж
49
Окна выходят
На улицу
О доме
Год постройки
2028
Этажность
59
Количество подъездов
1
Материал постройки
Кирпично-монолитный
Материал перекрытий
Монолитные
Отопление
Центральное
Парковка
Подземная
Расположение
Россия, Москва, жилой комплекс Сет
Давыдково
14 мин.
Аминьевская
28 мин.
Кунцевская
29 мин.
Кунцевская
30 мин.
Кунцевская
30 мин.
Ипотечный калькулятор
Заполните 1 анкету — получите предложения от десятков банков на специальных условиях
Программа ипотеки
Стоимость жилья, ₽
Первый взнос, ₽
Срок кредита
от 5.75%
Ставка
от 194 985 ₽
Платеж в месяц
Расчёт носит информационный характер и не является публичной офертой
Похожие объекты







2-комн. квартира, 59,9 м², 5/14 эт.
Давыдково
18 мин.






1-комн. квартира, 46,6 м², 14/16 эт.
Давыдково
18 мин.
Консультант по новостройкам
30 993 950 ₽
581 500 ₽/м²

































