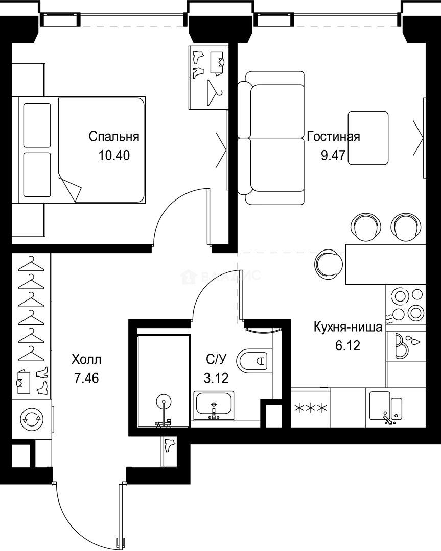
Продается 1-комн. квартира, 36.57 м²
Россия, Москва, жилой комплекс Сет
Давыдково
14 мин.
36.57 м²
Общая площадь
19.87 м²
Жилая площадь
40 из 59
Этаж
Описание
В комплексе предложен широкий выбор планировочных решений: от компактных студий площадью 22 кв. метра до просторных резиденций площадью 120 кв. метров. Планировками предусмотрены мастер-спальни с гардеробной и санузлом, просторные кухни-гостиные, гардеробные и системы хранения, выделенные рабочие зоны в спальнях и террасы с панорамным видом на город. Во всех квартирах панорамные окна и высокие потолки от 2,85 метра. Квартиры сдаются с отделкой White box.
Жилой комплекс включает в себя не только современные жилые корпуса, но и разнообразные инфраструктурные объекты: фитнес-клуб с бассейном, детскую школу искусств, центр культуры и досуга, медицинский центр, собственную школу на 1500 учеников и детский сад на 450 мест. Во дворах предусмотрены зоны как для активного, так и для расслабленного отдыха: воркаут-площадка с современными уличными тренажерами, двухуровневая детская игровая зона с безопасными резиновыми покрытиями и технологичным оборудованием, площадка для йоги, уличная терраса и собственный водоем. Для владельцев автомобилей предусмотрен подземный паркинг на 495 мест с зарядками для электрокаров, постами подкачки шин и автомойкой.
Комплекс расположен в Можайском районе, на Верейской улице, между природной зоной долины реки Сетунь, Кутузовским и Мичуринским проспектами. Рядом находится Школа управления Сколково, Мещерский парк, экотропа «Сетунь». В 20 минутах ходьбы расположено метро «Давыдково», а природный парк «Долина реки Сетунь» находится всего в 3 минутах.
О квартире
Общая площадь
36.57 м²
Жилая площадь
19.87 м²
Подъезд
1
Этаж
40
Окна выходят
На улицу
О доме
Год постройки
2028
Этажность
59
Количество подъездов
1
Материал постройки
Кирпично-монолитный
Материал перекрытий
Монолитные
Отопление
Центральное
Парковка
Подземная
Расположение
Россия, Москва, жилой комплекс Сет
Давыдково
14 мин.
Аминьевская
28 мин.
Кунцевская
29 мин.
Кунцевская
29 мин.
Ипотечный калькулятор
Заполните 1 анкету — получите предложения от десятков банков на специальных условиях
Программа ипотеки
Стоимость жилья, ₽
Первый взнос, ₽
Срок кредита
от 5.75%
Ставка
от 153 016 ₽
Платеж в месяц
Расчёт носит информационный характер и не является публичной офертой
Похожие объекты



















1-комн. квартира, 40,5 м², 11/30 эт.
Кунцевская
10 мин.






2-комн. квартира, 40,7 м², 6/16 эт.
Давыдково
18 мин.
Консультант по новостройкам
24 322 707 ₽
665 100 ₽/м²


























