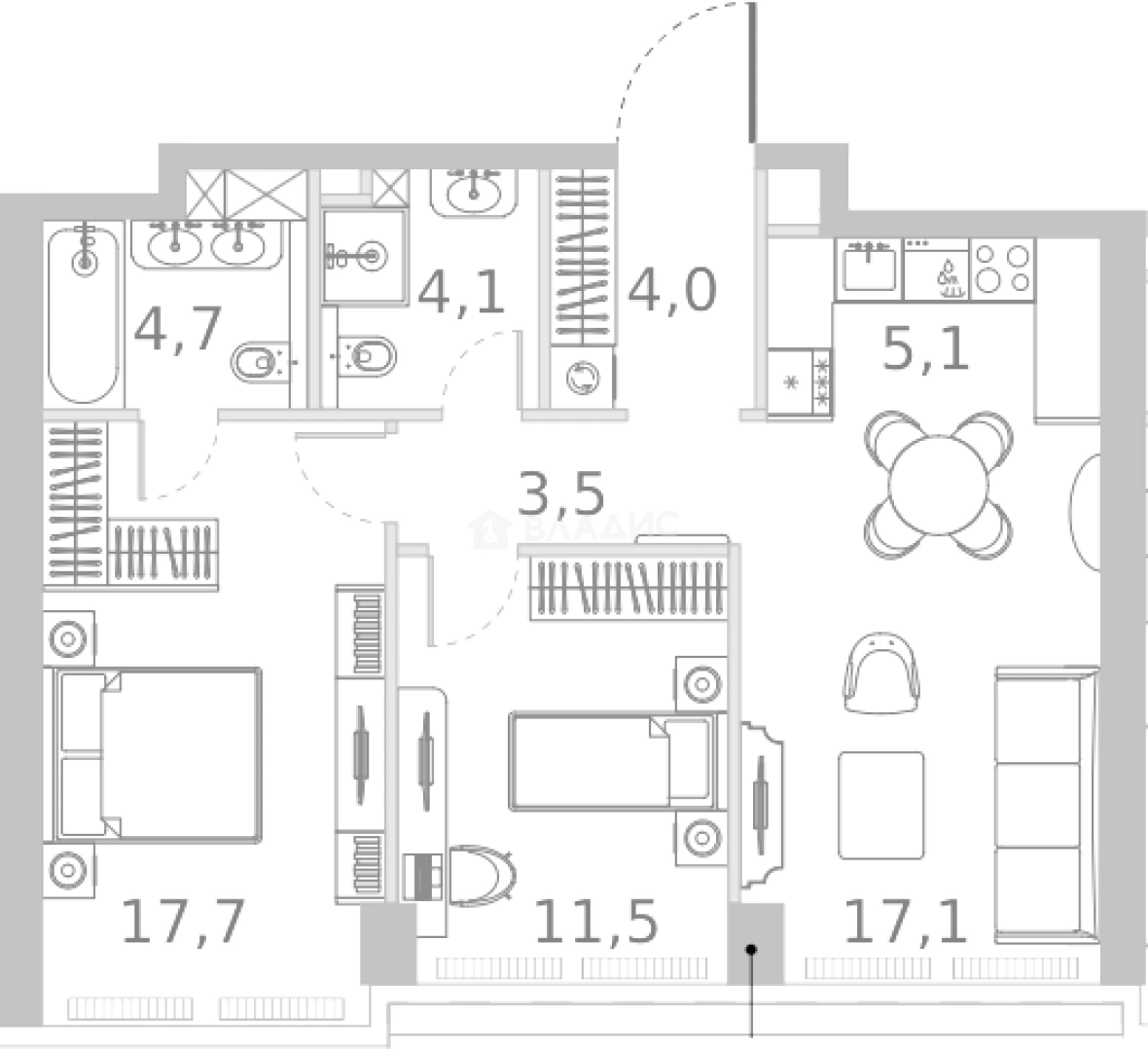
Продается 3-комн. квартира, 67.7 м²
Россия, Москва, Кутузовский проезд, 16А/1
Фили
5 мин.
67.7 м²
Общая площадь
29.2 м²
Жилая площадь
22.2 м²
Площадь кухни
16 из 45
Этаж
Описание
В проекте «River Park Towers Кутузовский» предложены планировки с огромными окнами и просторными балконами, радиусные панорамные квартиры и пентхаусы с дровяными каминами. Практически из всех квартир открываются завораживающие виды на Москву-реку и международный деловой центр «Москва-Сити». В комплексе представлены квартиры без отделки, с отделкой White box и с отделкой под ключ. Высота потолков от 3,1 до 6,1 метра.
Важной особенностью проекта «River Park Towers Кутузовский» является концепция «двор без машин». Благоустройством территории занималось бюро WEST8. На общем стилобате, объединяющем корпуса, размещен закрытый внутренний двор-парк площадью в 2 гектара. На его территории размещены арт объекты, выполнен ландшафтный дизайн, оборудованы прогулочные, игровые и спортивные зоны. На крыше каждой башни спроектированы свои зоны отдыха с джакузи, барбекю зоной, всесезонными беседками с WI-FI и пространствами для занятия йогой. На территории комплекса находится частные детский сад и школа, музыкальный салон, гольф-симулятор, Gentlemen’s club с бильярдной, beauty-coworking, развивающий Kid’s club и всесезонная игровая комната. Для владельцев автомобилей предусмотрен подземный паркинг на 564 места.
Жилой комплекс «River Park Towers Кутузовский» находится в районе Дорогомилово. В пешей доступности находятся детские сады, школы, магазины, кафе, рестораны, салоны красоты, медицинские учреждения, фитнес клуб, парк Фили и Поклонная гора. В 100 метрах от комплекса расположена благоустроенная набережная. До метро «Фили» всего 5 минут пешком.
О квартире
Общая площадь
67.7 м²
Жилая площадь
29.2 м²
Площадь кухни
22.2 м²
Площадь комнат
17.7+11.5 м²
Высота потолков
3.1 м
Этаж
16
Окна выходят
На улицу
О доме
Год постройки
2026
Этажность
45
Количество подъездов
1
Материал постройки
Монолитный
Материал перекрытий
Монолитные
Отопление
Центральное
Пассажирских лифтов
1
Грузовых лифтов
1
Парковка
Подземная
Расположение
Россия, Москва, Кутузовский проезд, 16А/1
Фили
5 мин.
Москва-Сити
9 мин.
Кутузовская
12 мин.
Парк Победы
14 мин.
Ипотечный калькулятор
Заполните 1 анкету — получите предложения от десятков банков на специальных условиях
Программа ипотеки
Стоимость жилья, ₽
Первый взнос, ₽
Срок кредита
от 5.75%
Ставка
от 359 104 ₽
Платеж в месяц
Расчёт носит информационный характер и не является публичной офертой
Консультант по новостройкам
57 081 443 ₽
843 153 ₽/м²











































