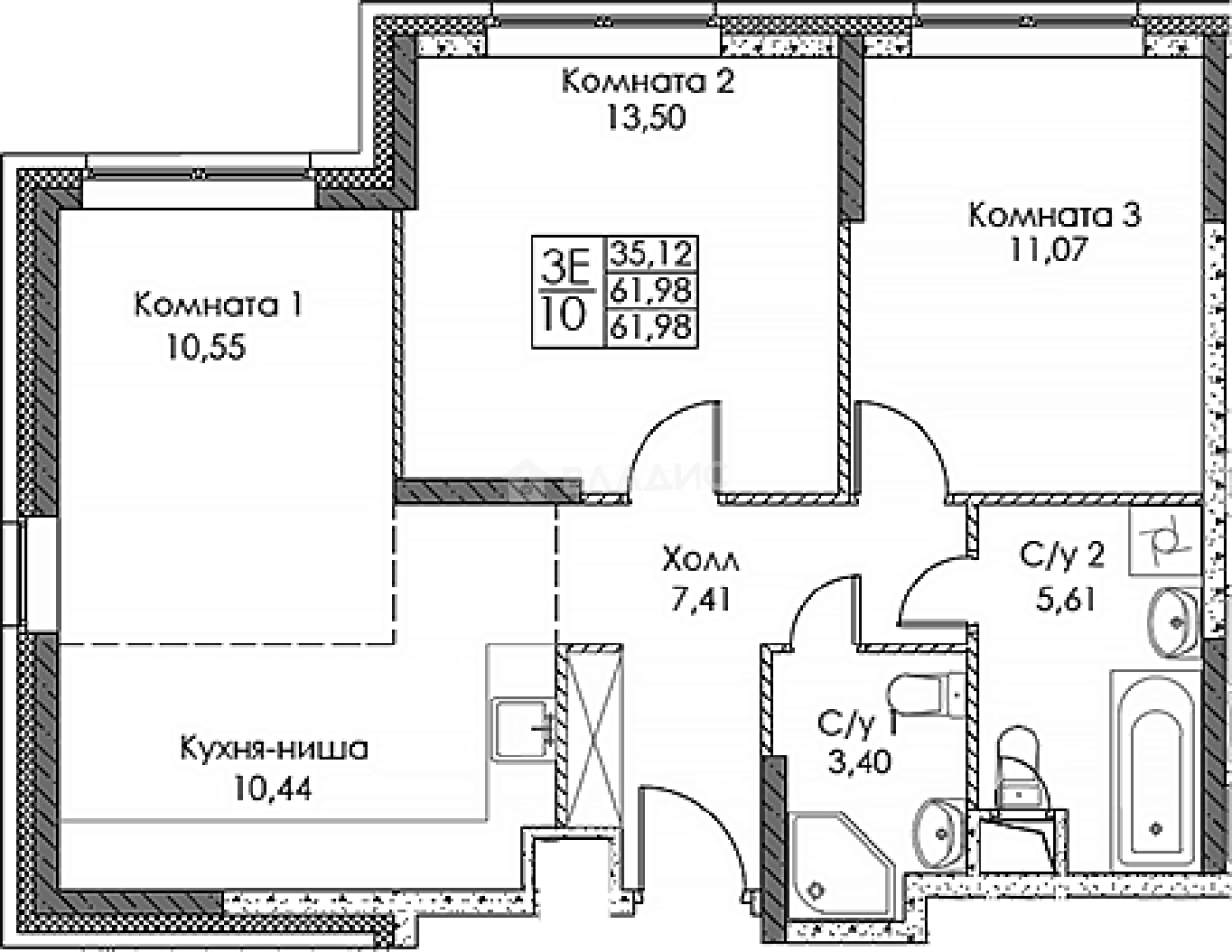
Продается 3-комн. квартира, 61.98 м²
Россия, Москва, Восточный административный округ, район Преображенское
Преображенская площадь
12 мин.
61.98 м²
Общая площадь
35.12 м²
Жилая площадь
10.44 м²
Площадь кухни
2 из 20
Этаж
Описание
Комплекс предлагает широкий выбор апартаментов: от уютных студий площадью 23,8 кв. метров до 4-комнатных апартаментов. Также есть апартаменты с видовыми террасами на парк «Сокольники» на западной стороне дома. Квартиры, как классического типа, так и европланировки, сдаются без отделки, с высокими потолками 3,1 метров и панорамными окнами, начиная с 4 этажа и выше.
В комплексе предусмотрены различные зоны отдыха: детские игровые пространства, площадка для воркаута, прогулочные зоны, амфитеатр и кафе. На территории двора выполнен ландшафтный дизайн, создающий спокойное пространство для отдыха. Особенностью комплекса является смотровая площадка на реку Яузу и парк «Сокольники». Пространство двора является зоной без машин, для автомобилей предусмотрен подземный паркинг.
Проект располагается в историческом районе Преображенское с развитой инфраструктурой и удобной транспортной доступностью. Рядом находится несколько школ, детские сады, поликлиники, аптеки, спортивный комплекс, фитнес-клубы, банки и супермаркеты. В 300 метрах от комплекса находится парк «Сокольники». Удобный выезд на улицу Стромынка и ТТК позволяет доехать до центра за 15 минут. Метро «Преображенская площадь» находится в 15 минутах пешком.
О квартире
Общая площадь
61.98 м²
Жилая площадь
35.12 м²
Площадь кухни
10.44 м²
Площадь комнат
10.55+11.07+13.50 м²
Высота потолков
3.1 м
Подъезд
1
Этаж
2
Окна выходят
На улицу
О доме
Год постройки
2026
Этажность
20
Количество подъездов
1
Материал постройки
Кирпично-монолитный
Материал перекрытий
Монолитные
Отопление
Центральное
Пассажирских лифтов
1
Грузовых лифтов
1
Парковка
Подземная
Расположение
Россия, Москва, Восточный административный округ, район Преображенское
Преображенская площадь
12 мин.
Сокольники
21 мин.
Сокольники
22 мин.
Электрозаводская
26 мин.
Электрозаводская
26 мин.
Ипотечный калькулятор
Заполните 1 анкету — получите предложения от десятков банков на специальных условиях
Программа ипотеки
Стоимость жилья, ₽
Первый взнос, ₽
Срок кредита
от 5.75%
Ставка
от 143 101 ₽
Платеж в месяц
Расчёт носит информационный характер и не является публичной офертой
Похожие объекты







2-комн. квартира, 53,5 м², 2/45 эт.
Бульвар Рокоссовского
2 мин.









2-комн. квартира, 61,9 м², 10/45 эт.
Бульвар Рокоссовского
2 мин.









2-комн. квартира, 58,3 м², 10/45 эт.
Бульвар Рокоссовского
2 мин.









2-комн. квартира, 57,8 м², 8/45 эт.
Бульвар Рокоссовского
2 мин.
Консультант по новостройкам
22 746 660 ₽
367 000 ₽/м²















