Продается 4-комн. квартира, 163.3 м²
Россия, Москва, Южный административный округ, Даниловский район, микрорайон Г, жилой комплекс Форивер, 10
Автозаводская
11 мин.
163.3 м²
Общая площадь
107.02 м²
Жилая площадь
15.12 м²
Площадь кухни
18 из 19
Этаж
Описание
В комплексе предложено множество планировочных решений: в наличии квартиры, как классического типа, так и европланировки. Среди них есть квартиры с патио, каминами, мастер-спальнями, окнами в ванной и угловым остеклением. На последних этажах размещены пентхаусы. Высота потолков на типовом этаже составляет 3 метра. Квартиры сдаются без отделки и с чистовой отделкой. Здания расположены вдоль береговой линии, поэтому большинство квартир имеют видовые характеристики.
В состав комплекса входит 3 детских сада. Для автовладельцев предусмотрен подземный паркинг на 1450 мест с келлерами, автомойкой и местами для электрокаров. Закрытый двор комплекса поднят на стилобат и благоустроен.Также проект благоустройства территории включает создание собственной набережной с прогулочными и велодорожками.
ЖК «FORIVER» находится на Симоновской набережной, в Даниловском районе Москвы. В 300 метрах расположен детский парк Липки. Метро «Автозаводская» находится в 10 минутах пешком, а ТТК — в 1,5 км.
О квартире
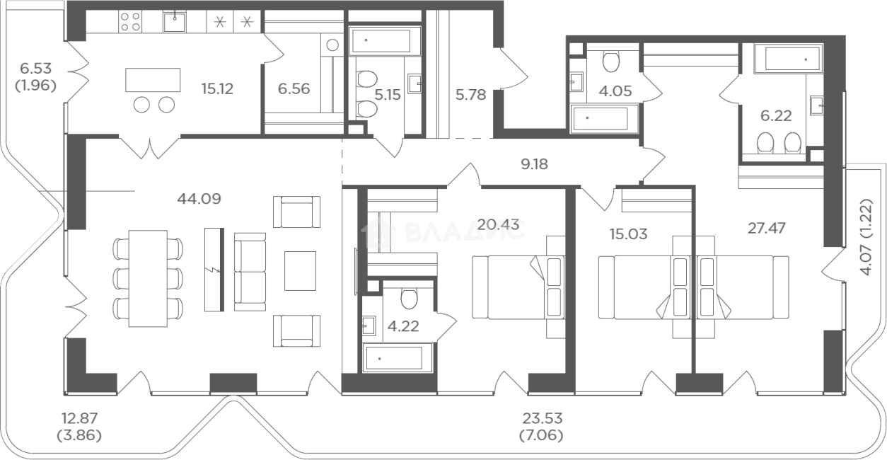
Общая площадь
163.3 м²
Жилая площадь
107.02 м²
Площадь кухни
15.12 м²
Площадь комнат
27.47+15.03+20.43+44.09 м²
Высота потолков
3.65 м
Подъезд
1
Этаж
18
Окна выходят
На улицу
О доме
Год постройки
2024
Этажность
19
Количество подъездов
1
Материал постройки
Монолитный
Материал перекрытий
Монолитные
Отопление
Центральное
Пассажирских лифтов
1
Грузовых лифтов
1
Парковка
Подземная
Расположение
Россия, Москва, Южный административный округ, Даниловский район, микрорайон Г, жилой комплекс Форивер, 10
Автозаводская
11 мин.
Автозаводская
14 мин.
Дубровка
20 мин.
Дубровка
21 мин.
ЗИЛ
21 мин.
Тульская
22 мин.
Ипотечный калькулятор
Заполните 1 анкету — получите предложения от десятков банков на специальных условиях
Программа ипотеки
Стоимость жилья, ₽
Первый взнос, ₽
Срок кредита
от 5.75%
Ставка
от 630 672 ₽
Платеж в месяц
Расчёт носит информационный характер и не является публичной офертой
Похожие объекты






































4-комн. квартира, 144,2 м², 6/6 эт.
Технопарк
7 мин.










4-комн. квартира, 177,4 м², 7/22 эт.
Серпуховская
13 мин.








4-комн. квартира, 161,6 м², 17/19 эт.
Автозаводская
11 мин.










4-комн. квартира, 162,2 м², 1/28 эт.
Дубровка
15 мин.
Консультант по новостройкам
100 248 740 ₽
613 894 ₽/м²
















