Продается 3-комн. квартира, 77 м²
Россия, Москва, Мосфильмовская улица, 31А
Ломоносовский проспект
11 мин.
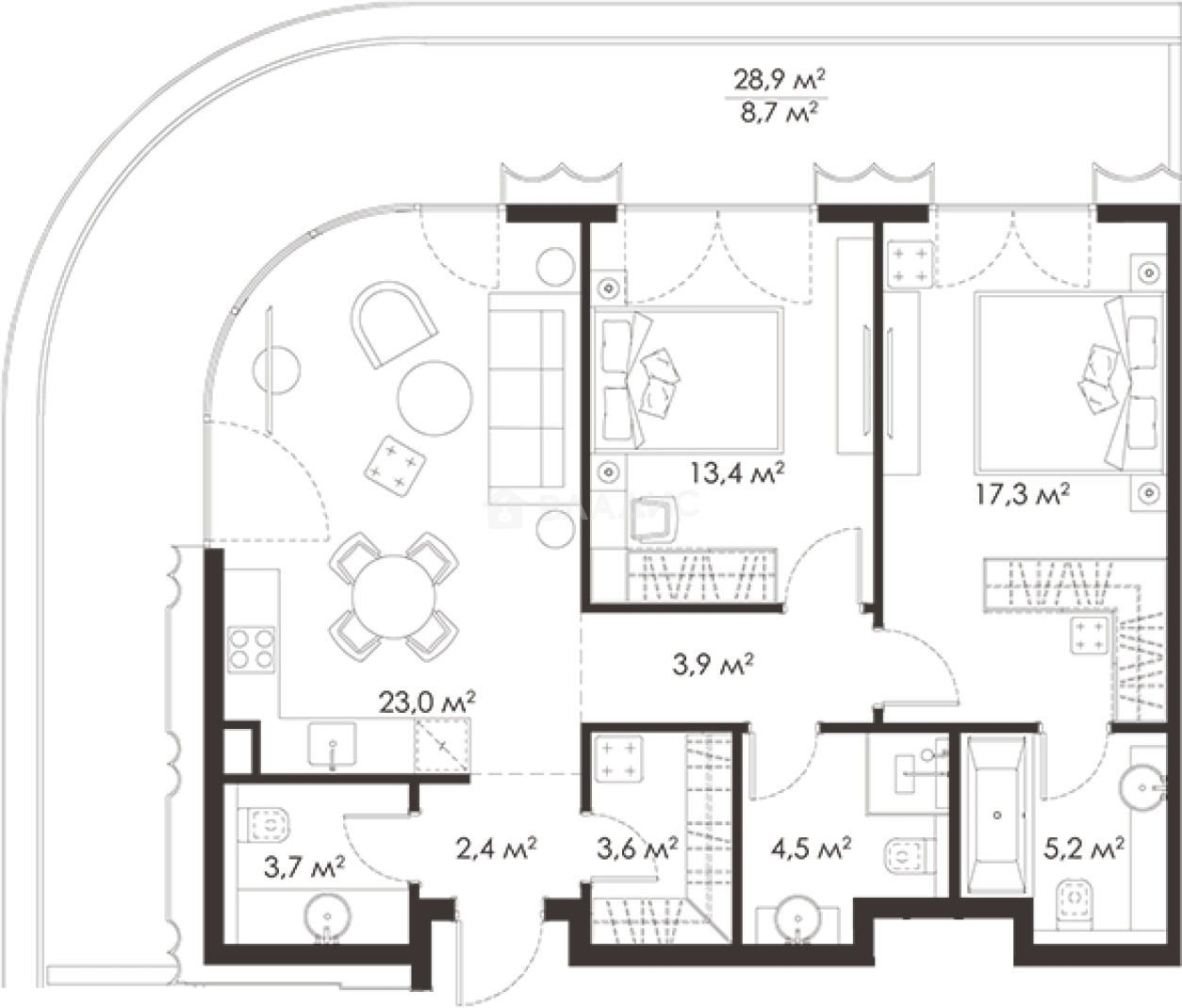
77 м²
Общая площадь
30.7 м²
Жилая площадь
23 м²
Площадь кухни
2 из 15
Этаж
Описание
Всего в проекте предложено 117 резиденций, в 70% из которых есть собственные открытые террасы. На первом этаже расположены 6 уникальных лотов с персональными патио, а на последнем этаже — 4 пентхауса. Все квартиры сдаются без отделки. Из большинства квартир в проекте открываются панорамные виды на деловой центр «Москва-Сити», Главное здание МГУ и Парк Воробьевы горы.
На территории спроектирован приватный сад с экзотическим растениями и зоной открытого огня. Для резидентов комплекса предусмотрено несколько зон для занятия спортом — собственный фитнес-зал, места для медитации и занятий йогой на крыше, а также workout зона во дворе. Для владельцев автомобилей предусмотрен подземный паркинг.
Проект расположен на Мосфильмовской улице, в районе Раменки. Резидентам комплекса доступна сложившаяся инфраструктура района: бутики торгового центра «Времена года», рестораны, арт-галереи, СПА-салоны, тренажерные залы и Московский гольф-клуб. Рядом расположены ведущие университеты и институты Москвы: МГУ, МГИМО, РУДН, РАНХИГС и другие. Рядом с клубным домом расположены парки и скверы, которые отлично подходят для пеших прогулок: в 7 минутах находится парк перед посольством КНР, а в 15 минутах ходьбы — Ботанический сад МГУ и природный заказник Долина реки Сетунь. До метро «Ломоносовский проспект» — 10 минут пешком.
О квартире
Общая площадь
77 м²
Жилая площадь
30.7 м²
Площадь кухни
23 м²
Площадь комнат
13.4+17.3 м²
Высота потолков
3.23 м
Подъезд
1
Этаж
2
Окна выходят
На улицу
О доме
Год постройки
2027
Этажность
15
Количество подъездов
1
Материал постройки
Кирпично-монолитный
Материал перекрытий
Монолитные
Отопление
Центральное
Пассажирских лифтов
1
Грузовых лифтов
1
Парковка
Подземная
Расположение
Россия, Москва, Мосфильмовская улица, 31А
Ломоносовский проспект
11 мин.
Минская
17 мин.
Раменки
22 мин.
Университет
30 мин.
Парк Победы
4 мин.
Ипотечный калькулятор
Заполните 1 анкету — получите предложения от десятков банков на специальных условиях
Программа ипотеки
Стоимость жилья, ₽
Первый взнос, ₽
Срок кредита
от 5.75%
Ставка
от 513 687 ₽
Платеж в месяц
Расчёт носит информационный характер и не является публичной офертой
Похожие объекты








3-комн. квартира, 85,7 м², 16/40 эт.
Парк Победы
10 мин.










3-комн. квартира, 85,4 м², 25/40 эт.
Парк Победы
10 мин.
Консультант по новостройкам
81 653 289 ₽
1 060 433 ₽/м²




















