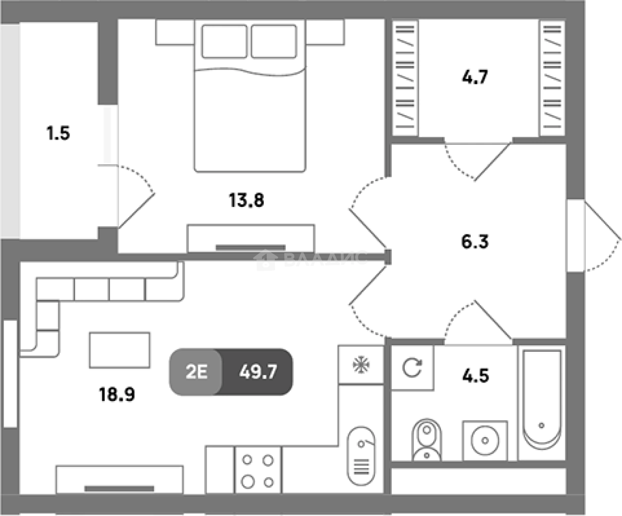
Продается 2-комн. квартира, 48.2 м²
Россия, Москва, жилой комплекс Проспект 39
Стахановская
3 мин.
48.2 м²
Общая площадь
13.8 м²
Жилая площадь
18.9 м²
Площадь кухни
23 из 32
Этаж
Описание
В проекте предложено множество планировочных решений: в наличии квартиры как классического типа, так и европланировки. Квартиры сдаются без отделки.
В закрытом дворе комплекса оборудованы детские и спортивные площадки, выполнено озеленение. На территории предусмотрены круглосуточная охрана и видеонаблюдение. На первых этажах зданий открыты магазины, аптеки, салоны красоты и другие полезные сервисы. Для владельцев автомобилей предусмотрен наземный паркинг.
Жилой комплекс находится в Рязанском районе Москвы, где хорошо развита инфраструктура. В 15 минутах от жилого комплекса находится торгово-развлекательный центр «Город», в котором доступны: семейный и строительный гипермаркеты, фудкорт, рестораны, детский развлекательный парк, магазины, аптеки, студии красоты, химчистка, отделения банков. В непосредственной близости расположена зеленая зона — Кусковский лесопарк площадью 310 гектаров и одноименный музей-усадьба «Кусково». В лесопарковой зоне есть пешеходные и велосипедные маршруты, детские и спортивные площадки, стадион с футбольным полем, памп-трек и скейтпарк, оборудовано 10 беседок для пикника. Комплекс имеет удобный выезд на Рязанский проспект, метро «Стахановская» в 5 минутах пешком.
О квартире
Общая площадь
48.2 м²
Жилая площадь
13.8 м²
Площадь кухни
18.9 м²
Площадь комнат
13.8 м²
Высота потолков
2.68 м
Подъезд
1
Этаж
23
Окна выходят
На улицу
О доме
Год постройки
2025
Этажность
32
Количество подъездов
1
Материал постройки
Кирпично-монолитный
Материал перекрытий
Монолитные
Отопление
Центральное
Пассажирских лифтов
1
Грузовых лифтов
1
Парковка
Наземная
Расположение
Россия, Москва, жилой комплекс Проспект 39
Стахановская
3 мин.
Окская
15 мин.
Нижегородская
21 мин.
Нижегородская
23 мин.
Ипотечный калькулятор
Заполните 1 анкету — получите предложения от десятков банков на специальных условиях
Программа ипотеки
Стоимость жилья, ₽
Первый взнос, ₽
Срок кредита
от 5.75%
Ставка
от 105 135 ₽
Платеж в месяц
Расчёт носит информационный характер и не является публичной офертой
Похожие объекты







1-комн. квартира, 44 м², 27/32 эт.
Стахановская
3 мин.







1-комн. квартира, 43,1 м², 25/32 эт.
Стахановская
2 мин.
Консультант по новостройкам
16 711 675 ₽
346 716 ₽/м²


























