Продается 3-комн. квартира, 56.4 м²
Россия, Москва, жилой комплекс Левел Южнопортовая, 13
Кожуховская
10 мин.
56.4 м²
Общая площадь
23.8 м²
Жилая площадь
14.5 м²
Площадь кухни
4 из 23
Этаж
Описание
В ЖК «Level Южнопортовая» предложено множество планировочных решений: в наличии квартиры, как классического типа, так и европланировки. Можно подобрать планировку с увеличенным количеством окон, с мастер-спальней, угловым остеклением. На 68 и 69 этажах расположены двухуровневые квартиры с высотой потолков 5,9 метров. На выбор предлагаются квартиры без отделки, с отделкой «White box» и дизайнерской отделкой в одном из двух стилей — «Modern» или «Classic». Из окон открываются панорамные виды на реку, парки и Москва-Сити.
Проект благоустройства ЖК «Level Южнопортовая» разработан бюро «GAFA». Главная идея — создание аналога Центрального парка Нью-Йорка. Около половины внутренней территории в 2 га отведено под озеленение, предусмотрено несколько тематических зон отдыха: цветочный сад, пустыня, хвойный лес и другие. Оборудованы современные детские и спортивные площадки, открытая зона с двумя навесами, тренажерами, качелями и петанком, в центре двора разбит амфитеатр. В жилом комплексе своя развитая инфраструктура: первые этажи занимают коммерческие помещения, на территории расположены собственный детский сад и школа, торговый и медицинский центры, кафе, магазины и фитнес-центр. В проекте спроектированы Open Space и террасы для коливинга с живой изгородью, шезлонгами, столами и розетками. Для владельцев автомобилей предусмотрено 2 паркинга — подземный отапливаемый и отдельно стоящий 9-этажный.
ЖК «Level Южнопортовая» расположен в районе Печатники, на левом берегу Москвы-реки. В пешей доступности находится 2 метро — «Кожуховская» и «Дубровка». До ТТК дорога займет 3 минуты, до МКАД — 20 минут транспортом.
О квартире
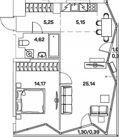
Общая площадь
56.4 м²
Жилая площадь
23.8 м²
Площадь кухни
14.5 м²
Площадь комнат
13.7+10.1 м²
Высота потолков
2.7199999999999998 м
Подъезд
1
Этаж
4
Окна выходят
На улицу
О доме
Год постройки
2026
Этажность
23
Количество подъездов
1
Материал постройки
Кирпично-монолитный
Материал перекрытий
Монолитные
Отопление
Центральное
Пассажирских лифтов
1
Грузовых лифтов
1
Парковка
Многоуровневая
Расположение
Россия, Москва, жилой комплекс Левел Южнопортовая, 13
Кожуховская
10 мин.
Угрешская
19 мин.
Дубровка
19 мин.
Текстильщики
24 мин.
Дубровка
25 мин.
Печатники
26 мин.
Ипотечный калькулятор
Заполните 1 анкету — получите предложения от десятков банков на специальных условиях
Программа ипотеки
Стоимость жилья, ₽
Первый взнос, ₽
Срок кредита
от 5.75%
Ставка
от 106 812 ₽
Платеж в месяц
Расчёт носит информационный характер и не является публичной офертой
Похожие объекты








2-комн. квартира, 52,1 м², 15/16 эт.
Волгоградский проспект
10 мин.








2-комн. квартира, 50,1 м², 13/28 эт.
Нижегородская
9 мин.






2-комн. квартира, 59,0 м², 7/28 эт.
Нижегородская
9 мин.








2-комн. квартира, 54,3 м², 5/28 эт.
Нижегородская
9 мин.
Консультант по новостройкам
16 978 344 ₽
301 035 ₽/м²
















