Продается 1-комн. квартира, 38.1 м²
Россия, Москва, жилой комплекс Левел Южнопортовая, 14
Кожуховская
9 мин.
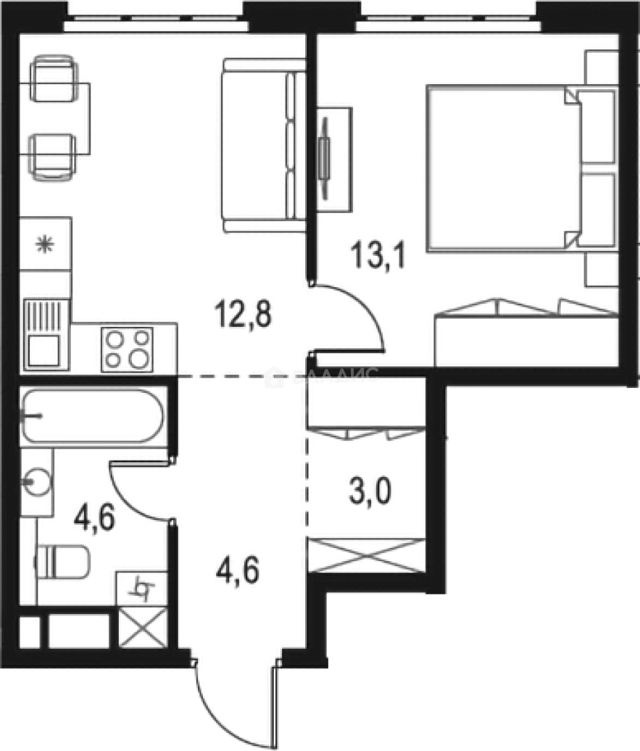
38.1 м²
Общая площадь
13.1 м²
Жилая площадь
12.8 м²
Площадь кухни
4 из 13
Этаж
Описание
В ЖК «Level Южнопортовая» предложено множество планировочных решений: в наличии квартиры, как классического типа, так и европланировки. Можно подобрать планировку с увеличенным количеством окон, с мастер-спальней, угловым остеклением. На 68 и 69 этажах расположены двухуровневые квартиры с высотой потолков 5,9 метров. На выбор предлагаются квартиры без отделки, с отделкой «White box» и дизайнерской отделкой в одном из двух стилей — «Modern» или «Classic». Из окон открываются панорамные виды на реку, парки и Москва-Сити.
Проект благоустройства ЖК «Level Южнопортовая» разработан бюро «GAFA». Главная идея — создание аналога Центрального парка Нью-Йорка. Около половины внутренней территории в 2 га отведено под озеленение, предусмотрено несколько тематических зон отдыха: цветочный сад, пустыня, хвойный лес и другие. Оборудованы современные детские и спортивные площадки, открытая зона с двумя навесами, тренажерами, качелями и петанком, в центре двора разбит амфитеатр. В жилом комплексе своя развитая инфраструктура: первые этажи занимают коммерческие помещения, на территории расположены собственный детский сад и школа, торговый и медицинский центры, кафе, магазины и фитнес-центр. В проекте спроектированы Open Space и террасы для коливинга с живой изгородью, шезлонгами, столами и розетками. Для владельцев автомобилей предусмотрено 2 паркинга — подземный отапливаемый и отдельно стоящий 9-этажный.
ЖК «Level Южнопортовая» расположен в районе Печатники, на левом берегу Москвы-реки. В пешей доступности находится 2 метро — «Кожуховская» и «Дубровка». До ТТК дорога займет 3 минуты, до МКАД — 20 минут транспортом.
О квартире
Общая площадь
38.1 м²
Жилая площадь
13.1 м²
Площадь кухни
12.8 м²
Площадь комнат
13.1 м²
Высота потолков
2.7199999999999998 м
Подъезд
1
Этаж
4
Окна выходят
На улицу
О доме
Год постройки
2026
Этажность
13
Количество подъездов
1
Материал постройки
Кирпично-монолитный
Материал перекрытий
Монолитные
Отопление
Центральное
Пассажирских лифтов
1
Грузовых лифтов
1
Парковка
Многоуровневая
Расположение
Россия, Москва, жилой комплекс Левел Южнопортовая, 14
Кожуховская
9 мин.
Угрешская
18 мин.
Дубровка
18 мин.
Текстильщики
24 мин.
Дубровка
24 мин.
Автозаводская
26 мин.
Ипотечный калькулятор
Заполните 1 анкету — получите предложения от десятков банков на специальных условиях
Программа ипотеки
Стоимость жилья, ₽
Первый взнос, ₽
Срок кредита
от 5.75%
Ставка
от 70 128 ₽
Платеж в месяц
Расчёт носит информационный характер и не является публичной офертой
Похожие объекты














2-комн. квартира, 39,2 м², 3/13 эт.
Кожуховская
9 мин.














2-комн. квартира, 35,7 м², 3/23 эт.
Кожуховская
10 мин.















2-комн. квартира, 33,1 м², 14/23 эт.
Кожуховская
10 мин.















2-комн. квартира, 34,9 м², 13/23 эт.
Кожуховская
10 мин.
Консультант по новостройкам
11 147 149 ₽
292 577 ₽/м²















