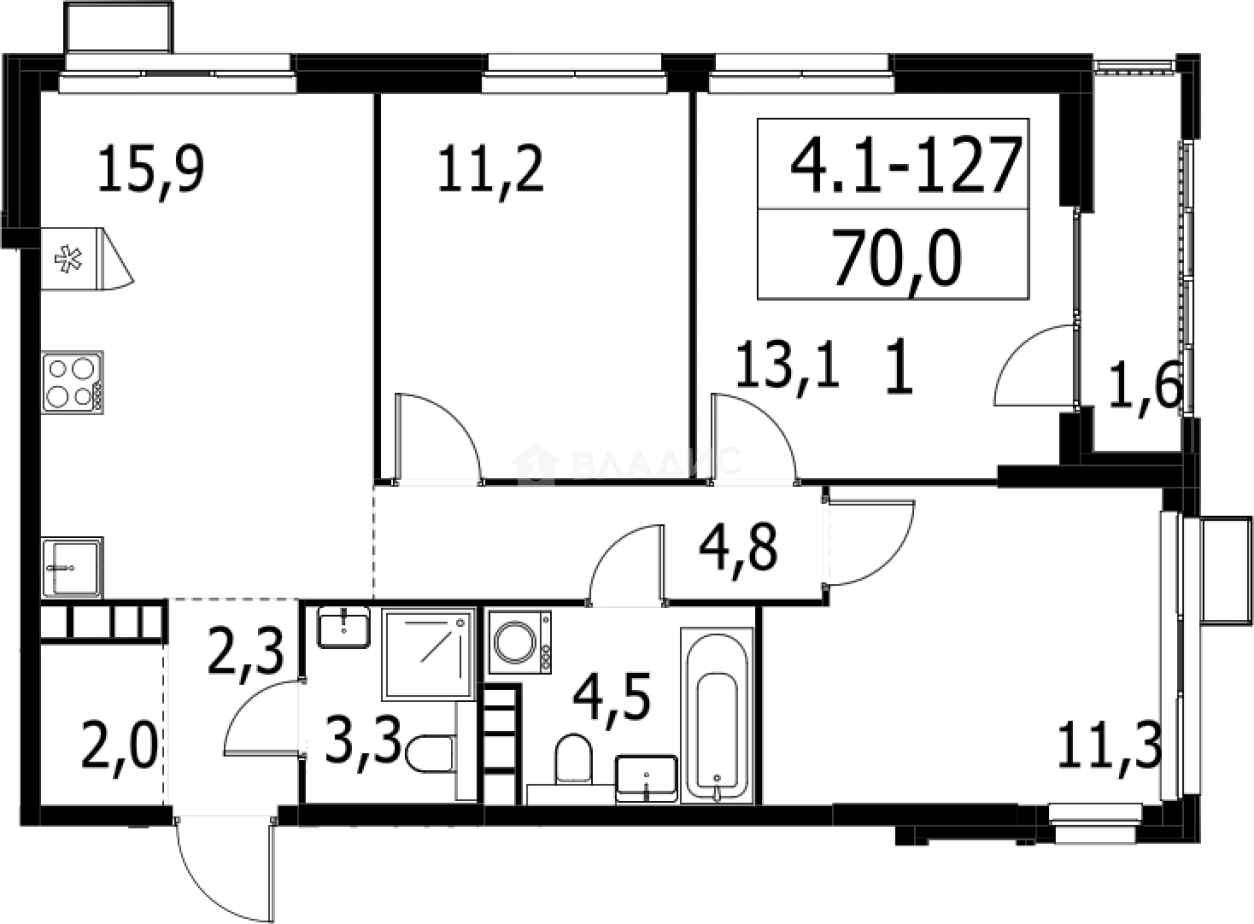
Продается 3-комн. квартира, 68.4 м²
Россия, Москва, жилой комплекс Южные Сады
Улица Горчакова
14 мин.
68.4 м²
Общая площадь
35.6 м²
Жилая площадь
15.9 м²
Площадь кухни
24 из 24
Этаж
Описание
В комплексе предложено множество планировочных решений: в наличии квартиры, как классического типа, так и европланировки. Среди них представлены двухэтажные квартиры, квартиры с террасами и мастер-спальнями. Они сдаются без отделки и с подчистовой отделкой. Также застройщик предоставляет возможность дозаказать чистовую отделку из 6 дизайнерских стилей.
В состав комплекса входят детский сад, фитнес-зал и коммерческие помещения на первых этажах. Двор закрыт от машин и случайных прохожих. Для автовладельцев предусмотрен подземный паркинг. В каждой секции есть кладовые помещения и колясочные. Территория комплекса благоустроена: высажены вечнозеленые деревья и живые изгороди. Спроектирован амфитеатр, двор-патио с геопластикой и детские площадки.
Проект расположен близко от природных рекреационных зон. Среди них в пешей доступности: парк Южное Бутово, детский ландшафтный парк и Бутовский лесопарк. Метро «Бунинская аллея» и «Улица Горчакова» находятся в 15 минутах пешком.
О квартире
Общая площадь
68.4 м²
Жилая площадь
35.6 м²
Площадь кухни
15.9 м²
Площадь комнат
11.2+13.1+11.3 м²
Высота потолков
2.95 м
Подъезд
1
Этаж
24
Окна выходят
На улицу
О доме
Год постройки
2026
Этажность
24
Количество подъездов
1
Материал постройки
Кирпично-монолитный
Материал перекрытий
Монолитные
Отопление
Центральное
Пассажирских лифтов
1
Грузовых лифтов
1
Парковка
Подземная
Расположение
Россия, Москва, жилой комплекс Южные Сады
Улица Горчакова
14 мин.
Бунинская аллея
15 мин.
Бульвар Адмирала Ушакова
20 мин.
Потапово
21 мин.
Улица Скобелевская
28 мин.
Новомосковская
5 мин.
Ипотечный калькулятор
Заполните 1 анкету — получите предложения от десятков банков на специальных условиях
Программа ипотеки
Стоимость жилья, ₽
Первый взнос, ₽
Срок кредита
от 5.75%
Ставка
от 108 161 ₽
Платеж в месяц
Расчёт носит информационный характер и не является публичной офертой
Похожие объекты








3-комн. квартира, 68,4 м², 18/24 эт.
Улица Горчакова
14 мин.








3-комн. квартира, 68,5 м², 11/24 эт.
Улица Горчакова
14 мин.








2-комн. квартира, 58,2 м², 11/24 эт.
Улица Горчакова
14 мин.








3-комн. квартира, 68,5 м², 12/24 эт.
Улица Горчакова
14 мин.
Консультант по новостройкам
17 192 700 ₽
251 356 ₽/м²








