Продается 3-комн. квартира, 60.27 м²
Россия, Москва, 1-й Котляковский переулок, 2Ак3
Варшавская
10 мин.
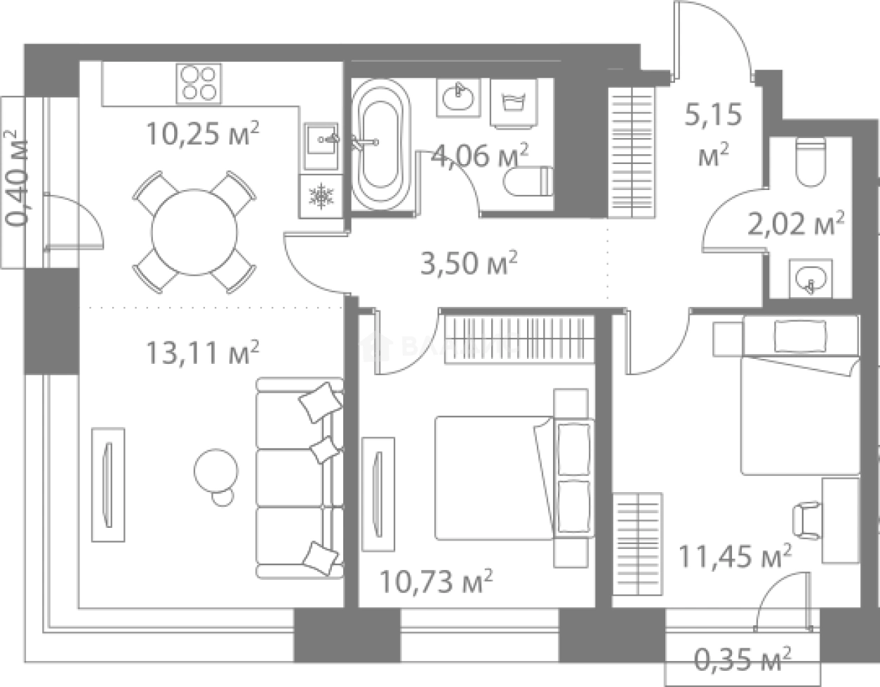
60.27 м²
Общая площадь
22.18 м²
Жилая площадь
23.36 м²
Площадь кухни
23 из 25
Этаж
Описание
В жилом комплексе «LIFE Варшавская» предложено множество планировочных решений: в наличии квартиры, как классического типа, так и европланировки.
В «LIFE Варшавская» детально продумана внутренняя инфраструктура: в квартале предусмотрено 3 детских сада, 1 школа, 3 многоуровневых наземных паркинга, все первые этажи отданы под коммерческие помещения. В проекте «LIFE Варшавская» прекрасное благоустройство, собственный бульвар и сквер, а также крупнейшие парки и лесные массивы в окружении.
ЖК «LIFE Варшавская» возводится на юге Москвы в 5 пешком от станции метро «Варшавская». Недалеко от комплекса проходят два скоростных шоссе — Варшавское и Каширское. В пешей доступности располагается железнодорожная станция «Коломенское» Павелецкого направления, откуда можно удобно добраться до центра столицы или за город.
О квартире
Общая площадь
60.27 м²
Жилая площадь
22.18 м²
Площадь кухни
23.36 м²
Площадь комнат
10.73+11.45 м²
Высота потолков
2.87 м
Подъезд
7
Этаж
23
Окна выходят
На улицу
О доме
Год постройки
2026
Этажность
25
Количество подъездов
9
Материал постройки
Кирпично-монолитный
Материал перекрытий
Монолитные
Отопление
Центральное
Пассажирских лифтов
1
Грузовых лифтов
1
Парковка
Подземная
Расположение
Россия, Москва, 1-й Котляковский переулок, 2Ак3
Варшавская
10 мин.
Каширская
15 мин.
Каширская
16 мин.
Чертановская
23 мин.
Севастопольская
25 мин.
Каховская
26 мин.
Нахимовский проспект
26 мин.
Кантемировская
27 мин.
Ипотечный калькулятор
Заполните 1 анкету — получите предложения от десятков банков на специальных условиях
Программа ипотеки
Стоимость жилья, ₽
Первый взнос, ₽
Срок кредита
от 5.75%
Ставка
от 170 452 ₽
Платеж в месяц
Расчёт носит информационный характер и не является публичной офертой
Похожие объекты
Консультант по новостройкам
27 094 161 ₽
449 547 ₽/м²



































