Продается 1-комн. квартира, 48.4 м²
Россия, Москва, ЖК Шагал, 2-я очередь, к4
ЗИЛ
13 мин.
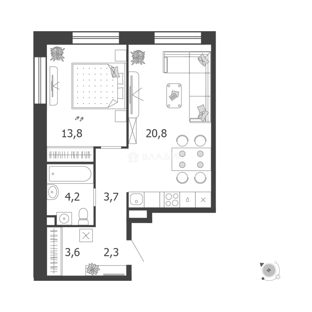
48.4 м²
Общая площадь
13.8 м²
Жилая площадь
20.8 м²
Площадь кухни
16 из 17
Этаж
Описание
Покупателям в ЖК предложено множество планировочных решений: в наличии квартиры, как классического типа, так и европланировки. Из большинства квартир открывается вид на Москву-реку.
На первых этажах предусмотрены коммерческие помещения. В подземной части зданий находятся паркинги и кладовые помещения. Также проектом предусмотрено благоустройство набережной и создание 4-километровой парковой зоны и первого в столице водного парка.
Комплекс расположен вдоль Москвы-реки и набережной Марка Шагала. Отличную транспортную доступность обеспечивает прямой выезд на ТТК и развитая сеть общественного транспорта. В 2 км расположена платформа МЦК «ЗИЛ» и станция метро «Технопарк».
О квартире
Общая площадь
48.4 м²
Жилая площадь
13.8 м²
Площадь кухни
20.8 м²
Высота потолков
2.87 м
Подъезд
1
Этаж
16
Окна выходят
На улицу
Ремонт
Без отделки
О доме
Год постройки
2025
Этажность
17
Количество подъездов
2
Материал постройки
Кирпично-монолитный
Материал перекрытий
Монолитные
Отопление
Центральное
Парковка
Подземная
Расположение
Россия, Москва, ЖК Шагал, 2-я очередь, к4
ЗИЛ
13 мин.
Верхние Котлы
18 мин.
Технопарк
18 мин.
Нагатинская
19 мин.
Коломенская
23 мин.
Ипотечный калькулятор
Заполните 1 анкету — получите предложения от десятков банков на специальных условиях
Программа ипотеки
Стоимость жилья, ₽
Первый взнос, ₽
Срок кредита
от 5.75%
Ставка
от 182 926 ₽
Платеж в месяц
Расчёт носит информационный характер и не является публичной офертой
Похожие объекты
Консультант по новостройкам
29 076 969 ₽
600 764 ₽/м²

































