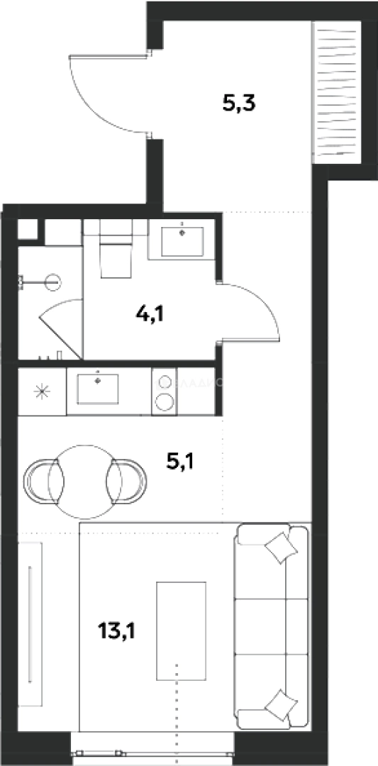
Продается Студия, 27.6 м²
Россия, Москва, жилой комплекс Алиа
Спартак
11 мин.
27.6 м²
Общая площадь
18.2 м²
Жилая площадь
2 из 30
Этаж
Описание
Покупателям в ЖК предложено множество планировочных решений: в наличии квартиры как классического типа, так и европланировки. Квартиры передаются дольщикам без отделки и с подчистовой отделкой.
В состав комплекса входит два детских сада на 650 мест, две школы на 1925 мест, поликлиника и спортивный комплекс. Для автовладельцев предусмотрен подземный паркинг с станциями для зарядки электромобилей на 1286 мест. Территория комплекса закрыта от машин и случайных прохожих. Вход осуществляется по специальным картам. Проект ландшафтного дизайна разработан в компании Gillespies. В микрорайоне высадят центральный парк и благоустроят набережную Москвы-реки.
Жилой квартал расположен на берегу реки-Москвы напротив зеленой зоны — Большого Строгинского затона и Серебряного бора. Метро «Тушинская» и «Спартак» находятся в 15 минутах пешком.
О квартире
Общая площадь
27.6 м²
Жилая площадь
18.2 м²
Площадь комнат
18.2 м²
Высота потолков
2.85 м
Подъезд
1
Этаж
2
Окна выходят
На улицу
О доме
Год постройки
2028
Этажность
30
Количество подъездов
1
Материал постройки
Кирпично-монолитный
Материал перекрытий
Монолитные
Отопление
Центральное
Пассажирских лифтов
1
Грузовых лифтов
1
Парковка
Подземная
Расположение
Россия, Москва, жилой комплекс Алиа
Спартак
11 мин.
Тушинская
14 мин.
Тушинская
14 мин.
Строгино
26 мин.
Мякинино
27 мин.
Ипотечный калькулятор
Заполните 1 анкету — получите предложения от десятков банков на специальных условиях
Программа ипотеки
Стоимость жилья, ₽
Первый взнос, ₽
Срок кредита
от 5.75%
Ставка
от 77 510 ₽
Платеж в месяц
Расчёт носит информационный характер и не является публичной офертой
Консультант по новостройкам
12 320 640 ₽
446 400 ₽/м²










































