Продается 4-комн. квартира, 81.9 м²
Россия, Москва, жилой комплекс Алиа
Спартак
11 мин.
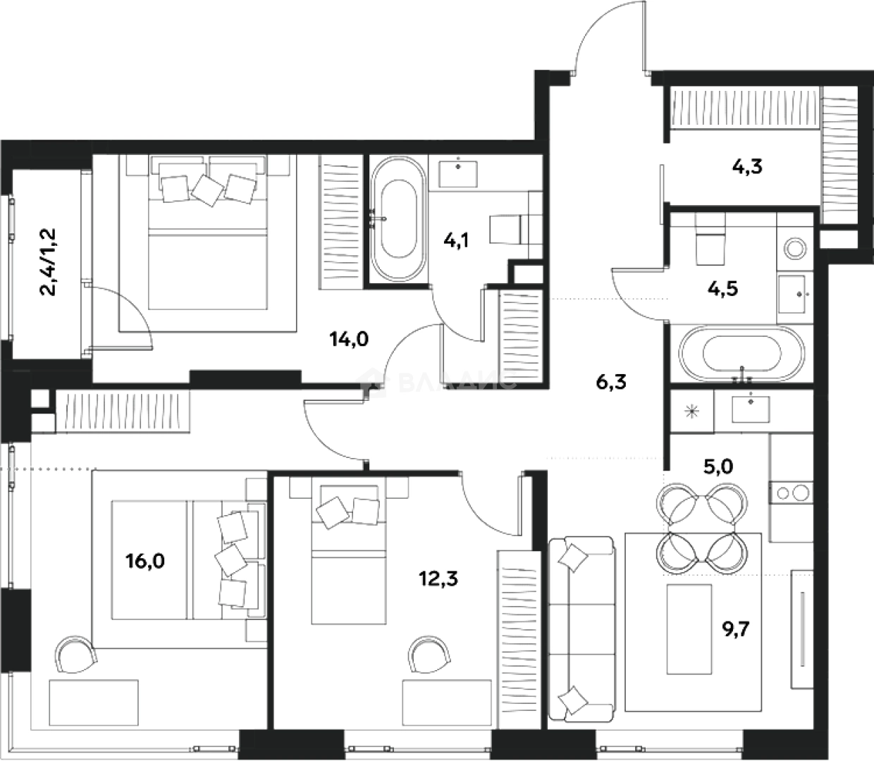
81.9 м²
Общая площадь
42.3 м²
Жилая площадь
14.7 м²
Площадь кухни
27 из 30
Этаж
Описание
Покупателям в ЖК предложено множество планировочных решений: в наличии квартиры как классического типа, так и европланировки. Квартиры передаются дольщикам без отделки и с подчистовой отделкой.
В состав комплекса входит два детских сада на 650 мест, две школы на 1925 мест, поликлиника и спортивный комплекс. Для автовладельцев предусмотрен подземный паркинг с станциями для зарядки электромобилей на 1286 мест. Территория комплекса закрыта от машин и случайных прохожих. Вход осуществляется по специальным картам. Проект ландшафтного дизайна разработан в компании Gillespies. В микрорайоне высадят центральный парк и благоустроят набережную Москвы-реки.
Жилой квартал расположен на берегу реки-Москвы напротив зеленой зоны — Большого Строгинского затона и Серебряного бора. Метро «Тушинская» и «Спартак» находятся в 15 минутах пешком.
О квартире
Общая площадь
81.9 м²
Жилая площадь
42.3 м²
Площадь кухни
14.7 м²
Площадь комнат
14+16+12.3 м²
Высота потолков
2.85 м
Подъезд
1
Этаж
27
Окна выходят
На улицу
О доме
Год постройки
2028
Этажность
30
Количество подъездов
1
Материал постройки
Кирпично-монолитный
Материал перекрытий
Монолитные
Отопление
Центральное
Пассажирских лифтов
1
Грузовых лифтов
1
Парковка
Подземная
Расположение
Россия, Москва, жилой комплекс Алиа
Спартак
11 мин.
Тушинская
14 мин.
Тушинская
14 мин.
Строгино
26 мин.
Мякинино
27 мин.
Ипотечный калькулятор
Заполните 1 анкету — получите предложения от десятков банков на специальных условиях
Программа ипотеки
Стоимость жилья, ₽
Первый взнос, ₽
Срок кредита
от 5.75%
Ставка
от 203 520 ₽
Платеж в месяц
Расчёт носит информационный характер и не является публичной офертой
Похожие объекты






3-комн. квартира, 83,6 м², 35/44 эт.
Тушинская
17 мин.




3-комн. квартира, 83,6 м², 22/44 эт.
Тушинская
17 мин.





3-комн. квартира, 82,2 м², 2/44 эт.
Тушинская
17 мин.




3-комн. квартира, 85,6 м², 15/44 эт.
Тушинская
17 мин.
Консультант по новостройкам
32 350 500 ₽
395 000 ₽/м²









