Продается 4-комн. квартира, 100.3 м²
Россия, Москва, Лётная улица, 95Бк2
Спартак
9 мин.
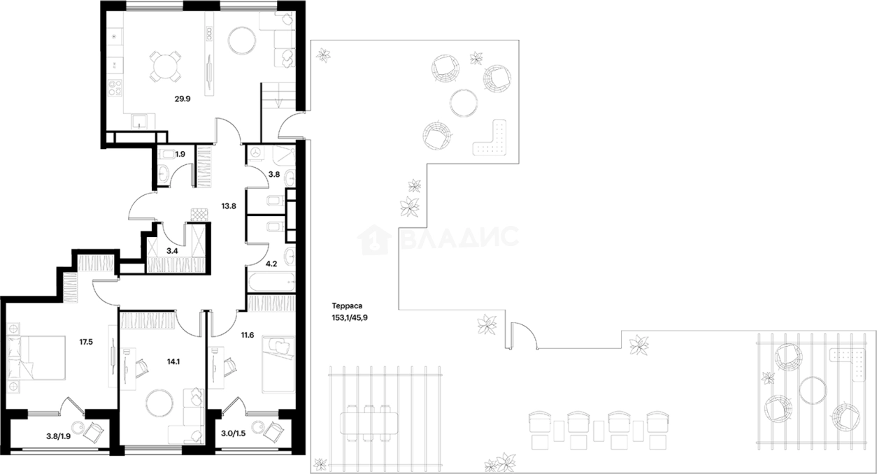
100.3 м²
Общая площадь
43.2 м²
Жилая площадь
29.9 м²
Площадь кухни
10 из 11
Этаж
Описание
Покупателям в ЖК предложено множество планировочных решений: в наличии квартиры как классического типа, так и европланировки. Квартиры передаются дольщикам без отделки и с подчистовой отделкой.
В состав комплекса входит два детских сада на 650 мест, две школы на 1925 мест, поликлиника и спортивный комплекс. Для автовладельцев предусмотрен подземный паркинг с станциями для зарядки электромобилей на 1286 мест. Территория комплекса закрыта от машин и случайных прохожих. Вход осуществляется по специальным картам. Проект ландшафтного дизайна разработан в компании Gillespies. В микрорайоне высадят центральный парк и благоустроят набережную Москвы-реки.
Жилой квартал расположен на берегу реки-Москвы напротив зеленой зоны — Большого Строгинского затона и Серебряного бора. Метро «Тушинская» и «Спартак» находятся в 15 минутах пешком.
О квартире
Общая площадь
100.3 м²
Жилая площадь
43.2 м²
Площадь кухни
29.9 м²
Площадь комнат
17.5+14.1+11.6 м²
Высота потолков
3.3 м
Этаж
10
Окна выходят
На улицу
О доме
Год постройки
2025
Этажность
11
Количество подъездов
2
Материал постройки
Монолитный
Материал перекрытий
Монолитные
Отопление
Центральное
Пассажирских лифтов
1
Грузовых лифтов
1
Парковка
Подземная
Расположение
Россия, Москва, Лётная улица, 95Бк2
Спартак
9 мин.
Тушинская
12 мин.
Строгино
28 мин.
Мякинино
30 мин.
Ипотечный калькулятор
Заполните 1 анкету — получите предложения от десятков банков на специальных условиях
Программа ипотеки
Стоимость жилья, ₽
Первый взнос, ₽
Срок кредита
от 5.75%
Ставка
от 436 679 ₽
Платеж в месяц
Расчёт носит информационный характер и не является публичной офертой
Похожие объекты












4-комн. квартира, 104,8 м², 52/53 эт.
Волоколамская
14 мин.
Консультант по новостройкам
69 412 511 ₽
692 049 ₽/м²


















