Продается 2-комн. квартира, 45 м²
Россия, Москва, жилой комплекс Алиа, к3
Спартак
11 мин.
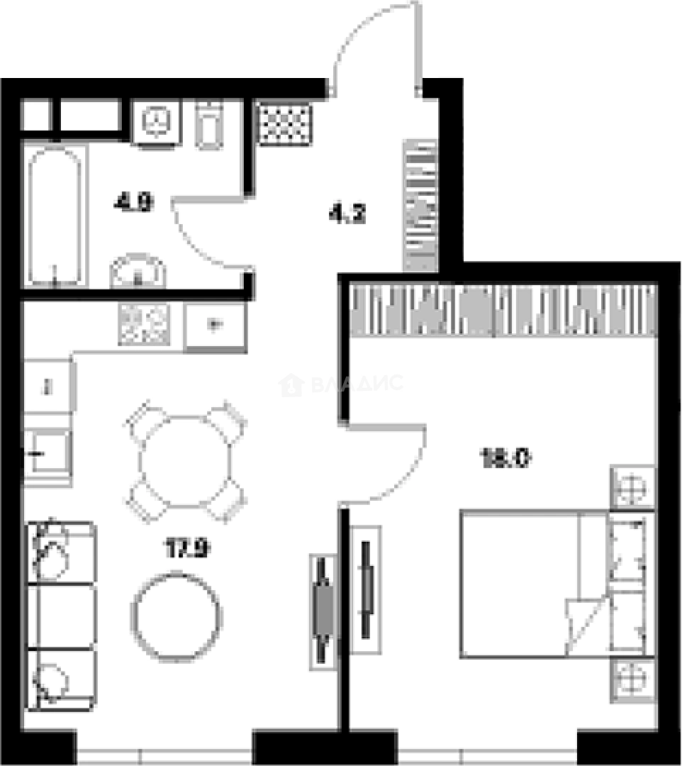
45 м²
Общая площадь
18 м²
Жилая площадь
17.9 м²
Площадь кухни
8 из 28
Этаж
Описание
Покупателям в ЖК «ALIA» предложено множество планировочных решений: в наличии квартиры как классического типа, так и европланировки. Квартиры передаются дольщикам без отделки и с подчистовой отделкой.
В состав комплекса входит два детских сада на 650 мест, две школы на 1925 мест, поликлиника и спортивный комплекс. Для автовладельцев предусмотрен подземный паркинг с станциями для зарядки электромобилей на 1286 мест. Территория комплекса закрыта от машин и случайных прохожих. Вход осуществляется по специальным картам. Проект ландшафтного дизайна разработан в компании Gillespies. В микрорайоне высадят центральный парк и благоустроят набережную Москвы-реки.
Жилой квартал расположен на берегу реки-Москвы напротив зеленой зоны — Большого Строгинского затона и Серебряного бора. Метро «Тушинская» и «Спартак» находятся в 15 минутах пешком.
О квартире
Общая площадь
45 м²
Жилая площадь
18 м²
Площадь кухни
17.9 м²
Площадь комнат
18 м²
Высота потолков
3.02 м
Этаж
8
Окна выходят
На улицу
О доме
Год постройки
2025
Этажность
28
Количество подъездов
1
Материал постройки
Монолитный
Материал перекрытий
Монолитные
Отопление
Центральное
Пассажирских лифтов
1
Грузовых лифтов
1
Парковка
Подземная
Расположение
Россия, Москва, жилой комплекс Алиа, к3
Спартак
11 мин.
Тушинская
14 мин.
Строгино
26 мин.
Мякинино
28 мин.
Ипотечный калькулятор
Заполните 1 анкету — получите предложения от десятков банков на специальных условиях
Программа ипотеки
Стоимость жилья, ₽
Первый взнос, ₽
Срок кредита
от 5.75%
Ставка
от 136 151 ₽
Платеж в месяц
Расчёт носит информационный характер и не является публичной офертой
Похожие объекты



















2-комн. квартира, 50 м², 19/24 эт.
Спартак
4 мин.









1-комн. квартира, 44,4 м², 9/44 эт.
Тушинская
17 мин.
Консультант по новостройкам
21 641 940 ₽
480 932 ₽/м²
















