Продается 3-комн. квартира, 76.2 м²
Россия, Москва, Новомосковский административный округ, район Коммунарка, жилой комплекс Филатов Луг, к5
Филатов луг
23 мин.
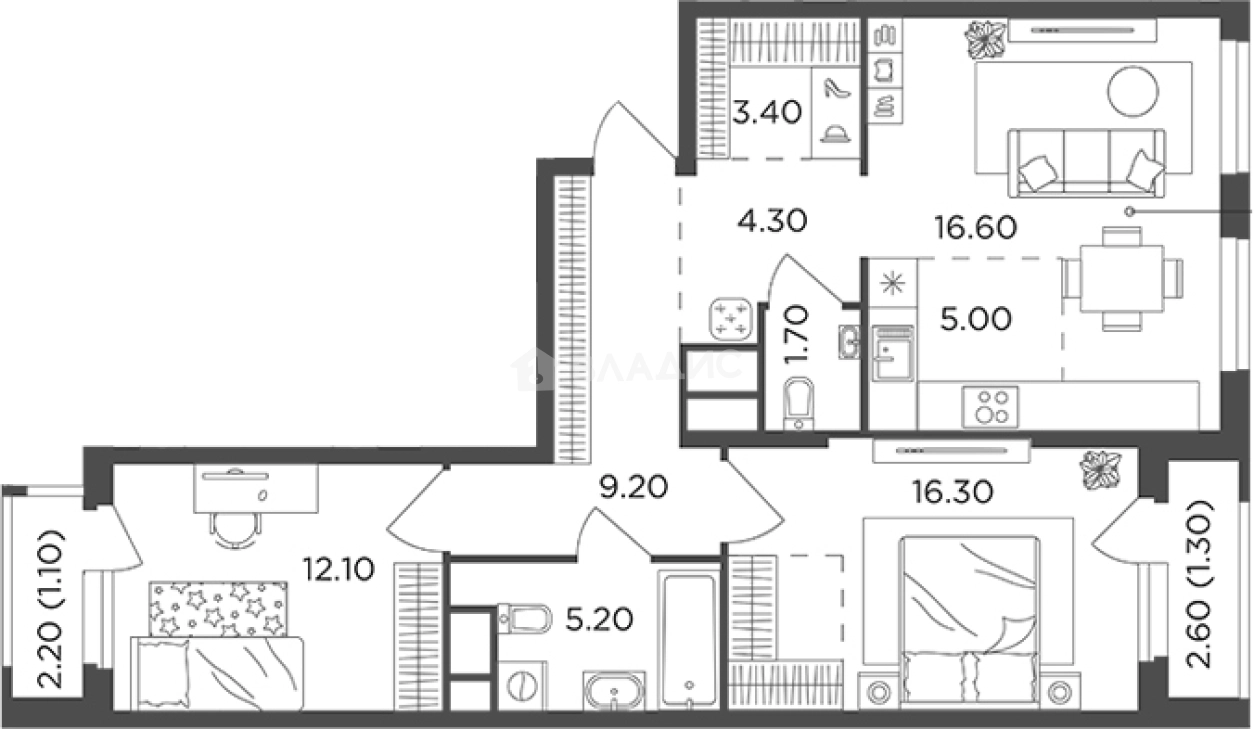
76.2 м²
Общая площадь
45 м²
Жилая площадь
5 м²
Площадь кухни
11 из 22
Этаж
Описание
Проектом запланированы квартиры различных площадей и планировок от 23 до 96 кв. метров. Квартиры передаются покупателям без отделки, с подчистовой и чистовой отделкой в двух вариантах на выбор: «Скандия» и «Брюгге».
Благоустройство территории комплекса разработанное мастерской Arteza включает в себя: детские площадки с рельефом, концепцию «двор без машин», современные игровые элементы для детей, зоны тихого отдыха, зону отдыха с качелями, площадку для отдыха с деревянным настилом, площадки для игр в активные игры, зоны workout и уличные тренажеры, столы для настольного тенниса, велодорожку протяженностью почти 1 км, инсталляции в стилистике современного искусства. В проект входит 3 детских сада, школа, собственная социальная и коммерческая инфраструктура на первых этажах.
Жилой комплекс находится на территории Новой Москвы, в 5 километрах от МКАД. В шаговой доступности расположены: супермаркет «METRO Cash & Carry», гипермаркет Leroy Merlin, Картмазовский пруд, школы, детские сады, магазины, фитнес-центры с бассейном, ТРЦ, горнолыжно-спортивный комплекс «Ново-Переделкино». Метро «Филатов Луг» и «Саларьево» в 10 минутах транспортом.
О квартире
Общая площадь
76.2 м²
Жилая площадь
45 м²
Площадь кухни
5 м²
Площадь комнат
12.1+16.3 м²
Высота потолков
2.82 м
Подъезд
2
Этаж
11
Окна выходят
На улицу
О доме
Год постройки
2026
Этажность
22
Количество подъездов
2
Материал постройки
Монолитный
Материал перекрытий
Монолитные
Отопление
Центральное
Пассажирских лифтов
1
Грузовых лифтов
1
Парковка
Наземная
Расположение
Россия, Москва, Новомосковский административный округ, район Коммунарка, жилой комплекс Филатов Луг, к5
Филатов луг
23 мин.
Саларьево
3 мин.
Новопеределкино
5 мин.
Боровское шоссе
6 мин.
Румянцево
6 мин.
Солнцево
6 мин.
Прокшино
7 мин.
Ипотечный калькулятор
Заполните 1 анкету — получите предложения от десятков банков на специальных условиях
Программа ипотеки
Стоимость жилья, ₽
Первый взнос, ₽
Срок кредита
от 5.75%
Ставка
от 125 885 ₽
Платеж в месяц
Расчёт носит информационный характер и не является публичной офертой
Похожие объекты











3-комн. квартира, 75,6 м², 9/22 эт.
Филатов луг
22 мин.










3-комн. квартира, 75,9 м², 15/22 эт.
Филатов луг
23 мин.










3-комн. квартира, 75,9 м², 19/22 эт.
Филатов луг
23 мин.










3-комн. квартира, 80,7 м², 18/22 эт.
Филатов луг
23 мин.
Консультант по новостройкам
20 010 000 ₽
262 599 ₽/м²











