Продается 3-комн. квартира, 55.7 м²
Россия, Москва, Лётная улица, 95Бк2
Спартак
9 мин.
55.7 м²
Общая площадь
25.8 м²
Жилая площадь
15.9 м²
Площадь кухни
12 из 18
Этаж
Описание
Покупателям в ЖК предложено множество планировочных решений: в наличии квартиры как классического типа, так и европланировки. Квартиры передаются дольщикам без отделки и с подчистовой отделкой.
В состав комплекса входит два детских сада на 650 мест, две школы на 1925 мест, поликлиника и спортивный комплекс. Для автовладельцев предусмотрен подземный паркинг с станциями для зарядки электромобилей на 1286 мест. Территория комплекса закрыта от машин и случайных прохожих. Вход осуществляется по специальным картам. Проект ландшафтного дизайна разработан в компании Gillespies. В микрорайоне высадят центральный парк и благоустроят набережную Москвы-реки.
Жилой квартал расположен на берегу реки-Москвы напротив зеленой зоны — Большого Строгинского затона и Серебряного бора. Метро «Тушинская» и «Спартак» находятся в 15 минутах пешком.
О квартире
Общая площадь
55.7 м²
Жилая площадь
25.8 м²
Площадь кухни
15.9 м²
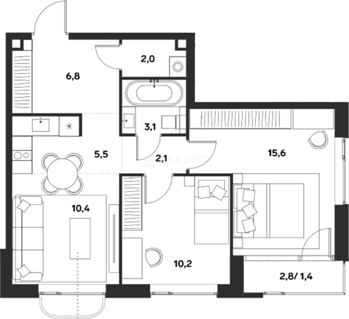
Площадь комнат
15.6+10.2 м²
Высота потолков
2.85 м
Подъезд
1
Этаж
12
Окна выходят
На улицу
О доме
Год постройки
2028
Этажность
18
Количество подъездов
1
Материал постройки
Кирпично-монолитный
Материал перекрытий
Монолитные
Отопление
Центральное
Пассажирских лифтов
1
Грузовых лифтов
1
Парковка
Подземная
Расположение
Россия, Москва, Лётная улица, 95Бк2
Спартак
9 мин.
Тушинская
13 мин.
Тушинская
13 мин.
Строгино
27 мин.
Мякинино
30 мин.
Ипотечный калькулятор
Заполните 1 анкету — получите предложения от десятков банков на специальных условиях
Программа ипотеки
Стоимость жилья, ₽
Первый взнос, ₽
Срок кредита
от 5.75%
Ставка
от 153 028 ₽
Платеж в месяц
Расчёт носит информационный характер и не является публичной офертой
Похожие объекты





3-комн. квартира, 53,9 м², 21/52 эт.
Волоколамская
14 мин.



















2-комн. квартира, 50 м², 19/24 эт.
Спартак
4 мин.






















2-комн. квартира, 48,8 м², 10/24 эт.
Спартак
6 мин.






2-комн. квартира, 56,5 м², 40/44 эт.
Тушинская
17 мин.
Консультант по новостройкам
24 324 600 ₽
436 708 ₽/м²









