Продается 1-комн. квартира, 43.4 м²
Россия, Москва, жилой комплекс Моментс, к2.2
Стрешнево
2 мин.
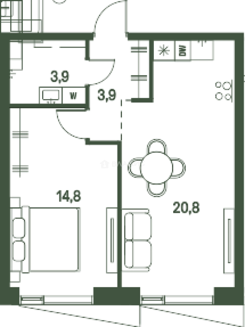
43.4 м²
Общая площадь
14.8 м²
Жилая площадь
20.8 м²
Площадь кухни
24 из 34
Этаж
Описание
В жилом комплексе представлено множество планировочных решений европейского формата. Сдаются они с подчистовой отделкой и высотой потолков от 2,83 до 3,6 метра. Есть возможность объединения планировок. Из большей части квартир открывается прекрасный вид на парк.
В проекте предусмотрено иммерсивное дворовое и общественное пространство от британских ландшафтных архитектурных бюро Gillespies и West 8: двор с фонтаном, зеленые и сенсорные сады, лаунж-зоны, пространства для пикников и общения, зоны активного отдыха, разнообразная коммерческая инфраструктура. На территории комплекса спроектированы детский сад и школа, детские и спортивные площадки из натуральных материалов. Для владельцев автомобилей оборудован охраняемый подземный паркинг на 795 машиномест. Есть кладовые для хранения сезонных вещей.
Жилой комплекс находится в районе Щукино с развитой инфраструктурой. В ближайшем окружении музеи, образовательные учреждения, современная торговая инфраструктура, фитнес-клубы, рестораны, кафе, парикмахерские, бьюти-салоны, компании сферы услуг и много другое. До МЦК «Стрешнево» 5 минут пешком. До Кремля всего 15 минут транспортом.
О квартире
Общая площадь
43.4 м²
Жилая площадь
14.8 м²
Площадь кухни
20.8 м²
Подъезд
1
Этаж
24
Окна выходят
На улицу
О доме
Год постройки
2027
Этажность
34
Количество подъездов
1
Материал постройки
Монолитный
Материал перекрытий
Монолитные
Отопление
Центральное
Пассажирских лифтов
1
Грузовых лифтов
1
Парковка
Подземная
Расположение
Россия, Москва, жилой комплекс Моментс, к2.2
Стрешнево
2 мин.
Войковская
12 мин.
Щукинская
17 мин.
Балтийская
19 мин.
Панфиловская
23 мин.
Ипотечный калькулятор
Заполните 1 анкету — получите предложения от десятков банков на специальных условиях
Программа ипотеки
Стоимость жилья, ₽
Первый взнос, ₽
Срок кредита
от 5.75%
Ставка
от 162 591 ₽
Платеж в месяц
Расчёт носит информационный характер и не является публичной офертой
Похожие объекты







2-комн. квартира, 42,7 м², 5/8 эт.
Красный Балтиец
6 мин.







2-комн. квартира, 49,4 м², 2/8 эт.
Красный Балтиец
6 мин.







2-комн. квартира, 42,7 м², 6/8 эт.
Красный Балтиец
6 мин.






2-комн. квартира, 42,7 м², 4/8 эт.
Красный Балтиец
6 мин.
Консультант по новостройкам
25 844 700 ₽
595 500 ₽/м²










