Продается 2-комн. квартира, 67.6 м²
Россия, Москва, жилой комплекс Ситизен, к4
Тушинская
7 мин.
67.6 м²
Общая площадь
11 из 12
Этаж
Описание
В проекте предложен широкий выбор планировочных решений от студий до 4-комнатных квартир. Есть лоты с кухнями-гостиными, мастер-спальнями, террасами, эркерами, лоджиями и балконами. Все квартиры представлены в подчистовой отделке White box по стандарту MR Base. Из панорамных окон открывается вид на парк и набережную Сходненского канала.
Концепция благоустройства предусматривает большое количество зеленых насаждений, извилистые дорожки и приватные зоны отдыха. Есть игровые пространства для детей разных возрастов, воркаут-площадка, места для выгула собак, лобби-гостиная и бизнес-гарден для работы на улице. Дворы закрыты для проезда машин, на территории предусмотрено видеонаблюдение.
Жилой комплекс расположен на Вишневой улице, в районе Покровское-Стрешнево, в окружении 18 парков, скверов и пляжей. Рядом находятся Усадьба Братцево, Сходненский ковш и парк Покровское-Стрешнево. Метро и D2 «Тушинская» в 5 минутах пешком.
О квартире
Общая площадь
67.6 м²
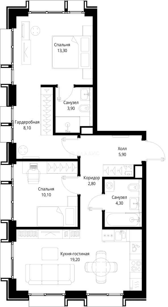
Площадь комнат
10.1+21.4 м²
Высота потолков
2.85 м
Подъезд
1
Этаж
11
Окна выходят
На улицу
О доме
Год постройки
2027
Этажность
12
Количество подъездов
1
Материал постройки
Кирпично-монолитный
Материал перекрытий
Монолитные
Отопление
Центральное
Пассажирских лифтов
1
Грузовых лифтов
1
Парковка
Подземная
Расположение
Россия, Москва, жилой комплекс Ситизен, к4
Тушинская
7 мин.
Спартак
17 мин.
Сходненская
25 мин.
Щукинская
4 мин.
Ипотечный калькулятор
Заполните 1 анкету — получите предложения от десятков банков на специальных условиях
Программа ипотеки
Стоимость жилья, ₽
Первый взнос, ₽
Срок кредита
от 5.75%
Ставка
от 184 910 ₽
Платеж в месяц
Расчёт носит информационный характер и не является публичной офертой
Консультант по новостройкам
29 392 480 ₽
434 800 ₽/м²




































