Продается 2-комн. квартира, 101 м²
Россия, Москва, 1-й переулок Тружеников, 12с1
Киевская
9 мин.
101 м²
Общая площадь
17 м²
Жилая площадь
40.9 м²
Площадь кухни
2 из 14
Этаж
Описание
В проекте «Хамовники 12» представлено множество планировочных решений европейского формата. В пентхаусах предусмотрены дровяные камины с угольной фильтрацией и просторные террасы, откуда открываются захватывающие панорамы на гостиницу «Украина», историческую застройку Хамовников, Новодевичий сквер и другие архитектурные достопримечательности. Один из пентхаусов имеет собственный бассейн с роскошными видами на набережную и Москва-Сити.
Каждый менеджер ресепшена аккредитован международной сетью гостиниц класса «люкс» Ritz Carlton. В помещениях на первом этаже дома спроектированы клубная SPA-зона и ресторан премиального класса. Для удобства жителей в подземной части дома предусмотрен четырехуровневый паркинг. Доступ на парковку осуществляется на современных автомобильных лифтах. На одном из подземных уровней предусмотрен собственный депозитарий.
Проект «Хамовники 12» находится в центре исторической Москвы, в одном из самых тихих и зеленых переулков района. Инфраструктура района развита, в пешей доступности расположены исторические достопримечательности города, скверы и парки, продуктовые магазины, медицинские центры.
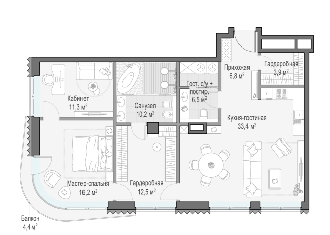
О квартире
Общая площадь
101 м²
Жилая площадь
17 м²
Площадь кухни
40.9 м²
Площадь комнат
17 м²
Высота потолков
3.55 м
Подъезд
1
Этаж
2
Окна выходят
На улицу
О доме
Год постройки
2025
Этажность
14
Количество подъездов
1
Материал постройки
Монолитный
Материал перекрытий
Монолитные
Отопление
Центральное
Пассажирских лифтов
1
Грузовых лифтов
1
Парковка
Подземная
Расположение
Россия, Москва, 1-й переулок Тружеников, 12с1
Киевская
9 мин.
Киевская
9 мин.
Киевская
10 мин.
Фрунзенская
15 мин.
Парк культуры
15 мин.
Смоленская
16 мин.
Смоленская
17 мин.
Парк культуры
17 мин.
Ипотечный калькулятор
Заполните 1 анкету — получите предложения от десятков банков на специальных условиях
Программа ипотеки
Стоимость жилья, ₽
Первый взнос, ₽
Срок кредита
от 5.75%
Ставка
от 1 656 661 ₽
Платеж в месяц
Расчёт носит информационный характер и не является публичной офертой
Похожие объекты







2-комн. квартира, 100 м², 2/14 эт.
Киевская
9 мин.







2-комн. квартира, 103,3 м², 3/14 эт.
Киевская
9 мин.
Консультант по новостройкам
263 335 440 ₽
2 607 282 ₽/м²


























